
The underlying idea was to design a house which sensitively fits into its surroundings, does not stand out and looks contemporary at the same time. The house with a pub and multi-purpose hall is situated in the heart of Máslovice, a village north of Prague. Its location in the centre of Máslovice is ideal for a number of purposes and naturally turns it into the cultural and social centre of the village.
In 2014 local representative of Máslovice realised that the village was lacking an adequate structure for various cultural and sport events and decided to open an architectural competition for such space. The selected building was chosen to be renovated mainly because of its unique location right in the middle of Máslovice, adjacent to the current pub. Furthermore, the discussed structure originally housed a pub, which was later replaced by a car service station.
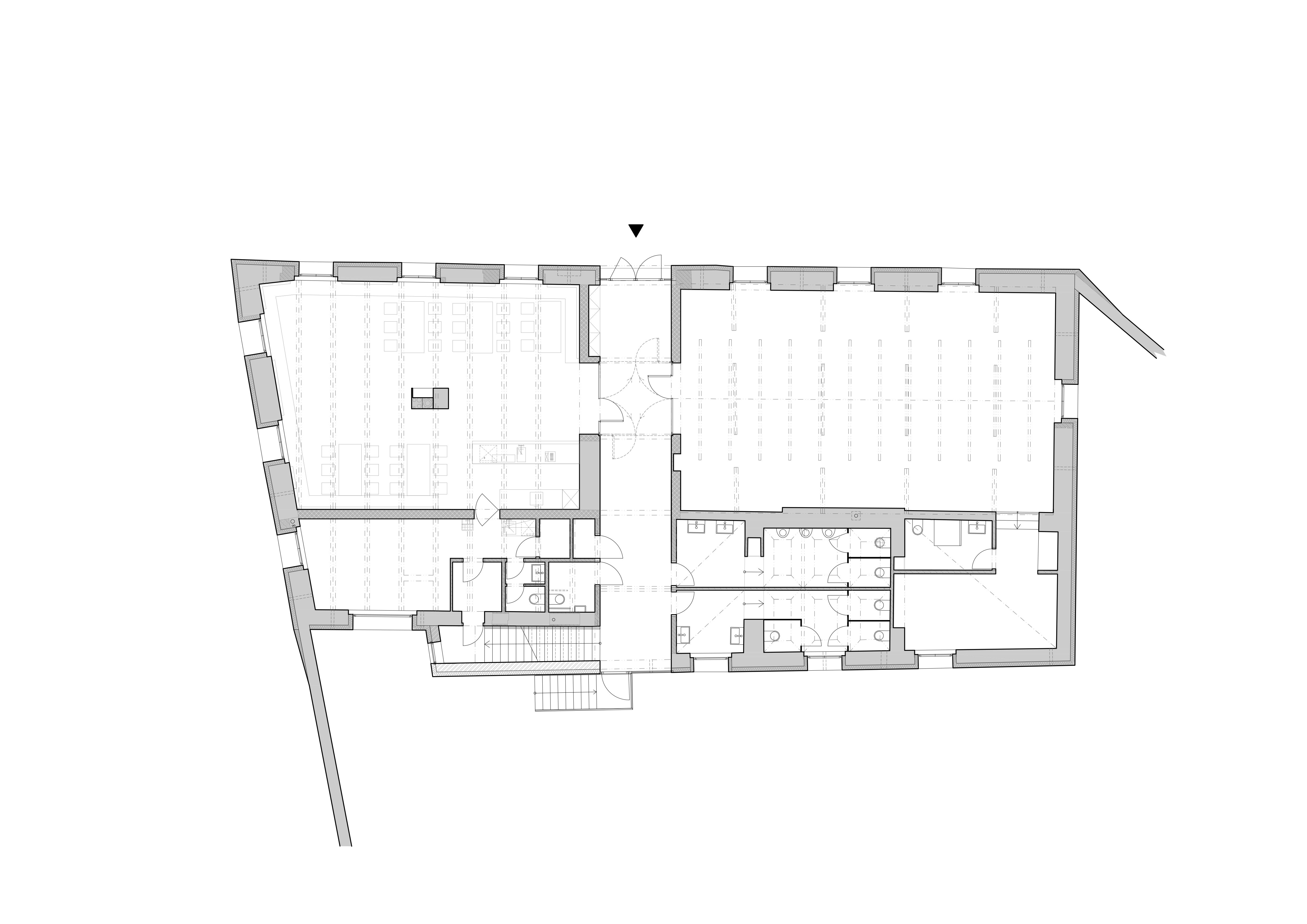
The house is divided into three areas - the multi-purpose hall on one side of the entrance, the pub on the other side and the service part at the back. The multi-purpose hall and the pub are accessible via the entrance hall and can be easily merged together for special occasions via large wooden door in the entrance hall. The multi-purpose hall is also equipped with three large french windows, which can seamlessly connect the interior with the village square, enabling the house to serve the crucial function in social and cultural life of Máslovice.

기본 아이디어는 주변 환경에 민감하게 적응하면서 동시에 현대적으로 보이며 두드러지지 않는 주택을 디자인하는 것이다. 펍과 다목적 홀이 있는 집은 프라하 북쪽 마을인 마슬로비체의 중심부에 위치해 있다. 마슬로비체 중심부에 위치한 이 장소는 다양한 목적에 이상적이며, 자연스럽게 이 지역의 문화 및 사회적 중심지가 되었다.
2014년 마슬로비체 지역 대표는 마을이 다양한 문화와 스포츠 행사를 위한 적절한 구조물이 부족하다는 것을 깨닫고 이러한 공간을 위한 건축 대회를 열기로 결정했다. 선택된 건물은 현재의 펍에 인접한 마슬로비체의 바로 한가운데에 위치한 독특한 위치 때문에 리모델링을 위해 선택되었다. 더욱이, 논의된 구조물은 원래 술집이 있었고, 나중에 자동차 정비소로 대체되었다.
이 집은 입구 한쪽의 다목적 홀, 다른 쪽의 호프집, 뒤쪽의 서비스 파트 등 3개의 구역으로 나뉜다. 다목적 홀과 펍은 로비를 통해 접근이 가능하며, 로비의 큰 나무 문을 통해 특별한 경우에 쉽게 합쳐질 수 있다. 다목적 홀은 또한 내부와 마을 광장을 원활하게 연결할 수 있는 3개의 커다란 프랑스식 창문이 설치되어 있어 마슬로비체의 사회적, 문화적 삶에서 중요한 기능을 수행할 수 있다.











건축가 BOD ARCHITEKTI
위치 Máslovice
용도 Pub and a multi-purpose hall
연면적 399,05㎡
준공 2018
대표건축가 BOD ARCHITEKTI
사진작가 Jiří Straka
'Architecture Project > Retail' 카테고리의 다른 글
| Chengyuan Garment Office Building (0) | 2023.03.31 |
|---|---|
| [ COːONUT ] (0) | 2023.03.29 |
| THE BRAUNSTEIN TAPHOUSE (0) | 2022.07.15 |
| ROUEN (0) | 2022.02.25 |
| COEXISTENCE PLATFORM (0) | 2022.01.26 |
마실와이드 | 등록번호 : 서울, 아03630 | 등록일자 : 2015년 03월 11일 | 마실와이드 | 발행ㆍ편집인 : 김명규 | 청소년보호책임자 : 최지희 | 발행소 : 서울시 마포구 월드컵로8길 45-8 1층 | 발행일자 : 매일



