
햇살 가득한 일터
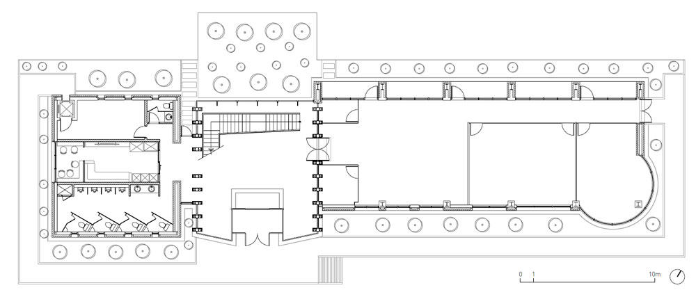
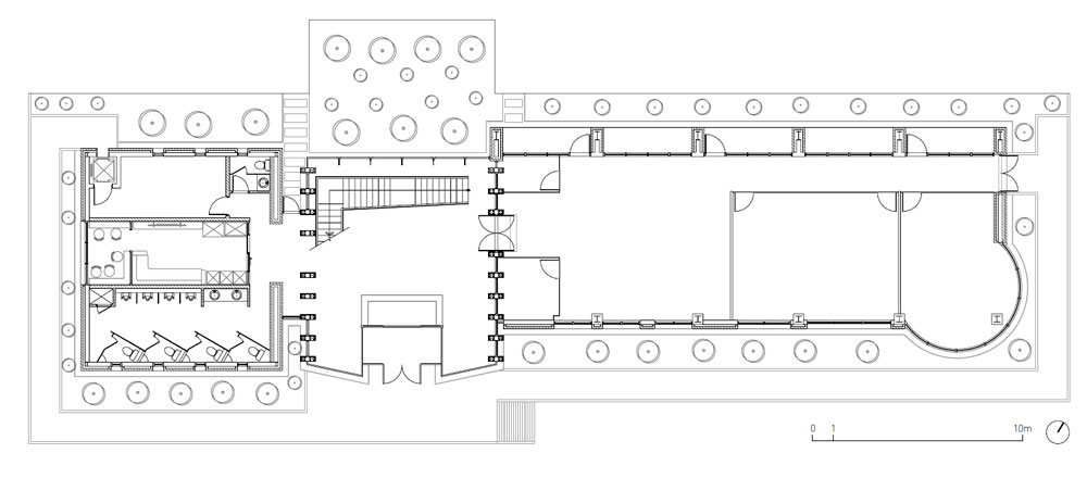
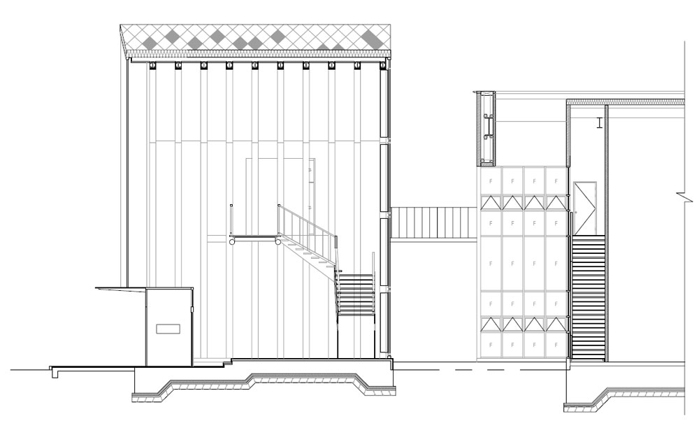
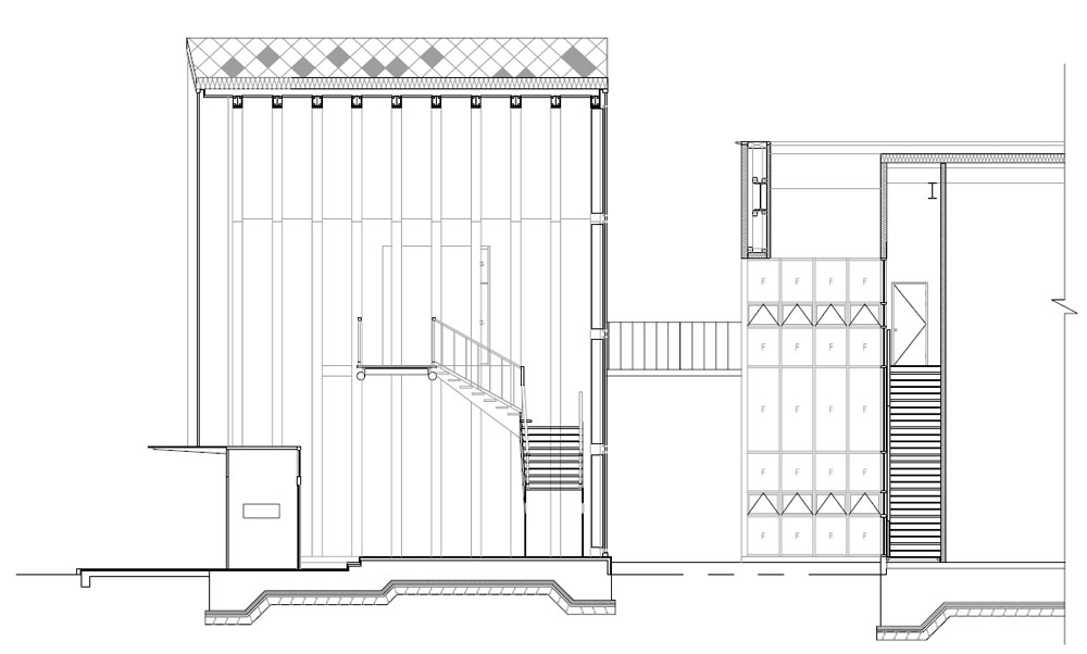
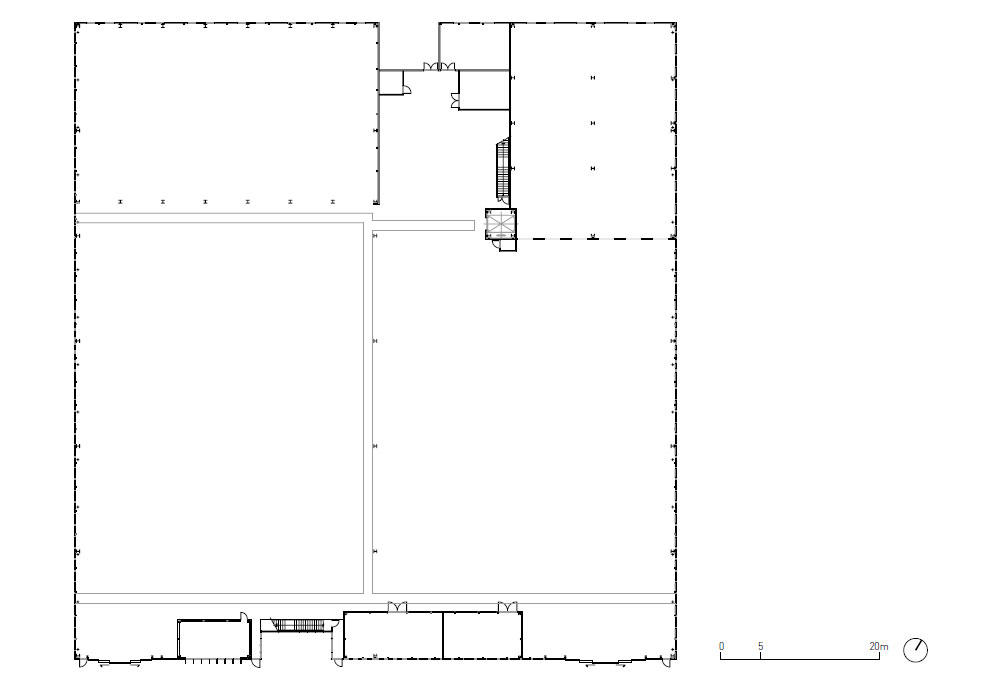
설계 의뢰를 받고 가본 이 지역은 평택에 위치한 공단지역이었다. 우리나라 공단 건물들이 그러하듯이 이곳도 예외는 아니었다. 뚝딱 지어지는 샌드위치 패널 건물들로 빽빽이 들어차 폐쇄적이고 삭막했다. 평소에 공장 근로자들의 열악한 근무 환경에 안타까움이 있었기에 이번 기회를 통해 좀 더 행복한 마음으로 일할 수 있는 공장을 설계하고자 했다. 이 대지는 삼면이 다른 공장들로 둘러싸여 있는데, 매스가 큰 공장동은 뒷면으로 배치하였고, 관리동은 전면에 위치하며 근로자 근무환경 및 편의성을 위한 설계다. 공장의 독특한 형태의 채광창은 답답한 공장에서 일하던 근로자들에게 따스한 햇살을 맞게 해주고, 연결마당으로부터 사계절의 변화를 느끼며 자연과 함께 일 할 수 있다. 출근길에 가장 먼저 접하는 관리동은 직원들을 반겨주는 계단과 자작나무 마당으로 활기찬 하루의 시작을 알리고, 업무 중 잠시 쉬어갈 수 있는 공간을 직원들에게 제공할 것이다.















건축가 HIGH&LOW STUDIO
위치 경기도 평택시 청북읍 율북리
용도 공장
대지면적 9,600.10㎡
건축면적 6,488.11㎡
연면적 7,343.50㎡
규모 지상 2층
건폐율 67.51%
용적률 76.49%
설계기간 2021. 6. - 11.
시공기간 2022. 1. - 11.
준공 2022. 11
대표건축가 / 프로젝트건축가 이재택
디자인팀 정용신, 고희정
구조엔지니어 윤구조기술사사무소
기계엔지니어 / 전기엔지니어 건사엔지니어링
시공 (주)수공종합건설
발주자 발렉스코리아(주)
사진작가 김진철
해당 프로젝트는 건축문화 2023년 2월호(Vol. 501)에 게재되었습니다.
The project was published in the February, 2023 recent projects of the magazine(Vol. 501).
February 2023 : vol. 501
Contents : NEWS / COMPETITION / BOOKS : SKETCH Things that make a day in your daily life / Hossain mousavi 일상 속에서 하루를 만드는 것들 / 호사인 무사비 : RECENT PROJECT Building of Music / Aisaka Architects’ Atelier 음악 복합공
anc.masilwide.com
'Interior Project > Other' 카테고리의 다른 글
| Tsuchiura Funeral Hall (0) | 2023.05.30 |
|---|---|
| Nanchang Villa Experience Center (0) | 2023.05.16 |
| Flowing Table, Flowing Chair (0) | 2023.04.07 |
| Chuson-ji Autumn Leaves Galaxy (0) | 2023.03.22 |
| SPIRA (0) | 2023.02.27 |
마실와이드 | 등록번호 : 서울, 아03630 | 등록일자 : 2015년 03월 11일 | 마실와이드 | 발행ㆍ편집인 : 김명규 | 청소년보호책임자 : 최지희 | 발행소 : 서울시 마포구 월드컵로8길 45-8 1층 | 발행일자 : 매일



