
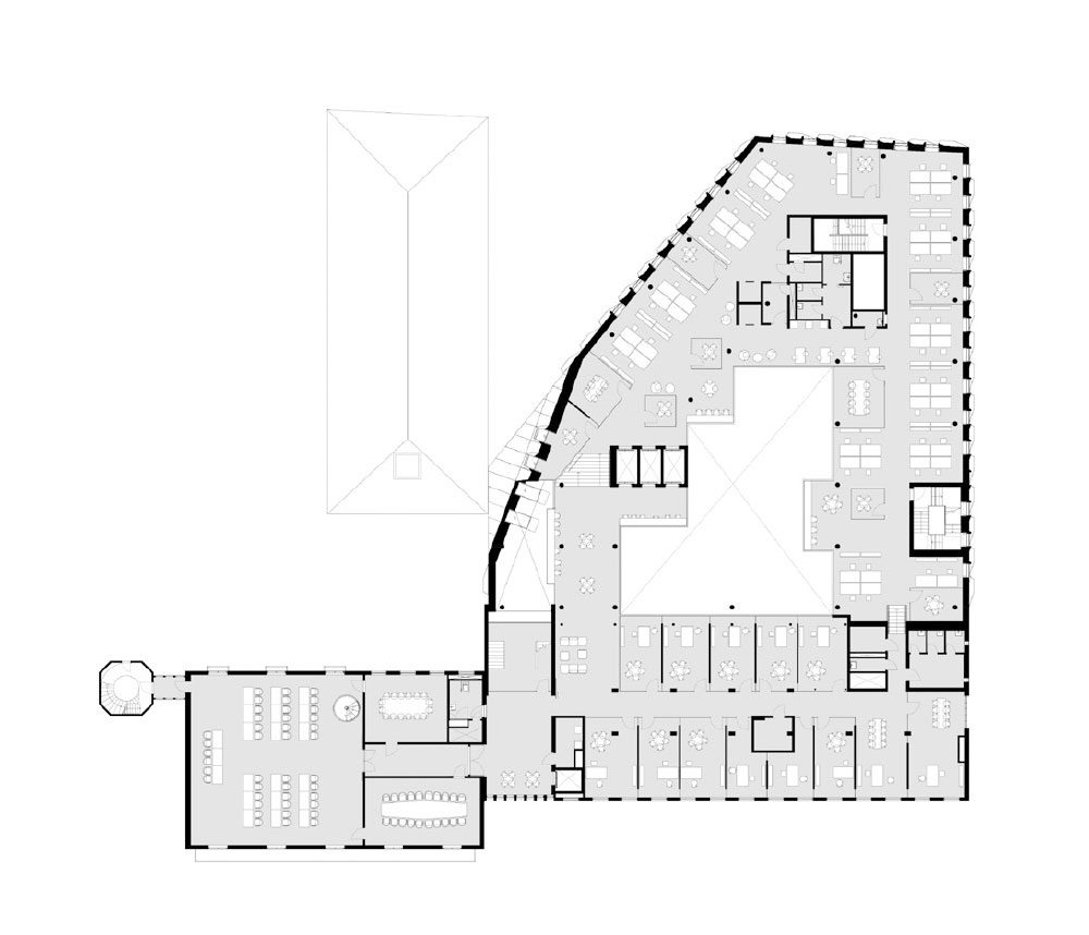
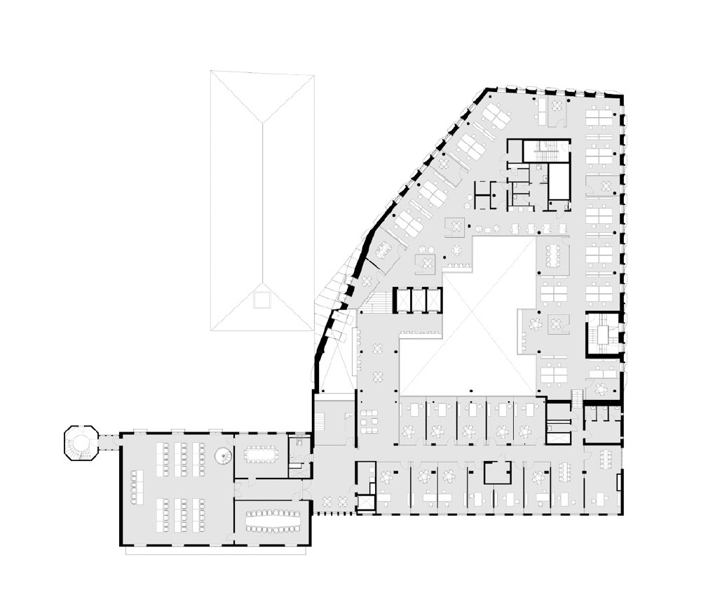
Just north of the polar circle, Danish studio ALL (Atelier Lorentzen Langkilde) has designed a contemporary city hall for the municipality of Bodø, Norway. The 12,000m2 City Hall consists of a new building and the transformation and linking of two existing, preserved buildings. The new town hall unites the three buildings into one flexible plan, organized with a circular flow around a spectacular wooden atrium. The new city hall is a crystalline stone volume, with facades that slope towards the lower, existing buildings. The angles of the façade are drawn from the existing rooflines. This unique faceted facade geometry catches the dramatic changing light conditions north of the polar circle.
Bodø, Norway is situated on a peninsula north of the polar circle. The city is bounded by mountains and the harsh Norwegian Sea. In the city center, the old city hall has been transformed and extended with a new iconic building to a 12,000m2 modern workspace for 400 employees. The new building is a keystone linking and transforming the flow of the existing buildings to create a flexible, circular flow around a tall and dramatic atrium. This atriums acts as The Citizens’ Forum. The Citizens’ Forum is a public square with meeting rooms and public services. Workspaces extend up five floors in connection with the atrium. There is a canteen on the 6th and top floor with magnificent views towards the surrounding ocean and mountains.
The existing buildings on the site are the old city hall, with a brown plaster façade, and the old national bank, clad in a richly patterned natural stone. Both facades are preserved. The new building is shaped with sloping facades mirroring the roofs of the existing buildings. This creates a unity between old and new which is further emphasized with the brownish Jura Gelb stone used for the facade of the new building. The color resembles the color of the old city hall while the stone pattern resembles that of the national bank facade. The new, faceted façade is a modular system with horizontal, vertical and diagonal lines that create a singular volume as a whole and in detail. The different angels of the stone catches the light and cast shadow for an ever-changing play of light. The interior is lined with light ash wood, both on the walls and ceilings. The uniform wooden lining creates a warm, Scandinavian home-like feeling and is combined with an office layout based on new ways of working. In this way the home workspace has been brought to the office. The atrium around which the workspaces wrap recalls a Piranesi drawing, with the staggered balconies, setback atrium fronts, varied floor heights, and a vertiginous art piece, “Dikt til Byråkratiet (Poem for the Bureaucracy)”, by the artist: Per Kristian Nygård, mounted on the wall and spanning the full height of the atrium. The landscape around the city hall consists of beautifully shaped public areas and squares with seating. These are covered in natural stone.

극지방의 북쪽에 있는 덴마크 스튜디오 ALL(Atelier Lorentzen Langkilde)은 노르웨이 보되 시를 위한 현대적인 시청을 설계했다. 12,000m2 면적의 시청은 신축 건물과 2개의 기존 건물을 변화시켜 연결했다. 새로운 시청은 건물을 유연한 계획을 통해 하나의 건물이 되었고, 멋진 목조 아트리움 주변으로 순환하는 동선을 만들었다. 새로운 시청은 크리스털 원석 같은 형태로, 낮은 기존 건물을 향해 기울어진 형태의 입면을 하고 있다. 입면의 각도는 기존 건물의 지붕 선에서 가져왔다. 독특하고 기하학적인 입면은 극지방 북쪽의 드라마틱하게 변화하는 빛을 끌어들인다.
노르웨이 보되는 극지방의 북쪽 반도에 있다. 이 도시는 산과 거친 노르웨이 해로 둘러싸여 있다. 도시 안에 있던 구 시청은 새로운 상징적인 건물로 탈바꿈했고, 12,00m2 넓이의 현대적인 업무 공간으로 확장되었다. 새 건물을 기존 건물의 흐름을 연결하고 변형하는 핵심 공간으로 높고 큰 아트리움 주위로 순환하는 동선을 만들어낸다. 이 아트리움은 공공 서비스와 회의실이 있는 시민을 위한 광장의 역할을 한다. 업무 공간은 아트리움과 연결되어 5층까지 이어진다. 6층과 최상층에는 주변 바다와 산이 펼쳐진 식당이 있다. 시청 주변은 아름다운 공공장소와 좌석이 있는 광장으로 구성되었고, 천연석으로 마감되어 있다.
기존 건물들은 갈색 입면이 있는 옛 시청과 자연석으로 화려하게 덮인 오래된 국립 은행으로 두 건물 모두 보존했다. 새 건물은 기존 건물의 지붕을 반영해 경사진 입면을 갖고 있다. 새 건물에 갈색 석재를 사용해 건물을 더욱 도드라지게 하면서 기존 건물과 새 건물 사이에 통일성을 만들었다. 건물의 색은 구 시청과 비슷하고, 모양은 국립 은행의 입면 패턴과 비슷하다. 새로운 입면은 수평, 수직, 대각선 라인을 가진 모듈 시스템을 사용했고, 모듈이 모여 하나의 큰 볼륨과 세부적인 디테일을 만들어낸다. 다양한 각도의 돌은 다른 빛을 잡고, 끊임없이 변화하는 빛의 모습을 그림자를 통해 드러낸다. 내부의 벽과 천장에는 밝은 물푸레나무를 사용했다. 균일하게 놓인 원목은 따뜻한 스칸디나비아 집을 연상케 하고, 새로운 업무 방식을 기반으로 한 사무실에 어우러진다. 이런 방법으로 집의 작업 공간을 사무실로 옮겼다. 업무 공간으로 둘러싸인 아트리움의 비틀린 발코니, 뒤로 물러난 아트리움의 입면은 유명한 피라네지(Piranesi)의 그림을 떠올리게 한다. 또한, 아트리움에는 예술가 페르 크리스티안 니고르의 현기증을 유발하는 작품 ‘Dikt til Byråkratiet(관료를 위한 시)’가 아트리움의 높이만큼 벽에 설치되어 있다.





















Architect Atelier Lorentzen Langkilde
Location Bodø, Norway
Program Town hall
Gross floor area 12,000㎡
Building scope 6F
Completion 2019. 10
Lead architect Kristian Langkilde, Kasper Lorentzen
Engineering Buro Happold, Hjellnes Consult, ÅF Engineering AS
Photographer Adam Mørk
해당 프로젝트는 건축문화 2023년 1월호(Vol. 500)에 게재되었습니다.
The project was published in the January, 2023 recent projects of the magazine(Vol. 500).
January 2023 : vol. 500
Contents : RECORDS Peek into the future of architecture and urban space through data from various fields 다양한 분야의 데이터로 건축·도시공간의 미래를 엿보다 Seoul's Urban and Architecture Field in Walking 걸어보며 느끼는 서
anc.masilwide.com
'Architecture Project > Office' 카테고리의 다른 글
| Etterbeek City Hall (0) | 2023.04.05 |
|---|---|
| New Town Hall Prague 7 (0) | 2023.04.05 |
| The Cafe Bon (0) | 2023.04.04 |
| MAZZOLENI (0) | 2023.03.31 |
| Tekirdağ Metropolitan Municipality Complex (0) | 2023.03.29 |
마실와이드 | 등록번호 : 서울, 아03630 | 등록일자 : 2015년 03월 11일 | 마실와이드 | 발행ㆍ편집인 : 김명규 | 청소년보호책임자 : 최지희 | 발행소 : 서울시 마포구 월드컵로8길 45-8 1층 | 발행일자 : 매일



