
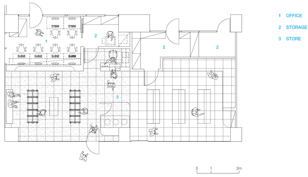
The Korean Peninsula is evaluated as the world’s highest quality ginseng producer due to its blessed natural environment. The Punggi Korean Ginseng, which is recognized as the best quality among them, is a perennial plant that is cultivated in a sunshade system called Sampoeojang for 3 to 6 years. Ginseng, which has a slow growth rate compared to other crops and requires well-suited cultivation conditions, grows under Sampoeojang for many years. In this way, Sampoeojang, which protects ginseng to grow well for a long time, is a ‘ground for cultivation’ and can be said to be the ‘house of ginseng’ where ginseng are grown. We planned an exhibition, promotion and sales center that reinterpreted the ‘Sampoeojang’, which symbolizes the ‘space of ginseng’ with a new perspective and a modern sense.
As a passive branding strategy, we focused on forming a spatial image that conveys the excellence of the Punggi Korean Ginseng to customers by giving a differentiated image to the brand, which is not currently well-known. The pure white exhibition space and sophisticated furniture designed with wood as the main finish deliver the inherent value of the brand and furthermore, it can naturally lead to the process of consumption. The promotion wall, where the main products are arranged as objets, and the display stand that is designed in a furniture-type structure, create a contrast in physical materials and display methods. The display stand was finished with wood as the main finish, and each display case was designed to highlight the displayed products with a pure white background that flows softly and naturally along the circular wooden member.

천혜의 자연환경을 갖추고 있어 세계적으로 가장 질 좋은 인삼을 생산하는 인삼종주국으로 평가 받고 있는 한반도, 그 중 가장 최고의 품질로 인정받는 풍기 고려인삼(Korean Ginseng)은 다년생 식물로 3~6년간 삼포어장이라 불리는 해가림에서 재배된다. 다른 작물에 비해 생장속도가 느리고 재배 조건이 잘 맞춰야 하는 인삼은 삼포어장 아래에서 다년간 성장하게 된다. 이렇듯 긴 시간 동안 인삼이 잘 성장할 수 있도록 지켜주는 삼포어장은 ‘경작의 터’이며, 인삼이 나고 자란 ‘인삼의 집’이라 할 수 있다.
우리는 ‘인삼의 공간’을 상징하는 ‘삼포어장’을 새로운 시선과 현대적인 감각으로 재해석한 전시·홍보·판매장을 계획했다. 소극적인 브랜딩 전략으로 현재는 인지도가 높지 않은 브랜드에 차별화된 이미지를 부여하여 풍기고려인삼의 우수성이 고객에게 전달되는 공간 이미지를 형성하는 것에 집중했다. 순백 전시공간과 목재를 주마감으로 디자인된 정교한 가구로 브랜드의 내재된 가치를 전달하고 더 나아가 자연스럽게 소비의 과정으로 이어질 수 있도록 하였다. 대표 상품을 오프제화하여 배치한 홍보월과 가구식 구조로 디자인된 진열대는 물리적 재질과 진열방식에서 대비를 이룬다. 진열대는 목재를 주마감으로 하고, 각각의 진열장은 원형의 목재 부재를 따라 부드럽고 자연스럽게 흘러내리는 순백의 배경으로 진열상품이 부각되도록 디자인되었다.










Architect SML
Location Songwol-gil, Jongno-gu, Seoul, Republic of Korea
Project area 125㎡
Design period 2018. 9 - 10
Construction period 2018. 10 - 11
Principal architect Seungmo Lim
Client Punggi ginseng cooperative association
Photographer Kyungsub Shin
해당 프로젝트는 건축문화 2023년 1월호(Vol. 500)에 게재되었습니다.
The project was published in the January, 2023 recent projects of the magazine(Vol. 500).
January 2023 : vol. 500
Contents : RECORDS Peek into the future of architecture and urban space through data from various fields 다양한 분야의 데이터로 건축·도시공간의 미래를 엿보다 Seoul's Urban and Architecture Field in Walking 걸어보며 느끼는 서
anc.masilwide.com
'Architecture Project > Retail' 카테고리의 다른 글
| CR Cement - Runpinhui Stone Art Exhibition Hall (0) | 2023.05.05 |
|---|---|
| Yi's House Showroom (0) | 2023.05.01 |
| Chengyuan Garment Office Building (0) | 2023.03.31 |
| [ COːONUT ] (0) | 2023.03.29 |
| Renovation house with a pub and a multi-purpose hall (0) | 2023.03.20 |
마실와이드 | 등록번호 : 서울, 아03630 | 등록일자 : 2015년 03월 11일 | 마실와이드 | 발행ㆍ편집인 : 김명규 | 청소년보호책임자 : 최지희 | 발행소 : 서울시 마포구 월드컵로8길 45-8 1층 | 발행일자 : 매일



