
Design Studio Mono is an interior design company that creates a space with a story based on the belief that space changes the stayer's thoughts and behaviors. We hoped that the new office wanted to be a place where people can think and communicate more freely. For this change, we tried to create a new space containing the value of freedom according to Mono's design philosophy.
In order to express the core value of freedom, each section has an organic flow and is expressed as an open space so that free communication is possible. The bar table containing the rough and bold charm seen when entering the entrance tried to convey the identity of the space with an unstructured shape.
The facade is the most revealing part of design studio mono's identity. The composition and the chairman were very important. We constructed the form with soft curves, which are the main features of our design, and expressed it with arched entrances and round windows. The exterior material gave a contrast between white tone and red brick.
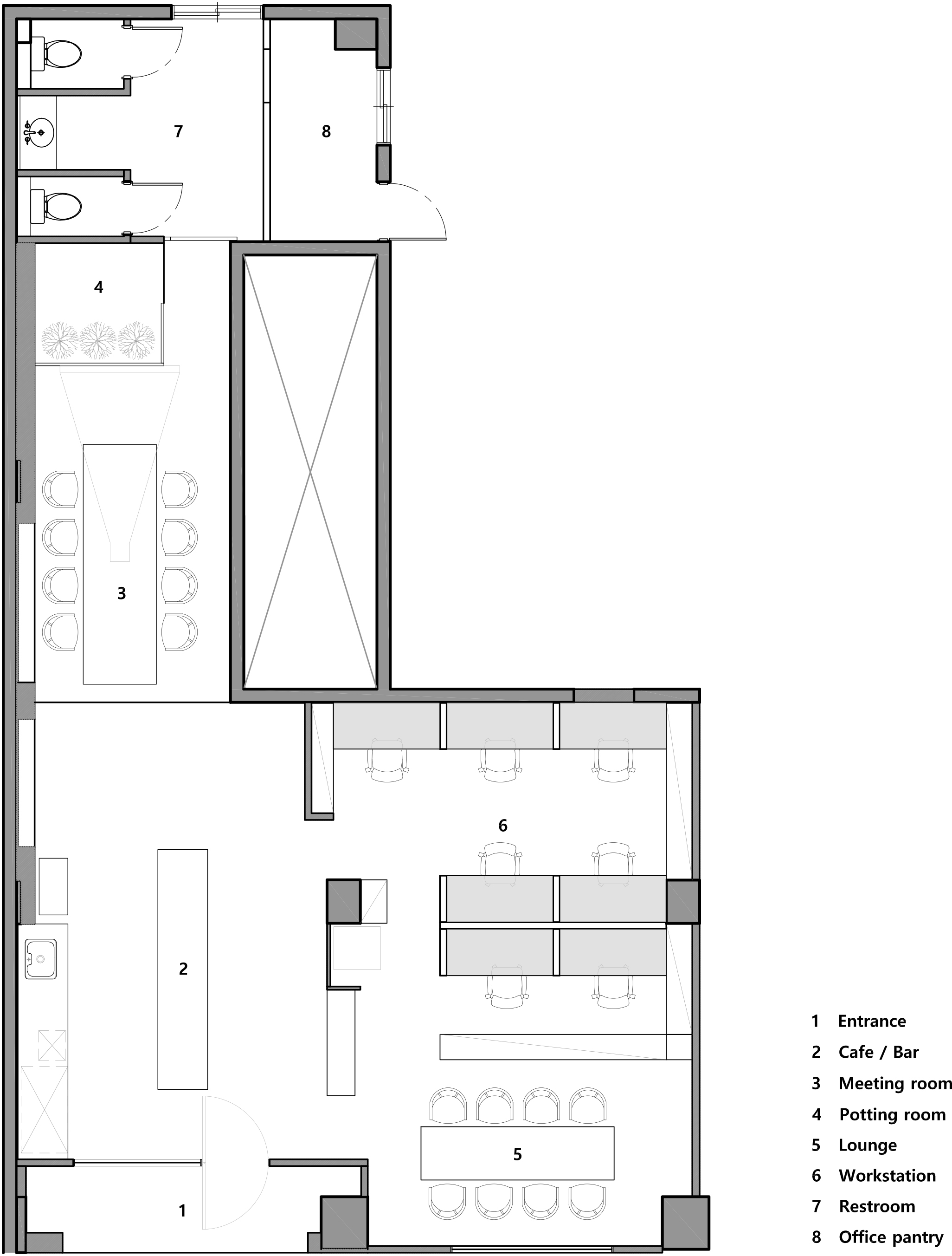
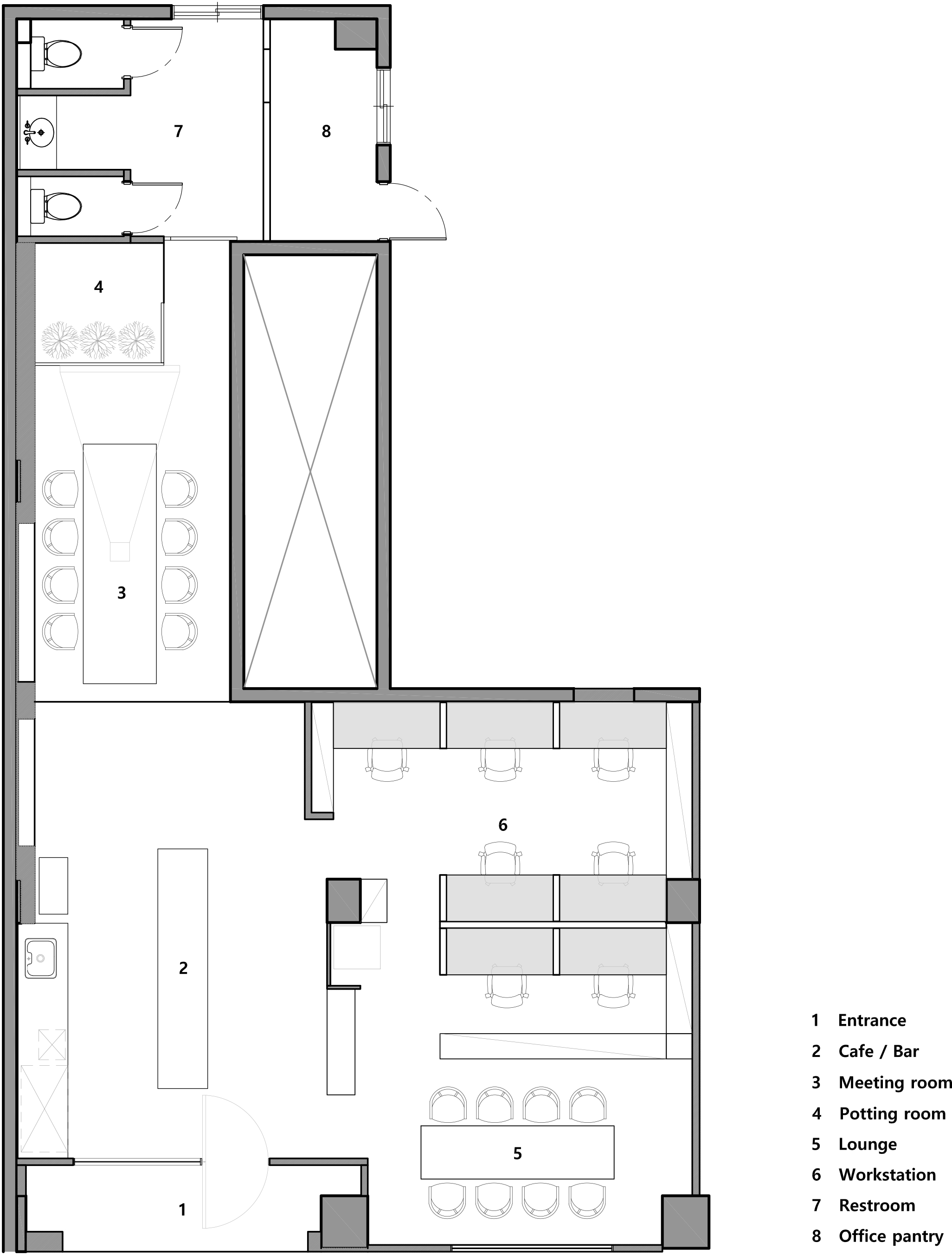
The space was divided into a cafeteria, workstation, meeting room, and lounge. All spaces were open, and each section had an organic flow and hoped to become a space where free communication would take place. The meeting room is open but cozy and has a dome-shaped structure to focus on the project. The gardening space is layered where customers' eyes stay on the screen to create a comfortable mood.
To compensate for the shortcomings of the open-concept office, a low-height partition was added to the wide desk. While guaranteeing privacy, it was in harmony with the overall design.
We hoped the new office would be an iconic space for everyone staying here to remember the design studio Mono.

디자인스튜디오모노는 공간은 머무는 이의 생각과 행동에 변화를 가져온다는 믿음으로 이야기가 담긴 공간을 만들어가는 인테리어 디자인 스튜디오입니다. 모노의 사옥은 보다 자유로운 생각과 소통이 가능한 공간이 되기를 바랬습니다. 이러한 변화를 위해 모노의 디자인 철학에 따라 자유로움이라는 가치를 담은 새로운 공간을 만들고자 했습니다.
자유로움이라는 가치를 담고자 개방형의 공간으로 각 섹션이 유기적인 흐름을 가지며 자유로운 소통이 가능하도록 표현했습니다. 입구에 들어섰을때 보이는 러프하고 볼드한 매력이 담긴 콘크리트 바 테이블은 정형화 되지 않은 쉐이프로 공간의 정체성을 전달하고자 했습니다.
파사드는 디자인스튜디오모노의 아이덴티티를 가장 잘 드러낸 부분입니다. 그 구성과 의장은 매우 중요했습니다. 모노 디자인의 주요 특징인 부드러운 곡선을 사용한 아치형의 입구와 라운드 창으로 형태를 구성하였고, 외장재는 화이트 톤과 적벽돌의 대비감을 주었습니다.
내부 공간은 크게 카페테리아, 미팅룸, 워크스테이션, 라운지로 구성됩니다. 모든 공간은 개방형으로 각 섹션이 유기적인 흐름으로 자유로운 소통이 이루어지는 공간이 되길 바랬습니다.
오픈 미팅룸은 개방적이지만 아늑하면서도 프로젝트에 집중할 수 있도록 돔 형태의 구조로 그려내었습니다. 스크린으로 고객의 시선이 머무는 곳에는 가드닝 공간을 레이어해 편안한 무드를 조성했습니다.
워크스테이션의 데스크는 넓은 길이의 낮은 파티션이 추가된 디자인으로 구성하여 개방형 사무실의 단점을 보완하였습니다. 프라이빗함을 보장하면서도 전체적인 디자인과 조화를 이루도록 했습니다.
모노의 새로운 오피스가 이 곳에 오가는 많은 이들에게 디자인스튜디오모노를 기억하는 상징적인 공간이 되기를 바랍니다.












Design : DESIGN STUDIO MONO
Location : 231, Dasan-ro 40-gil, Jung-gu, Seoul, Republic of Korea
Site area : 132 ㎡
Photographer : Hong Ki-woong
'Interior Project > Office' 카테고리의 다른 글
| OPEN HUB Park (0) | 2023.03.14 |
|---|---|
| SOMA POD (0) | 2022.12.07 |
| mude office (0) | 2022.09.19 |
| Oficinas Maflow Spain Automotive (0) | 2022.06.10 |
| Shin Eo Ji Dang (0) | 2022.05.25 |
마실와이드 | 등록번호 : 서울, 아03630 | 등록일자 : 2015년 03월 11일 | 마실와이드 | 발행ㆍ편집인 : 김명규 | 청소년보호책임자 : 최지희 | 발행소 : 서울시 마포구 월드컵로8길 45-8 1층 | 발행일자 : 매일



