SCH | HOUSING AN DEN SCHICHTGRÜNDEN
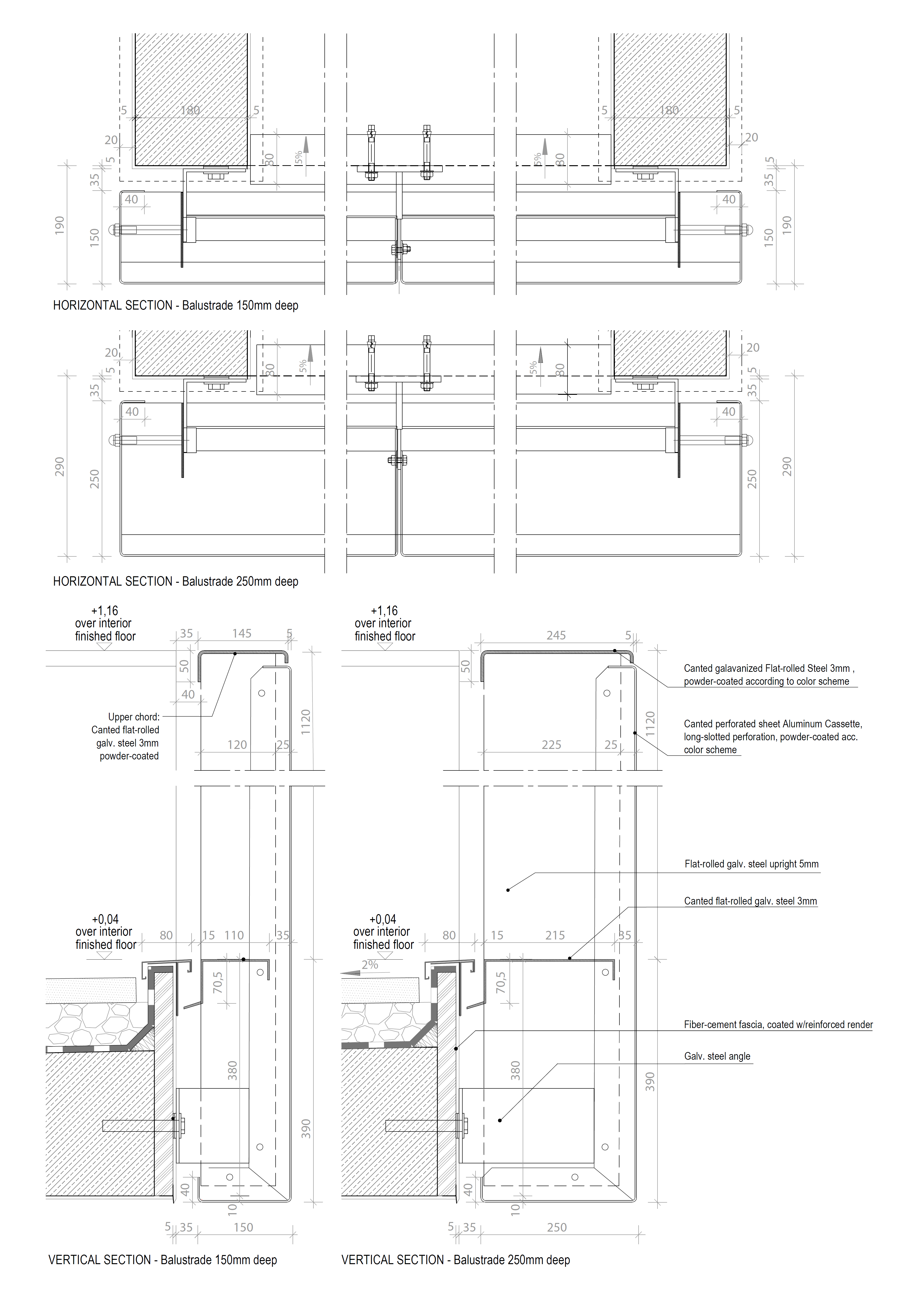
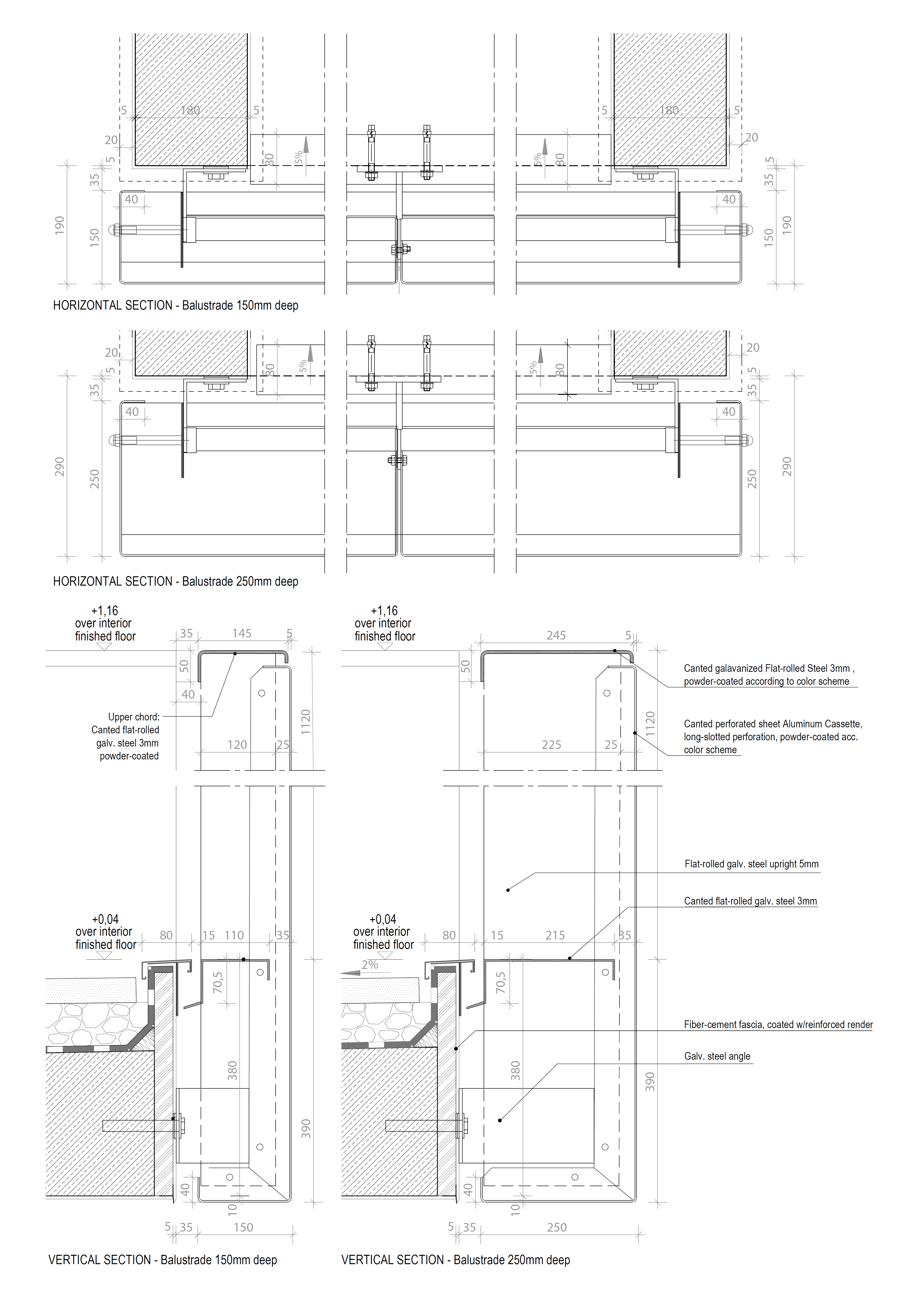
SCH Housing “an den Schichtgründen” is low-priced housing with a refreshing whiff of color. The finely detailed construction of the rust-colored, perforated aluminum balustrades sets off the car..
anc.masilwide.com






Architects trans_city – ZT GmbH
Location Vienna, Austria
Completion 2020
Photographer Daniel Hawelka
반응형
'Detail' 카테고리의 다른 글
| [Facade] JADE BUILDING (0) | 2022.07.04 |
|---|---|
| [Exterior Wall] RESIDENCE STACK TOGETHER (0) | 2022.07.01 |
| [Exterior Wall] GRANVILLE 1500 (0) | 2022.06.29 |
| [Exterior Wall] EO SYMPATHY (0) | 2022.06.28 |
| [Exterior Wall] UIWANG HOUSING (0) | 2022.06.27 |
마실와이드 | 등록번호 : 서울, 아03630 | 등록일자 : 2015년 03월 11일 | 마실와이드 | 발행ㆍ편집인 : 김명규 | 청소년보호책임자 : 최지희 | 발행소 : 서울시 마포구 월드컵로8길 45-8 1층 | 발행일자 : 매일



