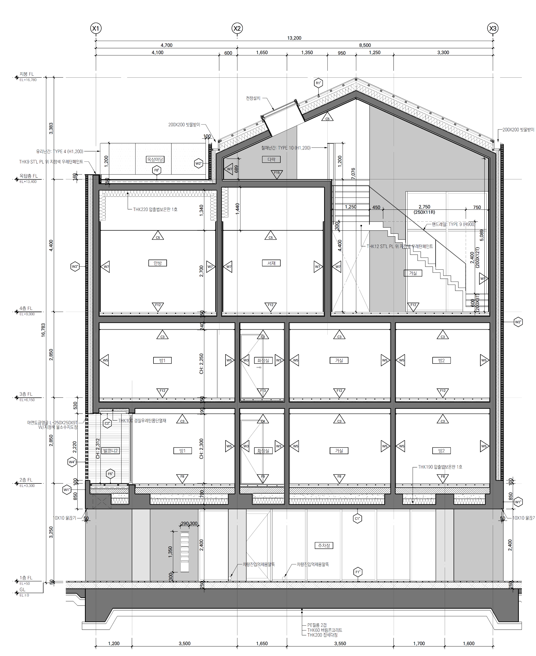
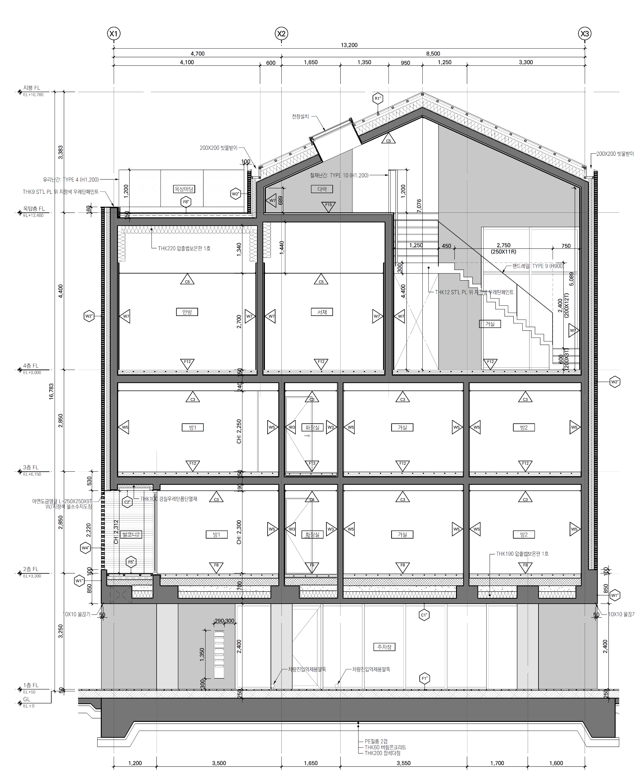
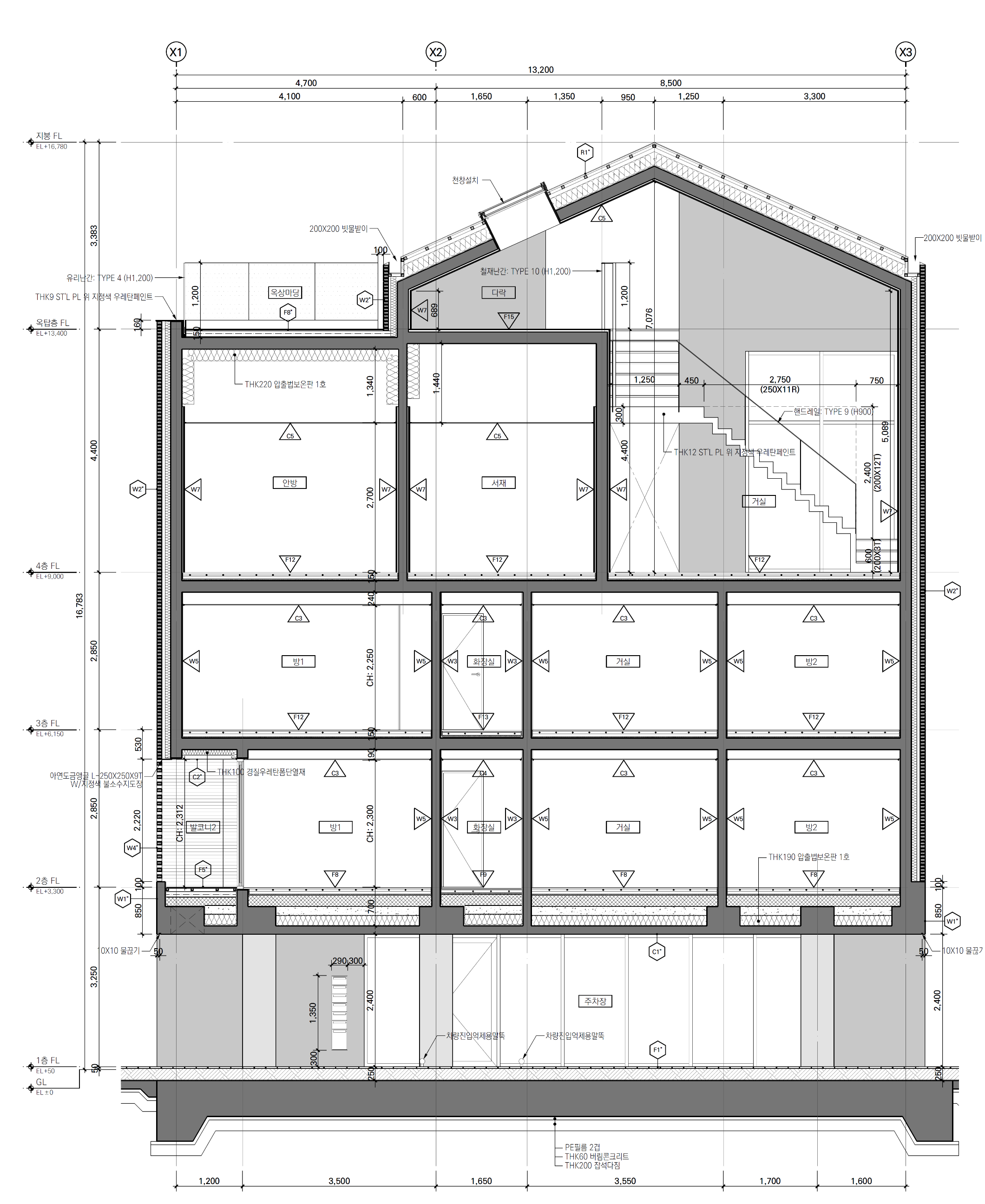
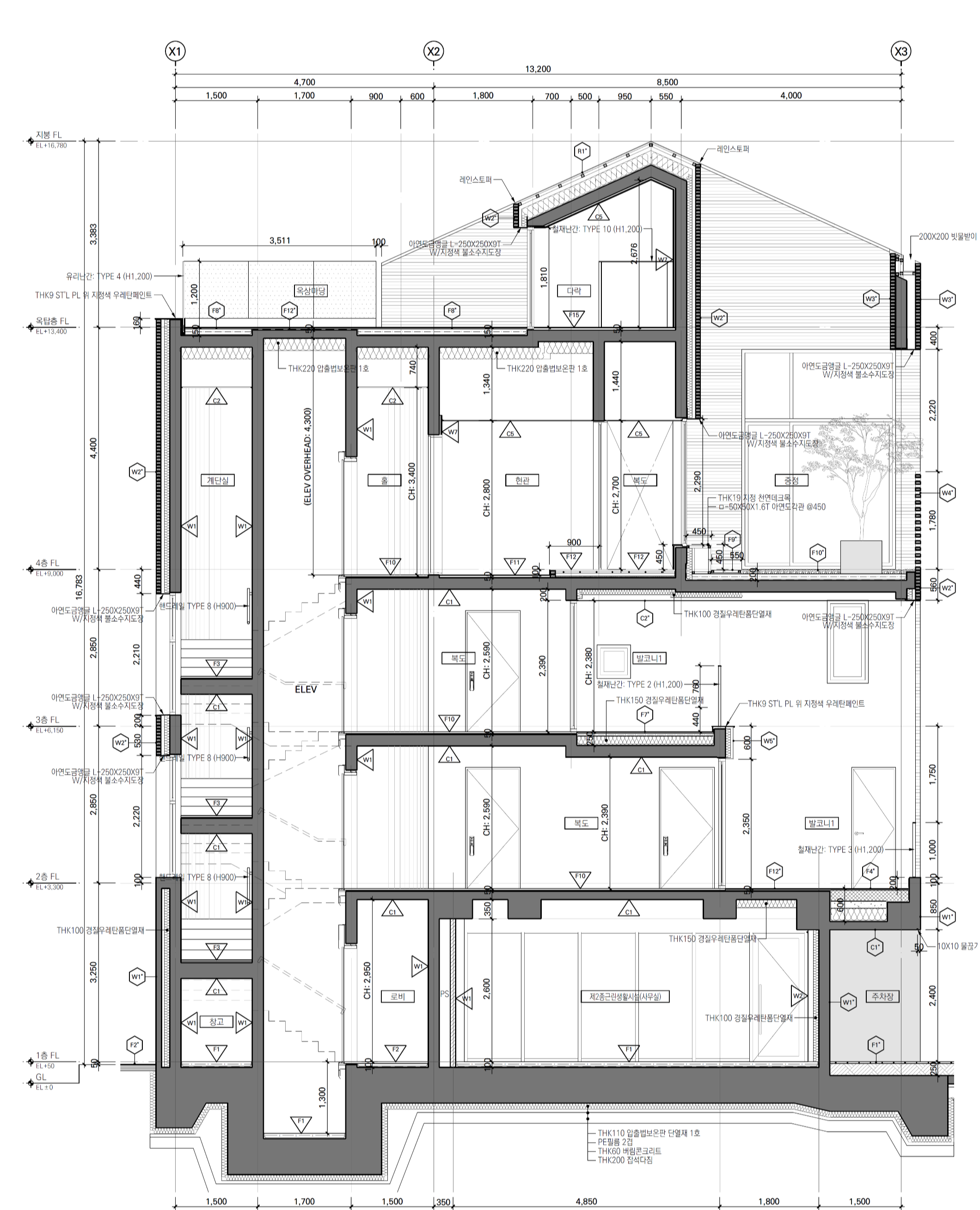
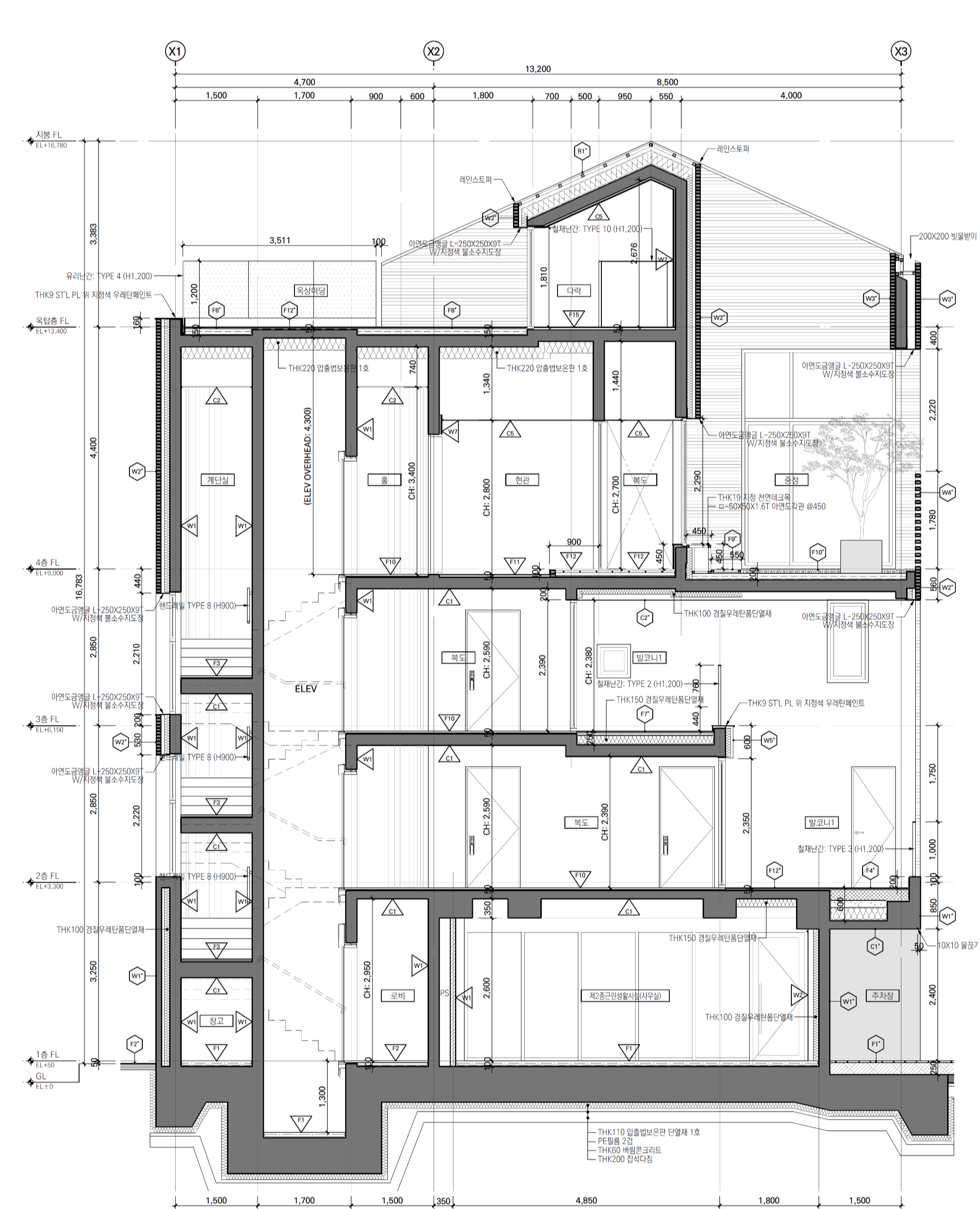
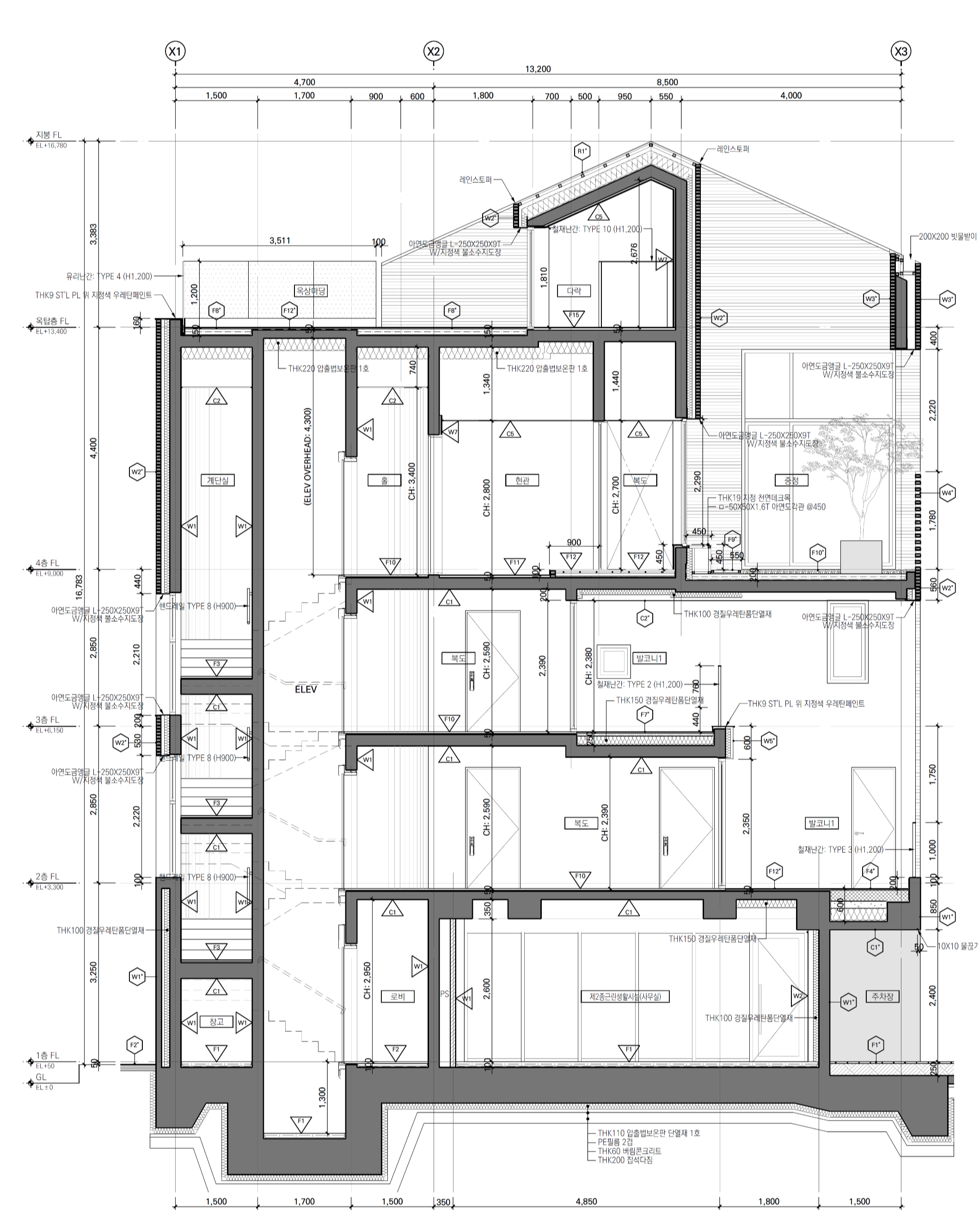
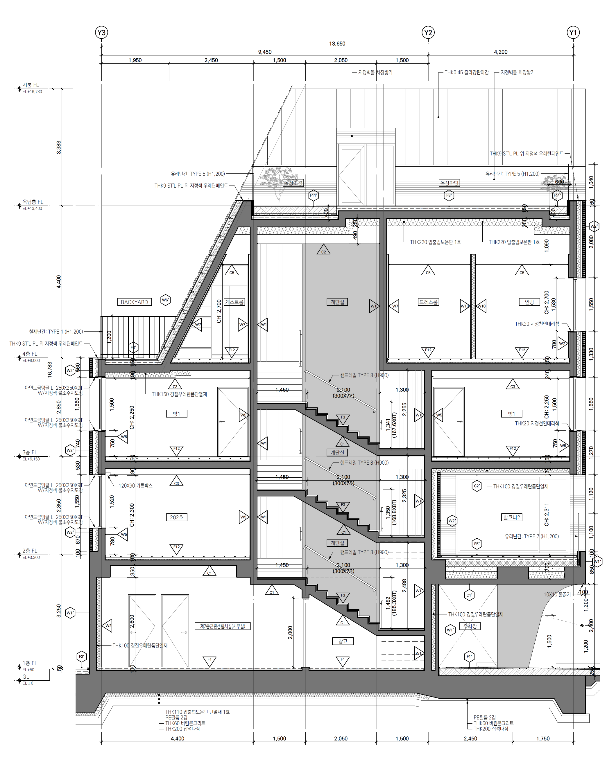
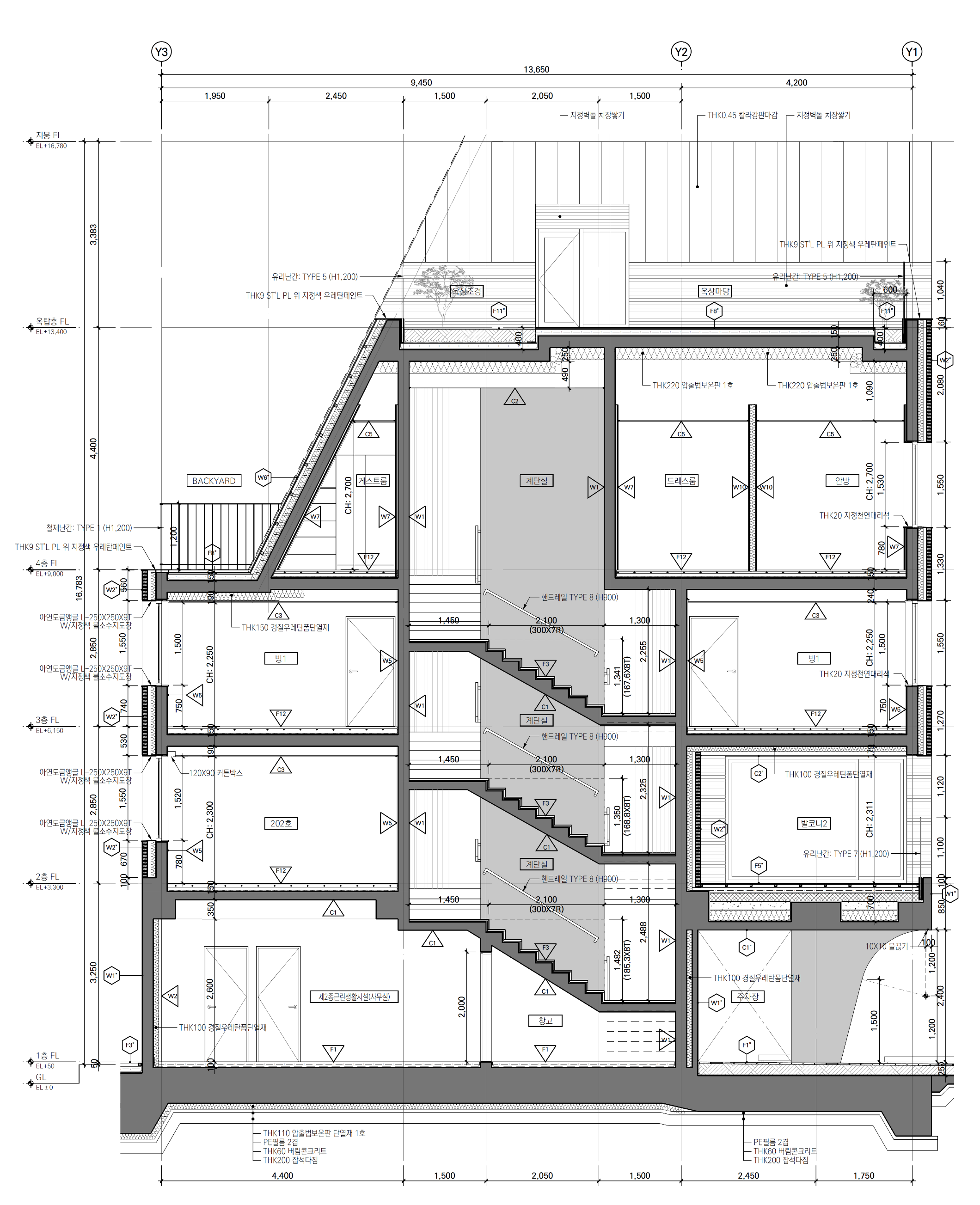
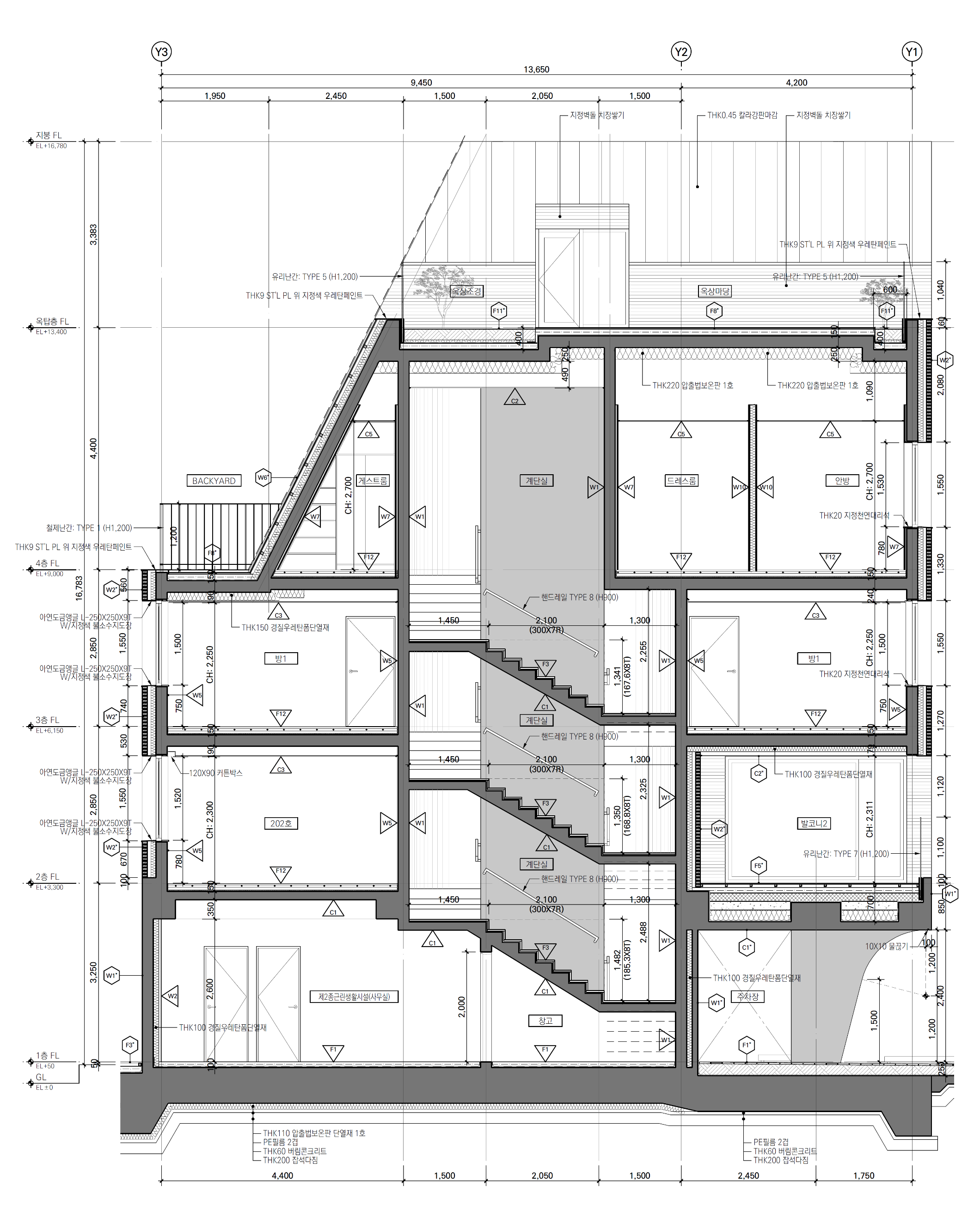
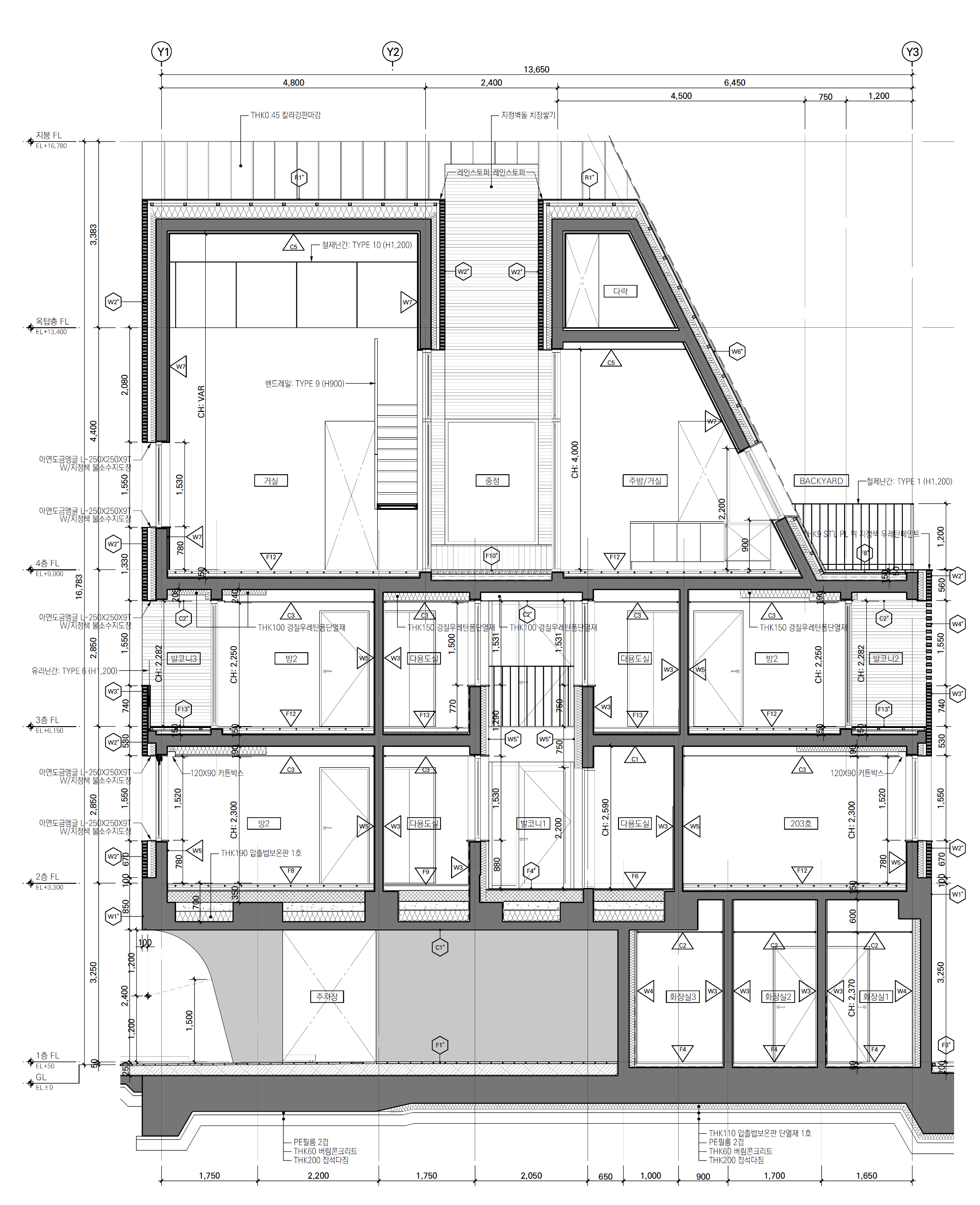
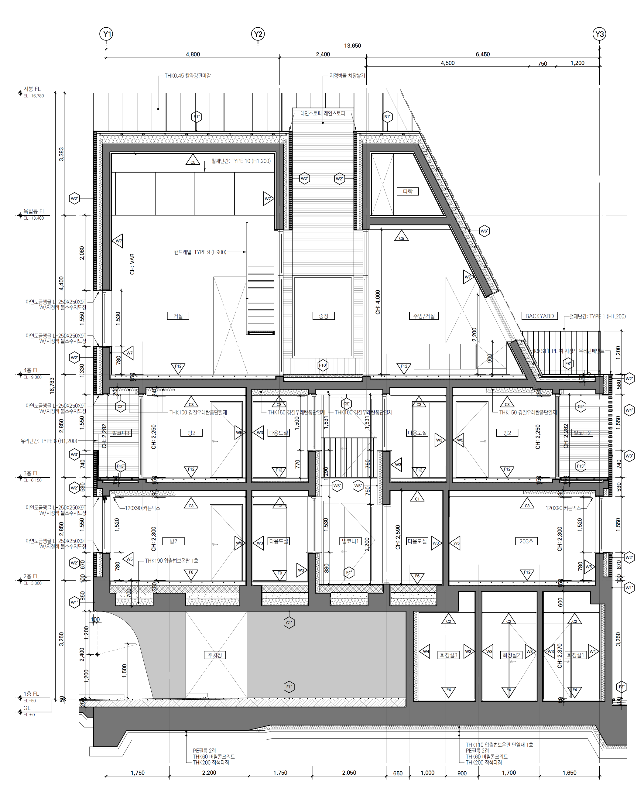
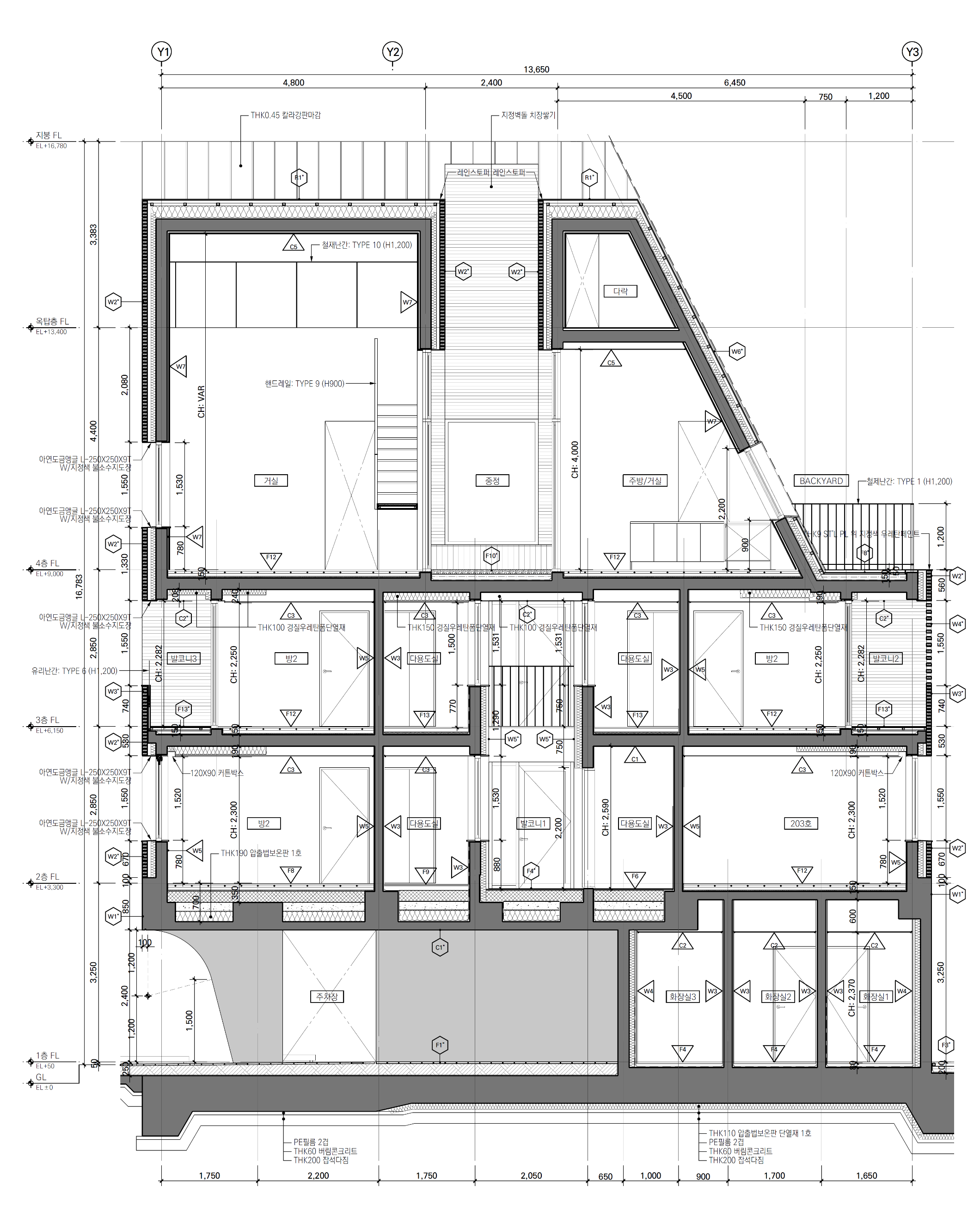
UIWANG HOUSING
The narrow common space where one can only go straight to the front entrance from the dark and stuffy hall as soon as they ascend the stairs or get off the elevator, and the typical floor plan (tha..
anc.masilwide.com








Architects Architecture Lab Boum
Location Uiwang-si, Gyeonggi-do, Republic of Korea
Completion 2020. 09
Photographer Yousub Song
'Detail' 카테고리의 다른 글
| [Exterior Wall] GRANVILLE 1500 (0) | 2022.06.29 |
|---|---|
| [Exterior Wall] EO SYMPATHY (0) | 2022.06.28 |
| [Window, Terrace] HWADAMJAE (0) | 2022.06.24 |
| [Exterior Wall] IAN HOUSE (0) | 2022.06.23 |
| [Exterior Wall] TH PALACE (0) | 2022.06.22 |
마실와이드 | 등록번호 : 서울, 아03630 | 등록일자 : 2015년 03월 11일 | 마실와이드 | 발행ㆍ편집인 : 김명규 | 청소년보호책임자 : 최지희 | 발행소 : 서울시 마포구 월드컵로8길 45-8 1층 | 발행일자 : 매일



