OHE HOUSE
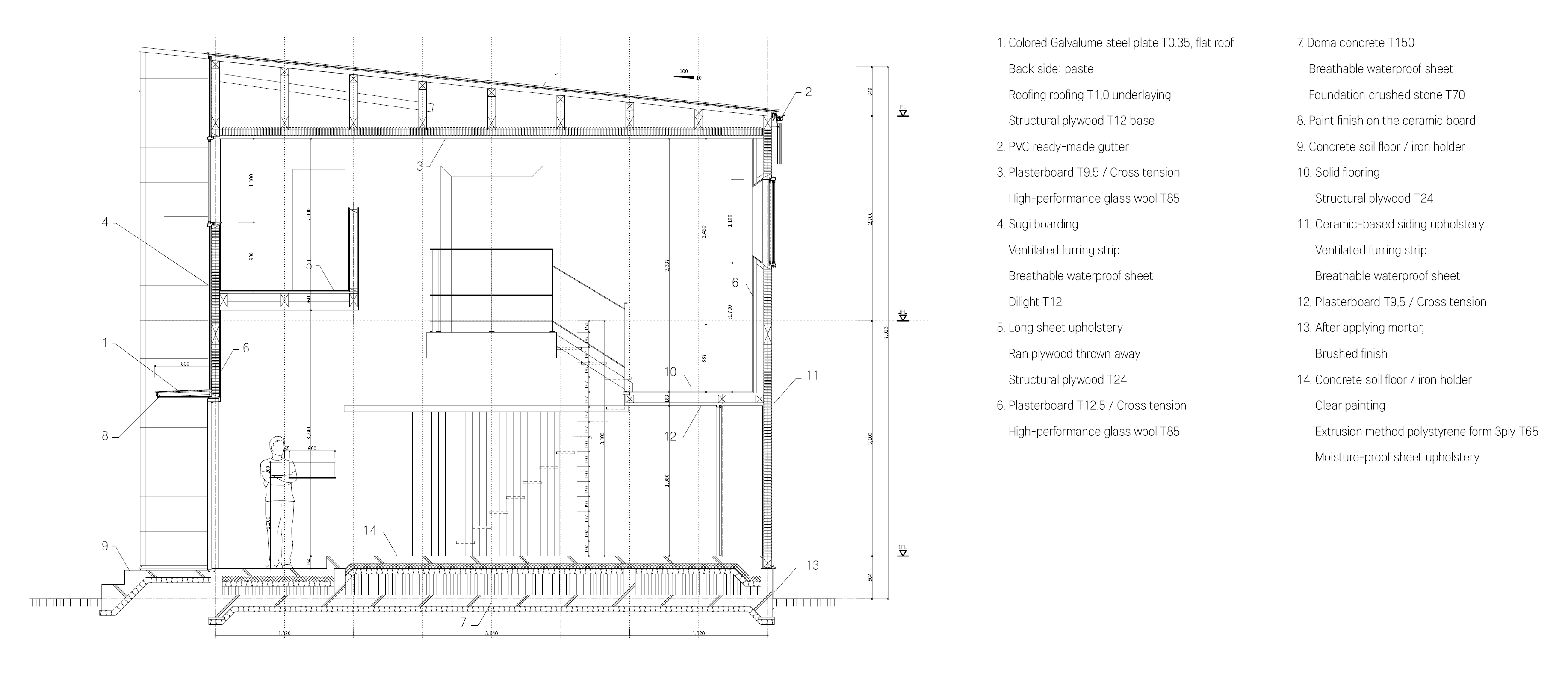
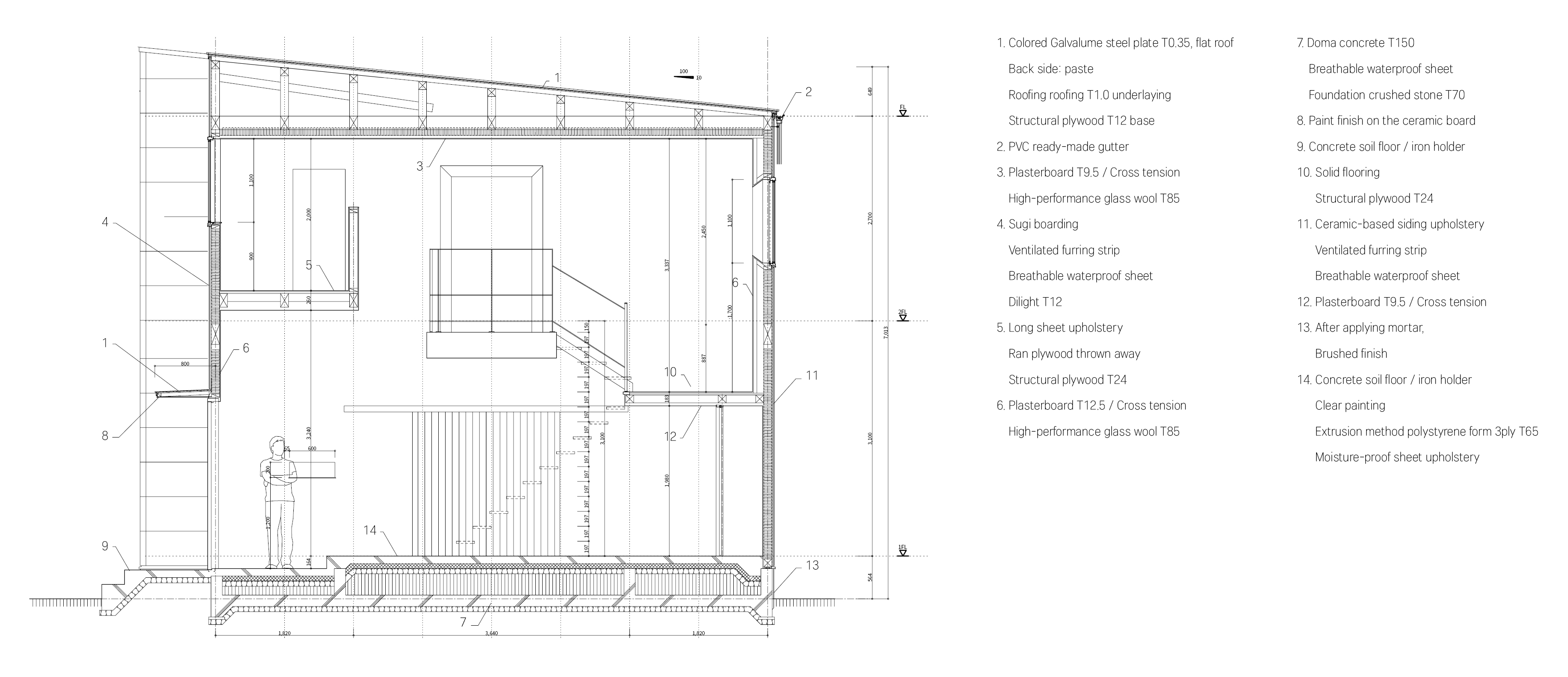
A house of unified divisions This reconstructed house is located in an old residential neighborhood. The north side of the house faces a street and the other three sides are facing neighbors’ hous..
anc.masilwide.com



Architects ALTS DESIGN OFFICE
Location Shiga, Japan
Completion 2019. 11
Photographer Yuji Matski
반응형
'Detail' 카테고리의 다른 글
| [Exterior Wall, Roof] DONGCHUN GREENHOUSE (0) | 2022.05.09 |
|---|---|
| [Exterior Wall] DJ HOUSE (0) | 2022.05.06 |
| [Oculus] HOURGLASS CORRAL (0) | 2022.05.03 |
| [ROOF] HOUSE IN HOJO (0) | 2022.05.02 |
| [Exterior Wall] GAHWAMANSASEONG (0) | 2022.04.29 |
마실와이드 | 등록번호 : 서울, 아03630 | 등록일자 : 2015년 03월 11일 | 마실와이드 | 발행ㆍ편집인 : 김명규 | 청소년보호책임자 : 최지희 | 발행소 : 서울시 마포구 월드컵로8길 45-8 1층 | 발행일자 : 매일



