
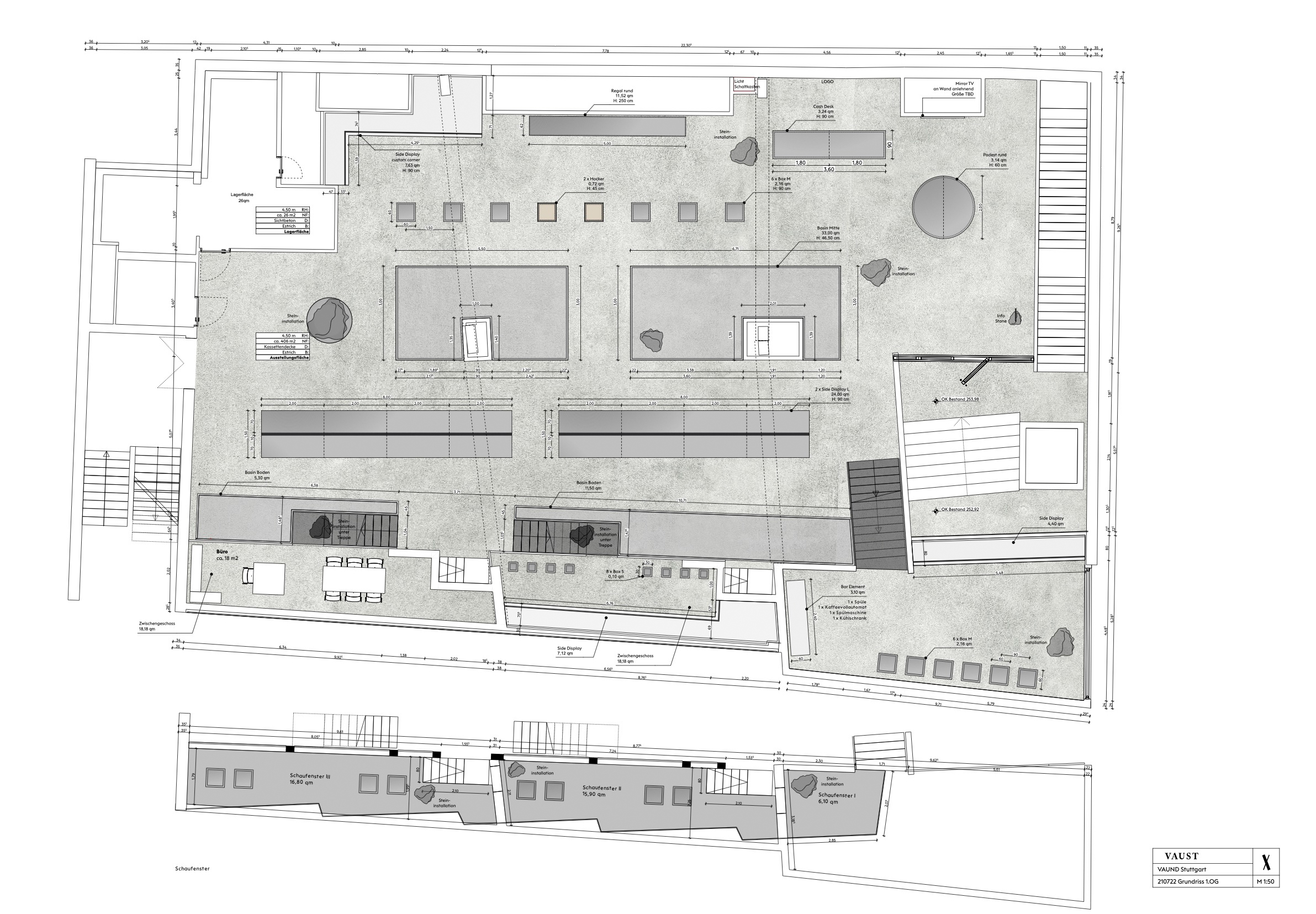
테크니컬 굿즈와 혁신적 창업 제품을 위한 미니멀한 미적 감각의 넓은 컨셉 스토어로 전체적인 아이디어는 건물 부지의 자연스런 외관을 유지하고 재료의 다양한 사용과 함께 결합하여 어떤 종류의 전통적인 마감재도 피하는 것이다. 주어진 건축물은 뼛속까지 벗겨지고 콘크리트 벽과 작은 갤러리로 기능하는 층과 가게 창문의 흥미로운 배열로 주목을 받는다.

The spacious concept store for technical goods andinnovative start-up products os by a minimal aesthetic. the overall idea is to keep some of the building site's natural look and to bring it together with an eclectic use of materials to avoid traditional finishes of any kind. the given architecture was stripped to the bone and gets complimented with concrete walls and an interesting arrangement of levels and shop windows which function as little galleries.











Design VAUST
Location Berlin
Program Retail design
Gross floor area 500㎡
Completion 2022
Photographer Victor Brigola
'Interior Project > Retail' 카테고리의 다른 글
| SEESON NKKN (0) | 2022.07.15 |
|---|---|
| An&Be (0) | 2022.04.22 |
| HAIGHT SHOPPING LEBLON (0) | 2022.04.14 |
| SEVENTY STUDIO (0) | 2022.03.03 |
| Rareraw (0) | 2022.02.25 |
마실와이드 | 등록번호 : 서울, 아03630 | 등록일자 : 2015년 03월 11일 | 마실와이드 | 발행ㆍ편집인 : 김명규 | 청소년보호책임자 : 최지희 | 발행소 : 서울시 마포구 월드컵로8길 45-8 1층 | 발행일자 : 매일



