DAOLJAE
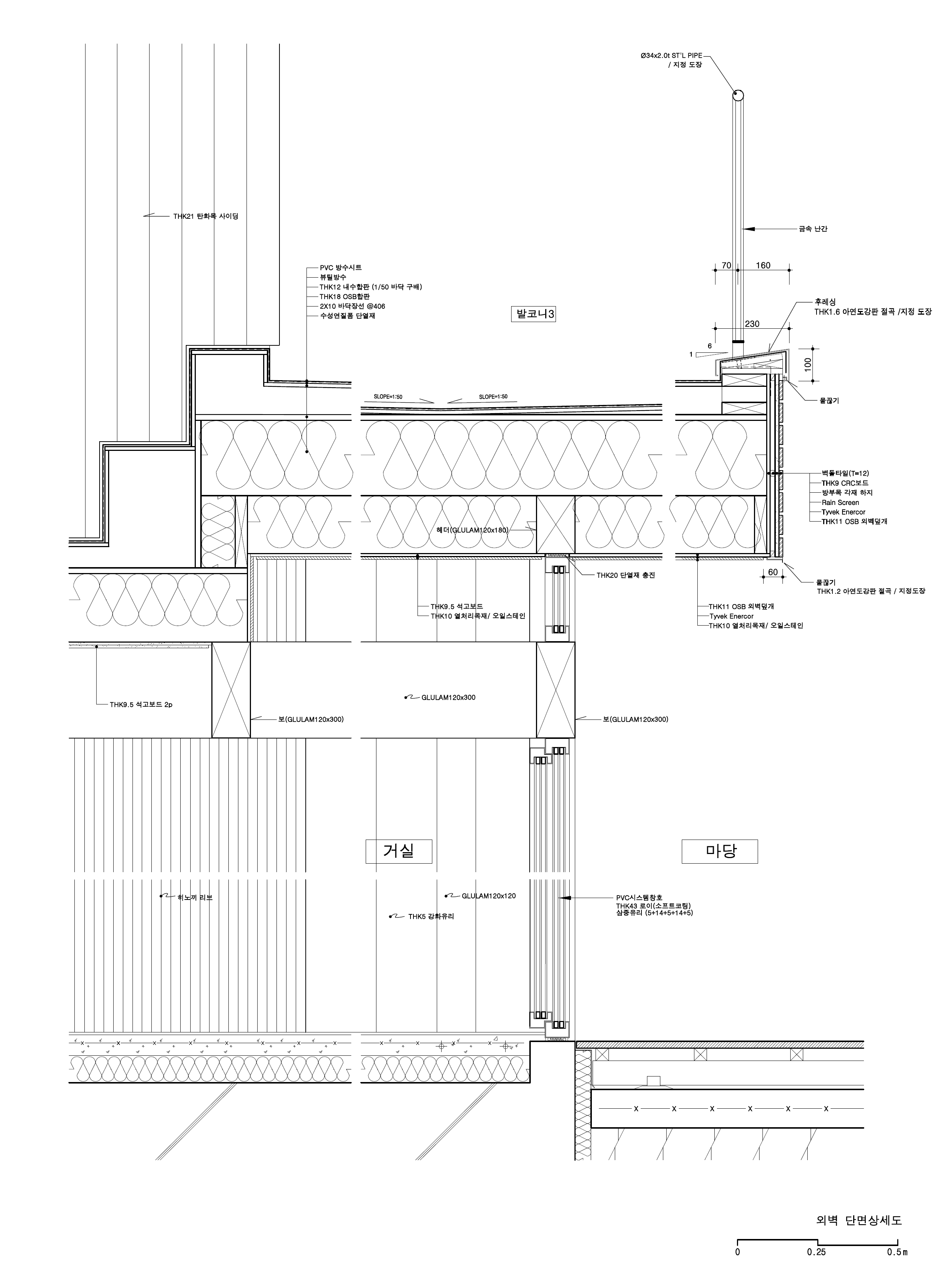
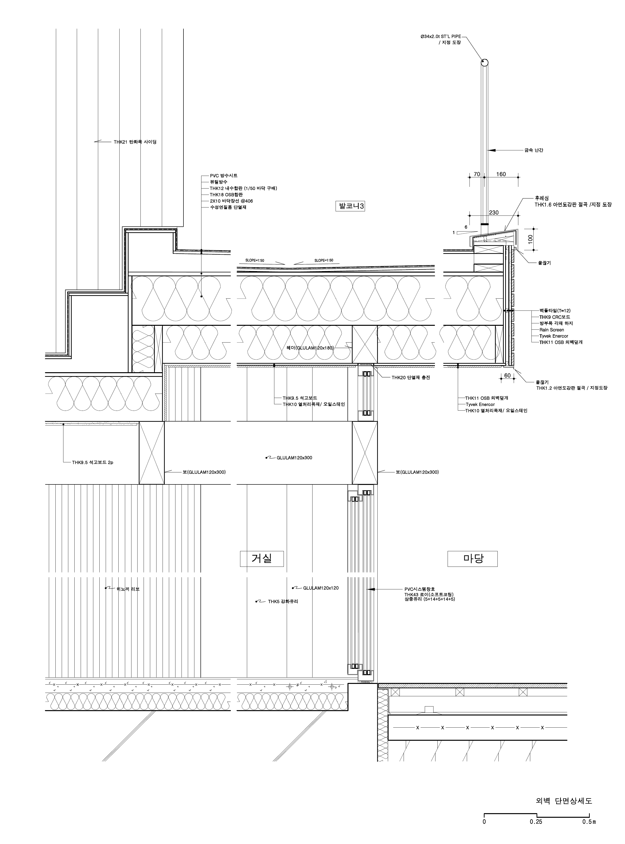
The Daoljae is a house built by husband and wife live with their parents, where they lived in Yeonhui-dong, Seoul. The east-facing house has a four-story house to the south, giving it a stunning vi..
anc.masilwide.com





Architects admobe architect
Location Yeonhui-dong, Seodaemun-gu, Seoul, Republic of Korea
Completion 2019. 08
Photographer Changmook Kim
반응형
'Detail' 카테고리의 다른 글
| [Roof, Exterior Wall] RED HOUSE (0) | 2022.03.28 |
|---|---|
| [Exterior Wall, Louver] SANGDAE-DONG HOUSE (0) | 2022.03.25 |
| [Window, Roof]SUNSET HOUSE (0) | 2022.03.23 |
| [Section] STACKED HOUSE (0) | 2022.03.22 |
| [Roof, Exterior Wall, Section] WANJU HOUSE (1) | 2022.03.21 |
마실와이드 | 등록번호 : 서울, 아03630 | 등록일자 : 2015년 03월 11일 | 마실와이드 | 발행ㆍ편집인 : 김명규 | 청소년보호책임자 : 최지희 | 발행소 : 서울시 마포구 월드컵로8길 45-8 1층 | 발행일자 : 매일



