
“SUMSEI TERRARIUM”, a journey to find myself
We focused on a special story of our brand in order to spread the strengths of Sumsei in the room. Sumsei has products that mostly encounter bare bodies or bare feet, such as ‘body dryer’ which is the leading product that is used to easily dry the body after shower. We paid attention to the fact that it is the closest brand to our body among many products that we easily pass by in our daily life. Wind blows when we stand up on Sumsei with a bare body, and the wind slowly awakens our senses. The awakening of the senses is the process of constantly redefining oneself by the senses from recognizing one's body as the subject of the senses. Sumsei awakens our senses from head to toes and constantly ventilates our existence like the poem “Flower” by the poet Kim Choon Soo and the “rose” of the Little Prince, and this is the key element to unraveling the space of Sumsei. First of all, in order to evoke our daily lives filled with boredom and awaken unfamiliar senses, we need to return our body to a state of nothingness. And by opening our senses intentionally, it allows you to feel the experience of building up layers of sense on your own. We plan a space that opens different senses for each floor, and we intended the staircase to suggest the next space. Each floor is melted with spatial and temporal background, which is intended to help the audience empathize when the senses open gradually. Not just limited to senses, when the audience empathizes with the spatial context, we thought that we could maximize the experience that they feel in it.
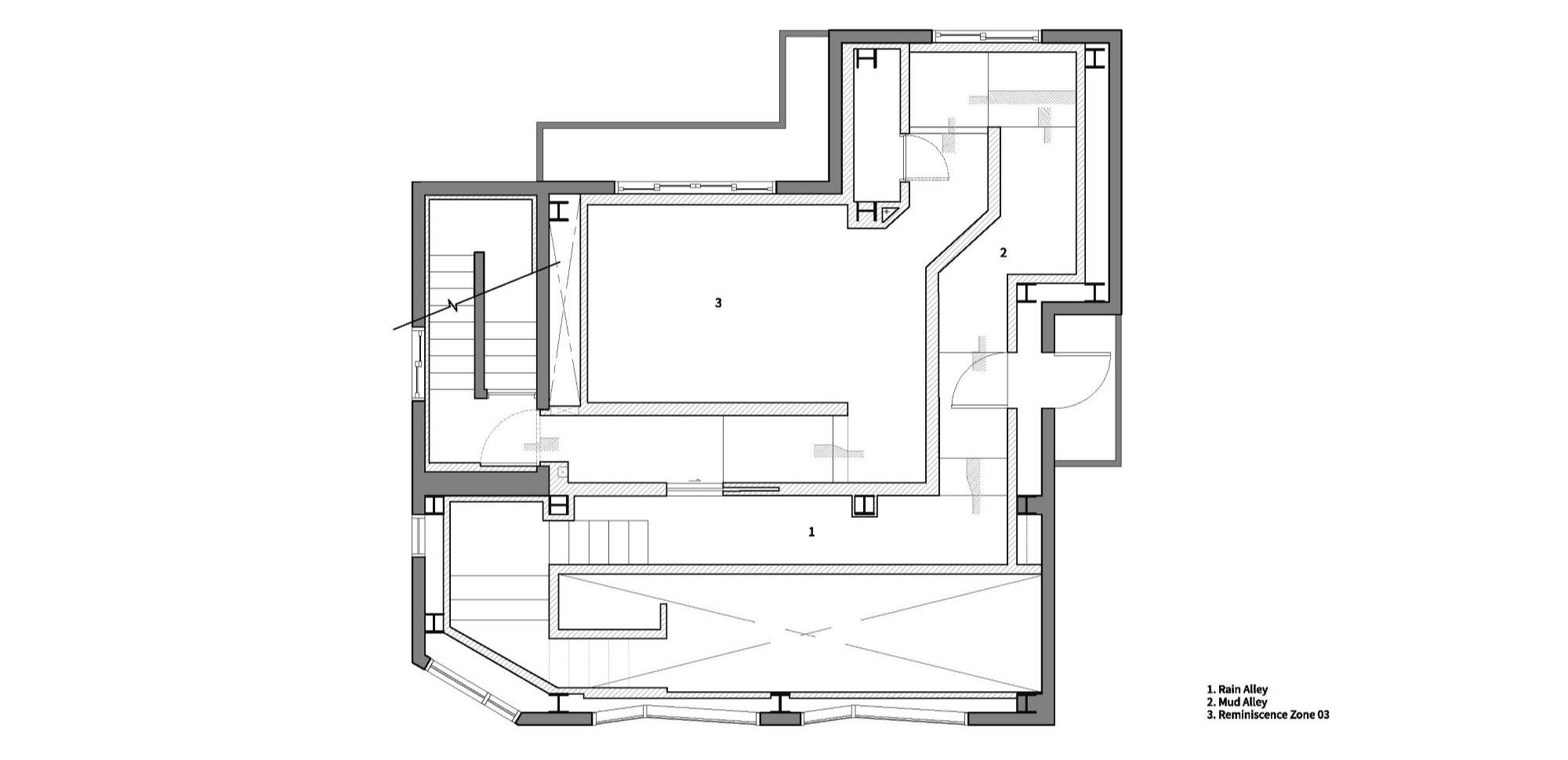
B1 Darkness of Underground
When you go down to the basement, the space on the first basement floor you will encounter is deep ground and deep night. According to the guidance, all the spectators will take their shoes off and enter with bare feet to the space of Sumsei. They will pass through the dark, sightless, and long passage, while solely depending on the candle and sensations from the tips of their hands and feet. It takes courage to take a step while leaving behind the vague fear that surrounds you. At this moment, the toe transmits a total of three different senses, and the touch of the ground coming in contact with the foot feels very new. Furthermore, as the sensation of the feet changes, you can also experience how the pieces of sound that enter your ears change. At the end of the passage, there is a space for meditation where you can put down the candle you depended on while passing through the passage and take a moment to clear your senses while looking at the candle. The flickering candles caress the blurry figures, and the spectator can feel their vague senses gradually becoming clearer. After passing through the meditation space, an underground space that maximizes the spatial and temporal background appears. The void space of the building was used to create a gap in the dark ground where the night sky was opened.
1F Water of dawn
At the end of the first basement floor, you can feel the water flowing down from the first floor. When you go up to the first floor by following the stairs where the water flows, the temporal background changes from deep night to dawn, and the spatial background changes from the ground to a wetland. Dawn hides the light of the world and only reveals its black-and-white form. It was opened a little more visually than in the ground where nothing could be seen, but it is still more breath-taking. Although the front sight is still blurry, senses are gradually awakened by the sharp touch of the water. After stepping on the water path and mud that hints at the shore, you arrive at the shore where the mist rises. You gradually wake up at dawn as you realize yourself anew in a stillness that moves slowly.
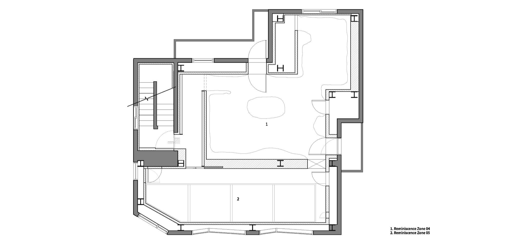
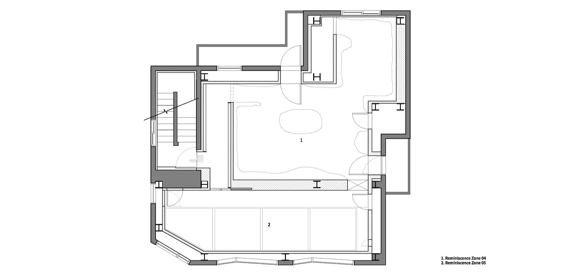
2F heart of wind
As you climb the stairs along the grass, you arrive at a field where the wind blows. The wind is not something that can be easily captured by our eyes. Therefore, we thought that it was difficult to fully understand the wind simply by looking at something swaying in the wind. In this field, a landscape of wind that cannot be experienced in daily life was created to evoke the existence of the wind and to allow spectators to feel the various expressions of the wind with their whole body. The first room has a field of reeds swaying in the wind below, and waves swaying in the wind above it. You can lie freely on the reed field and feel the traces of the wind with your whole body. The second room has water below and a field of time above. This time, you can lie on the water and admire the fields swaying in the wind. While coming this far, spectators can feel a new sensation with every step, and feel that their whole body is gradually filled with clearer sensations through unfamiliar experiences. The clearer the body, the more vaguely scattered thoughts and emotions are organized.
3F Sumsei Forest
After passing through a mysterious green passage where rustling leaves welcome you, you finally reach the forest. Birds are chirping, the water is flowing, and the sky is glimmering. The 3rd floor is the forest of Sumsei, where the five senses are opened. You can also enjoy a drink with the scent of homegrown basil. Spectators will accept this space with their own senses that have been accumulated through the experiences from each floor. You can stay in peace with comfort while savoring the pieces of nature that have passed by.
ROOFTOP Refresh five senses
The rooftop is a space to expand the forest of Sumsei and finish the journey. The sky is infinitely high above your head, and in the sky, there is a mirror swaying in the wind. Below, a square, straight head contains the objects of the sky and wind. The mirror is a mirror of the self that is finally faced again, and is the period of a long journey. Our body repeats to go in and out of nature due to the swaying mirror. The length and color of light that changes every moment, the expression of water that captures the sky, and you can even feel the sound of the wind moving through the bamboo and its canes.
The world changes depending on the range of our senses. In the space of Sumsei, you can discover your existence through the recovery of the senses and sensory experiences leave clear marks in our memories. Now, as rain, we are ready to face a more abundant daily life than yesterday. A brand that derives joy that you have been facing all the time but have not been aware of rather than creating novelty that has never been seen before, Sumsei, a brand that brings joy that you have been looking at but unaware of, gathers the small movements and eventually takes the first step that will derive an emotional change to the world. In this way, we tried to break away from the one-sided appeal of offline stores from the past through space. We tried to convey the brand’s message, which is “it is okay not purchasing” by eliciting the consumer’s active curiosity through not exposing the product on the front, the primordial experience of nature, and five senses.

나를 찾는 여정, ‘섬세이 테라리움’
우리는 섬세이의 장점을 공간에 풀어내기 위해, 브랜드의 특별한 이야기에 집중했다. 섬세이는 샤워 후에 가볍게 몸을 말리는 제품인 ‘바디 드라이어’를 선두로, 주로 맨몸이나 맨발로 마주하게 되는 제품들이 있다. 일상 속 쉽게 스쳐가는 많은 제품 중에서 가장 우리의 몸과 가까운 브랜드라는 점에 주목했다. 맨몸으로 섬세이 위로 올라서면 바람이 불고, 그 바람은 서서히 우리의 감각을 일깨운다. 감각이 깨어난다는 것은 자신의 신체를 감각의 주체로서 인식하는 것에서 스스로 감각에 의해 끊임없이 재정의 되는 존재임을 깨닫는 과정이다. 김춘수 시인의 꽃처럼, 어린 왕자의 장미꽃처럼, 섬세이는 발끝에서부터 감각을 일깨우며 끊임없이 우리의 존재를 환기하고 있었고, 이것이 우리가 섬세이의 공간을 풀어낼 핵심 요소라고 생각했다. 우선, 권태로운 감각들로 채워진 우리의 일상을 환기하고, 익숙하지 않은 감각들을 깨우려면, 우리의 몸을 무(無)의 상태로 되돌릴 필요가 있다. 그리고 의도적으로 감각을 천천히 열어 줌으로써, 감각의 겹(Layer of Sense)을 스스로 쌓아 나가는 경험을 느낄 수 있도록 했다. 층별로 다른 감각을 열어주는 공간을 기획하고. 계단실은 다음 공간을 암시할 수 있도록 의도했다. 각 층은 각각의 공간적, 시간적 배경이 녹아 있는데, 이는 감각을 점층적으로 열어 줄 때, 관람객이 보다 공감할 수 있도록 하기 위함이다. 감각 뿐만 아니라 공간의 맥락에 한번 더 공감할 때, 그 속에서 느끼는 경험이 극대화 될 수 있다고 생각했다.
B1 Darkness of Underground
지하로 내려오면 마주하게 되는 지하 1층의 공간은 깊은 땅 속이자, 깊은 밤이다. 안내에 따라, 관람객은 모두 신발을 벗고 맨발로 섬세이의 공간에 들어가게 된다. 앞이 보이지 않는 긴 통로를 촛불에 의지해 손끝, 발끝의 감각에 의존하여 통과한다. 밀려오는 막연한 두려움은 뒤로한 채 한걸음을 내딛는 용기가 필요하다. 이때 발끝은 총 세 가지의 서로 다른 감각을 전달하는데, 발에 닿는 땅의 감촉이 새삼스럽게 느껴진다. 나아가, 발의 감각이 달라짐에 따라 귀에 맺히는 소리의 조각이 달라지는 것 또한 경험 할 수 있다. 통로의 끝에는 통로를 지나는 동안 의지했던 초를 내려놓고 촛불을 보며 잠시 자신의 감각을 정리하는 시간을 가질 수 있는 명상의 공간이 있다. 일렁이는 촛불은 흐릿했던 형상들을 어루만지고 관람객은 점차 어렴풋했던 자신의 감각이 분명해 지는 것을 느낄 수 있다. 명상공간을 지나면 공간적, 시간적 배경을 극대화한 땅속 공간이 나온다. 건물의 보이드 공간을 활용해 어두운 땅속에서 밤하늘이 열리는 틈을 만들었다.
1F Water of dawn
지하 1층의 끝에서는 1층에서 흘러내려온 물을 느낄 수 있다. 물이 흐르는 계단을 따라 1층으로 올라가면 시간적 배경은 깊은 밤에서 새벽으로, 공간적 배경은 땅속에서 습지대로 바뀐다. 새벽은 세상이 가진 빛들을 숨긴 채 흑백의 그 형체만을 오롯이 드러내는 시간으로써 아무것도 보이지 않던 땅 속보다는 조금 더 시각적으로 열렸지만 아직은 한층 더 숨을 고르는 상태이다. 눈앞은 아직 흐릿하지만 선명하게 다가오는 물의 감촉에 점차 감각들이 깨어난다. 물가를 암시하는 물길과 진흙을 밟고 나면, 물안개가 피어 오르는 물가에 도착한다. 서서히 움직이는 고요한 존재 속에서 나를 새롭게 깨달으며 점차 새벽에서 깨어난다.
2F heart of wind
잔디를 따라 계단을 올라서면 어느새 바람이 부는 들판에 도착한다. 바람은 우리의 눈에 쉽게 담기는 존재가 아니다. 따라서, 단순히 바람에 흔들리는 무언가를 바라보는 것만으로는 바람을 온전히 이해하기 어렵다고 생각했다. 이 들판에서는 일상 속에서 경험하지 못하는 바람의 풍경을 만들어 바람의 존재를 환기하고 관람객으로 하여금 바람의 다양한 표정을 온몸으로 느낄 수 있도록 기획하였다. 첫번째 방은 아래로는 바람에 흔들리는 갈대밭이 있고, 그 위로는 바람에 흔들리는 물결이 입혀진다. 갈대밭에 자유로이 누워 바람이 흔들어 놓은 흔적을 온몸으로 느낄 수 있다. 두번째 방은 아래로는 물이 있고 위로는 시간에 물든 들판이 있다. 이번에는 물 위에 누워 바람에 흔들리는 들판을 감상할 수 있다. 여기까지 오는 동안 관람객들은 걸음마다 새삼스러운 감각을 느끼고, 생경한 경험들을 통해 자신의 온몸이 점차 선명해진 감각들로 채워지는 것을 느낄 수 있다. 몸이 선명해 질수록 형체를 알 수 없이 막연하게 흐트러져 있던 생각들과 감정이 정리되는 것을 경험한다.
3F Sumsei Forest
살랑거리는 잎들이 반기는 신비로운 초록빛 통로를 지나면, 마침내 숲에 도달한다. 새가 지저귀고, 물이 흐르고, 하늘 빛이 아른거린다. 3층은 섬세이의 숲으로, 오감이 열리는 곳이다. 직접 키운 바질의 향이 담긴 음료를 먹으며 미각도 열린다. 관람객들은 각층의 경험을 통해 쌓아 올린 저마다의 감각들로 이 공간을 받아들이게 된다. 스쳐 지나갔던 자연의 조각들을 음미하며 평온하고 안락하게 머무를 수 있다.
ROOFTOP Refresh five senses
루프탑은 섬세이의 숲을 확장하고, 여정의 마무리를 위한 공간이다. 머리 위로는 한없이 높은 하늘이 펼쳐지고, 하늘엔 바람에 흔들리는 경(鏡 )이 있다. 아래로는 네모 반듯한 수반이 그 하늘과 바람의 오브제를 담는다. 이 거울은 마침내 다시 마주하는 자아의 거울이자, 긴 여정의 마침표이다. 우리의 몸은 흔들리는 거울에 의해 자연 속으로 들어왔다 나오기를 반복한다. 순간마다 바뀌는 빛의 길이와 색, 하늘을 담아내는 물의 표정, 그리고 대나무와 나무 살 사이로 움직이는 바람의 소리까지 느끼게 된다.
세상은 우리가 느낄 수 있는 감각의 범위에 따라 달라진다. 섬세이의 공간에서는 감각의 회복을 통해 자신의 존재를 발견할 수 있고, 감각의 경험은 우리의 기억 속에 선명한 자국을 남긴다. 이제 비로서 어제보다 풍요로워진 일상을 마주할 준비를 마치게 된다. 전에 없던 기발한 것을 만들어 내기보다는 늘 바라보고 있었으면서도 미처 깨닫지 못하고 있었던 즐거움을 이끌어내는 브랜드, 섬세이는 작은 움직임을 모아 마침내 세상에 감동적인 변화를 이끌어 낼 첫 발걸음을 내딛는다.
이처럼 우리는 공간을 통해 과거 오프라인 매장의 일방적인 소구 방식에서 벗어나려 했다. 제품을 전면에 드러내지 않고 브랜드가 추구하는 자연의 원초적인 경험과 오감을 통한 체험 요소들을 통해 소비자의 능동적인 호기심을 이끌어내며 ‘사지 않아도 괜찮다’는 브랜드의 메시지를 전달하려 했다.




















Design Jungbae Shin(NONESPACE)
Location 44-1, Seoul Forest 2-gil, Seongdong –gu, Seoul, Republic of Korea
Building area 412.5㎡
Design team Yourim Lee, Hyeri Jeon(NONESPACE)
Floor Gravel, Stone, Merbau, Grass, Black sus
Wall Grc, Painting, Satin glass, Merbau
Ceiling Painting Grc, Painting, Satin glass, Mirror
Exhibition planning NONESPACE
Construction Jihoon Park, Hyeri Jeon(NONESPACE)
Photographer Haneol Kim, Jaeyoon Kim
'Interior Project > Exhibition' 카테고리의 다른 글
| FURNITURE FOR AN EMPEROR IN TRANSITION (0) | 2023.03.21 |
|---|---|
| Exhibition: HOLOGRA-MAA (0) | 2023.02.24 |
| f22 foto space (0) | 2022.02.25 |
| KennaXu Gallery (0) | 2022.02.08 |
| Shenzhen Prince Plaza Exhibition Center Design (0) | 2022.01.26 |
마실와이드 | 등록번호 : 서울, 아03630 | 등록일자 : 2015년 03월 11일 | 마실와이드 | 발행ㆍ편집인 : 김명규 | 청소년보호책임자 : 최지희 | 발행소 : 서울시 마포구 월드컵로8길 45-8 1층 | 발행일자 : 매일



