
The biggest feature of Suwon’s Haenggung-dong, where white concrete is located, is the hidden shops in every big and small alley that led from the inside of Suwon Hwaseong Fortress to Hwaseong Temporary Palace, of which most were remodeled old western-style houses. White concrete is also one of the cafes situated on the first floor of an old western-style house in Haenggung-dong.
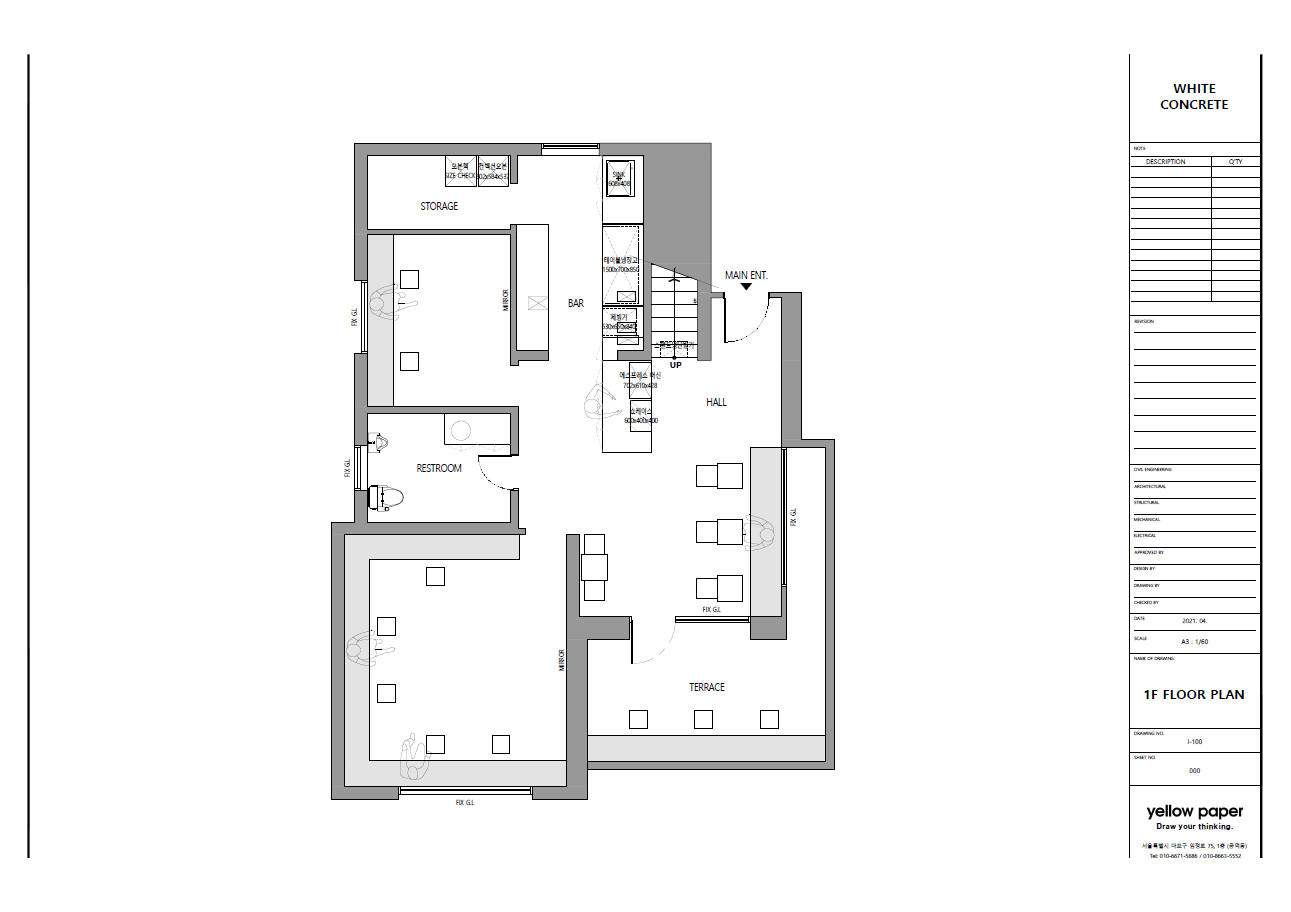
The client emphasized a white-toned color plan from the design concept meeting, and the architects wanted to preserve the original memory of the existing western-style house rather than completely demolishing and renovating. After a long discussion, the design direction was set to consistently apply a new white-colored spatial element onto the traces of time of the old western-style house. When planning the floor plan, the most thought was given to the location of the kitchen. The original location of the kitchen in the western-style house was too small and not suitable for serving customers. To solve this issue, a long bar table that extends from the kitchen to the living room was placed. Moreover, the floor plan was made to use the areas where the existing master bedroom, living room space, and small room were located as seats.
When the terrace space was used as part of the house, it was impossible to enter from the inside. In the process of demolishing the window, the lower part of the wall was removed, and the front side was planned as a full glass window to allow entry from the interior. Furthermore, customers can feel a sense of openness as they enter the cafe with a wide-open view given by the full glass window and were able to enjoy contemplating while sitting under a beautiful tree. The furniture placed in each room, living room and terrace was consistently designed in simple forms and white tones. The furniture designed in a concise and simple form contrasts with the traces of time of the old western-style house. People can also look around and feel the joy of finding the spatial elements in the memories of the old western-style house.

화이트 콘크리트가 위치한 수원 행궁동의 가장 큰 특징은 수원화성 안쪽에서 화성행궁으로 이어지는 크고 작은 골목길 마다 숨은 상가들인데, 대부분이 오래된 양옥집을 개조해 자리를 잡고 있다. 화이트 콘크리트 역시 행궁동의 오래된 양옥집 1층에 자리 잡은 카페들 중 하나이다.
건축주는 디자인 콘셉트 미팅 때부터 화이트 톤의 색상 계획을 강조했고, 건축가는 전면적인 철거와 개조보다는 기존 양옥집이 가진 본래의 기억을 살리고자 했다. 오랜 협의 끝에 오래된 양옥집이 가진 시간의 흔적 위에 흰 색의 새로운 공간 요소를 일관되게 적용하는 것으로 디자인 방향을 잡게 되었다. 평면 계획 당시 가장 고민했던 부분은 주방의 위치였다. 양옥집의 주방이 있던 장소는 너무 협소했고, 고객들을 응대하기에도 적합하지 못했다. 이를 해결하고자 주방에서부터 거실까지 이어지는 긴 형태의 바 테이블을 배치하게 되었다. 그리고 기존 안방이 있던 자리와 거실 공간, 그리고 작은 방은 모두 좌석으로 활용하는 방향으로 평면을 구성했다.
테라스 공간은 주택으로 쓰였을 당시에는 내부에서 진입이 불가능한 구조였다. 창문을 철거하는 과정에서 벽 하단부를 모두 철거하여 전면을 통유리창으로 계획함으로써 내부에서 진입이 가능하도록 했다. 또한 통창을 통해 고객들은 카페에 들어서자마자 탁 트인 시야와 함께 개방감을 느낄 수 있으며, 멋진 나무 아래에 앉아 사색을 즐길 수도 있게 되었다. 각각의 방과 거실, 테라스에 배치된 가구들은 화이트 톤에 단순한 형태로 일관되게 디자인하였다. 간결하고 단순한 형태로 디자인된 가구들은 오래된 양옥집이 가진 시간의 흔적들과 대조를 이룬다. 사람들은 주위를 둘러보며 양옥집의 기억을 가진 공간 요소를 찾는 재미까지 느낄 수 있다.

















Design yellowpaper
Location 67-1, Sinpung-ro, Paldal-gu, Suwon-si, Gyeonggi-do, Republic of Korea
Gross floor area 89㎡
Building scope 1F
Design period 2021. 03. 16 - 04. 21
Construction period 2021. 04. 22 - 05. 23
Completion 2021. 05. 23
Construction yellowpaper
Client White Concrete
Photographer Yeongmin Jeong
'Interior Project > Cafe&Restaurant' 카테고리의 다른 글
| Osteria Betulla (0) | 2022.02.21 |
|---|---|
| The Exchange Bar, Shanghai Blackstone Apartment (0) | 2022.02.18 |
| Gentz Bakery Dongnae (0) | 2022.02.10 |
| eert kitchen (0) | 2022.02.09 |
| Osmo X Marusan Café (0) | 2022.02.09 |
마실와이드 | 등록번호 : 서울, 아03630 | 등록일자 : 2015년 03월 11일 | 마실와이드 | 발행ㆍ편집인 : 김명규 | 청소년보호책임자 : 최지희 | 발행소 : 서울시 마포구 월드컵로8길 45-8 1층 | 발행일자 : 매일



