
Recently, hospitals have been promoting themselves with segmentation and specialization. However, here in Songhyeon-dong, there is a doctor who insists on general surgery. In countries outside of Korea, general surgeons are praised as the best doctors. The reason is that it indicates a doctor who can perform any surgical operation. This was something I had in common with the client as I also wish that our office can become a firm that is able to design any type of architecture. A doctor who reminisces old clinics that smelled of alcohol requests for a building. A hospital should be like a hospital.
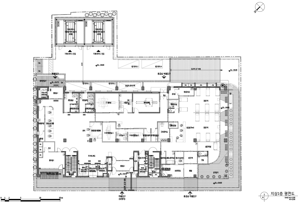
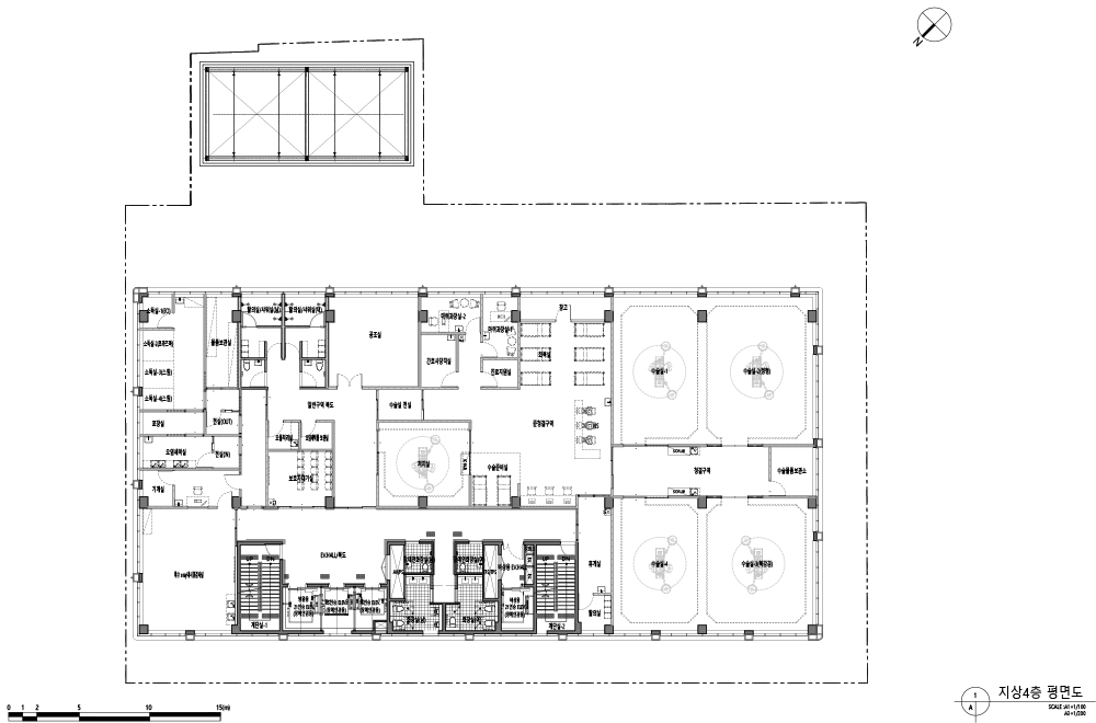
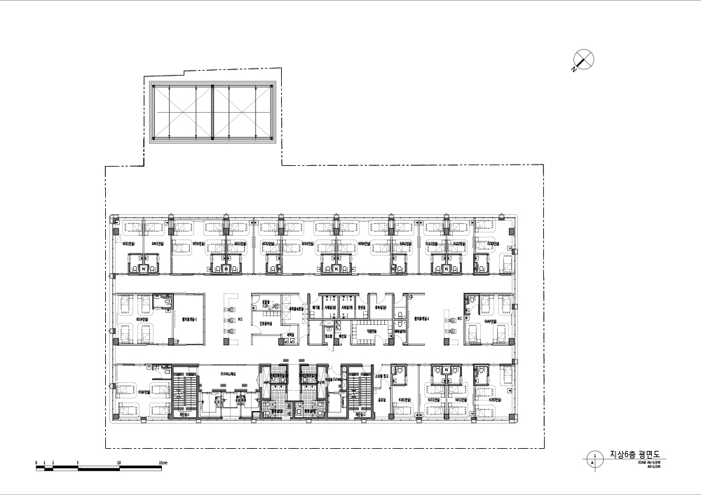
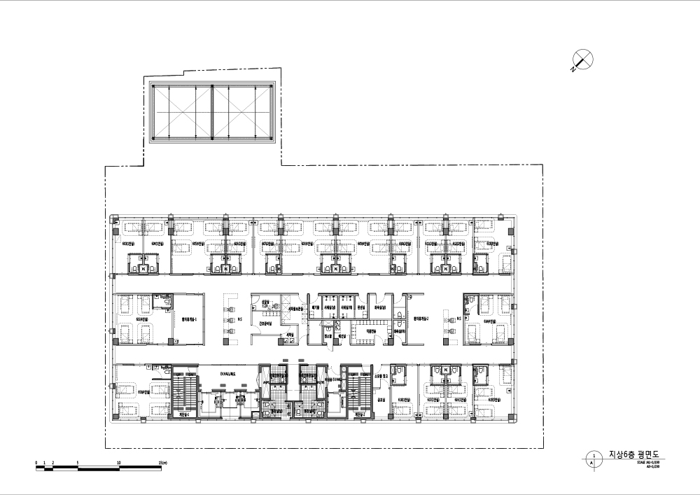
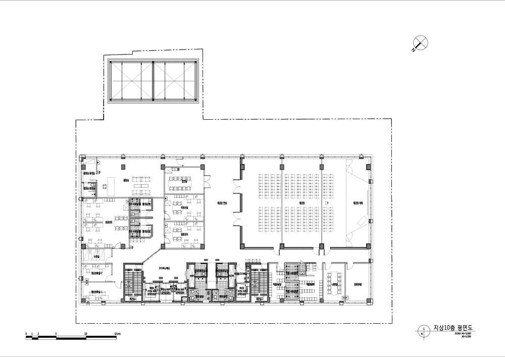
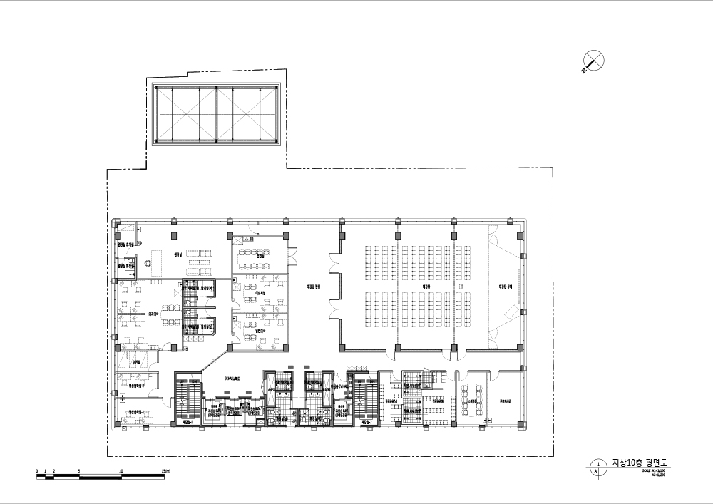
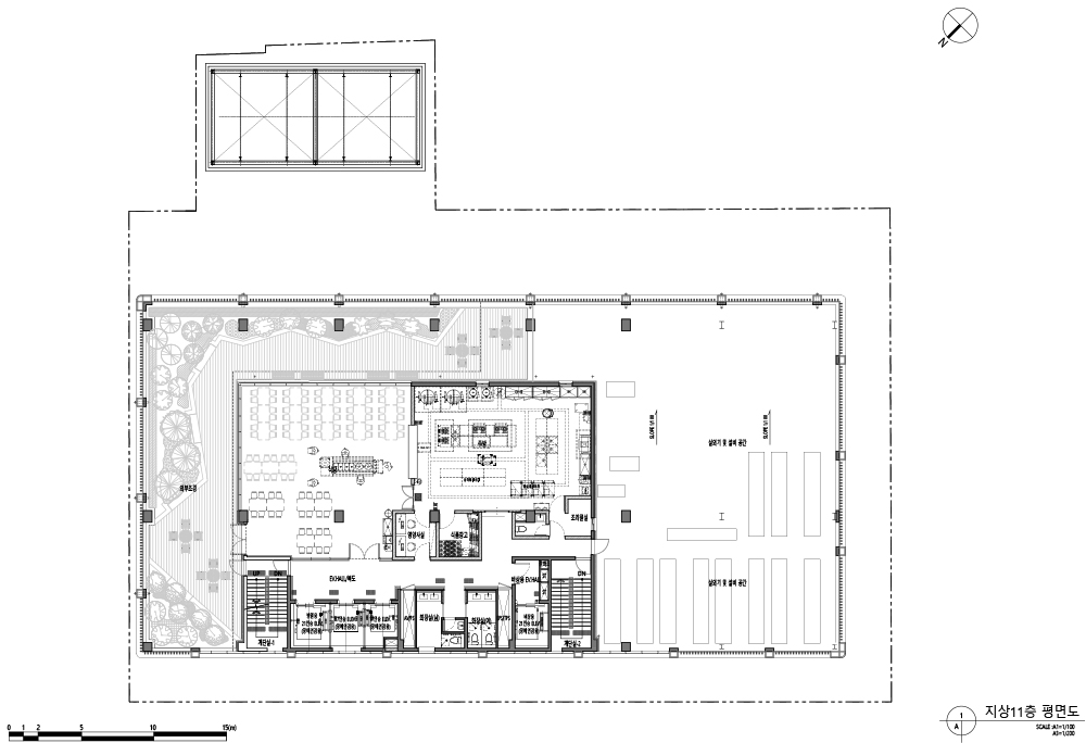
A hospital located under Apsan Mountain in Songhyeon-dong, Dalseo-gu. It faces Songhyeon station as well as a residential area and commercial facilities in its surrounding. The roadside site environment and the surrounding arcades are harmonious, and the pedestrian passages within the site have been expanded to provide an open space to local residents, and the new community space (public open space) creates natural encounters for local residents. On the first floor, there is a lobby that can be accessed from the front and back sides of the building as well as an emergency room that can be accessed quickly. The second floor holds the specialist outpatient clinics inlcuding the surgery, medicine, orthopedic and plastic surgery departments, and the third floor contains health examination facilities. On the fourth floor, there is the central supply room, ERCP room, and operating room, and the fifth to eight rooms hold the hospital rooms. The clinical pathology department, in-hospital pharmacy, and hospital administration/general affairs divisions are on the ninth floor, the hospital staff rooms and auditorium are on the tenth floor, and a restaurant is on the eleventh floor.
The main core is on the north side, so the hospital rooms and principal rooms were arranged towards the south to secure as much natural light as possible. In addition, facilities that are shared by patients, such as shower rooms, changing rooms, and a resting space, were placed in the middle to minimize the movement of patients. The nurse waiting areas were placed on both sides of the center, making it easy to manage the hospital rooms as the typical circular circulation was applied.
Due to geographical factors, Samil Hospital is located in a place that allows it to be seen at a glance when entering Wolbae-ro in front, and Jungheung-ro from Apsan Beltway, and it is located in a place that allows it to be used as a landmark element of the city. Therefore, after a lot of thought, the hospital’s facade was given a unique form by using a repetitive elevation with a pill motif. At the same time, these repeated windows increase the lighting and ventilation functions of all spaces.
Samil Hospital is a general hospital with a healing environment that can provide psychological stability beyond simple treatment. To differentiate it for common general hospitals in the city center, a healing environment that considered its users was formed, rather than an ordinary hospital, by maximizing the benefits of the natural environment and the scale, which was expanded than that of existing hospital programs. Considering the symbolism as a regional emergency medical institution representing not only Dalseo-gu but also Daegu, Spanish aluminum composite panels were used as a main material that can provide a warm image, allowing it to become a place with a relaxing atmosphere.

최근 병원들은 세분화 전문화를 내걸고 병원 홍보에 열을 올린다. 하지만 여기 송현동엔 일반외과를 고집하는 한 의사가 있다. ‘General Surgery’, 외국에서는 일반외과의를 최고의 의사로 칭송한다. 어떤 외과적 수술이던 모두 할 수 있는 의사를 뜻하기 때문이다. 우리 사무실도 어떠한 건축물이든 모두 설계할 수 있는 회사가 되길 바라는 나의 마음과도 통하는 부분이 있다. 알코올 냄새가 나는 옛 의원들을 추억하는 의사가 주문을 한다. 병원은 병원다워야 한다.
앞산 아래에 달서구 송현동에 자리잡은 병원. 주변에 송현역, 주거지역, 상업시설과 마주하고 있다. 도로변 대지 환경과 주변 상가가 조화를 이루고, 인근 지역 주민에게 열려 있는 공간을 제공하기 위해 대지 내 보행통로를 확대했으며, 새로운 커뮤니티 공간(공개공지)은 지역 주민의 자연스러운 마주침을 만들어 낸다. 1층에는 건물 전, 후면으로 진입 가능한 로비와 빠르게 접근 가능한 응급실이 있으며, 2층은 외과, 내과, 정형외과, 성형외과 등 전문의 외래진료실, 3층은 건강검진 관련 시설, 4층은 중앙공급실, ERCP실, 수술실, 5~8층은 병실, 9층은 임상병리과, 원내약국, 원무/총무과, 10층은 의국과 강당, 11층은 식당 등이 있다.
주요 코어는 북측에 있으며, 병실과 주요 실들은 남향으로 배치되어 자연채광이 최대한 확보되어 있다. 또한, 환자들이 공용으로 이용하는 시설인 샤워실, 탈의실, 휴게실과 유사한 시설을 가운데 배치하여 환자들이 이동하는 동선을 최소화한다. 중앙 양측 두 곳에 배치된 간호사 대기 공간은 전형적인 순환동선 적용하여 병실을 관리하기에 용이하다.
삼일병원은 지리적인 요소로 앞산 순환로에서 중흥로, 전면의 월배로로 진입 시 시각적으로 한 눈에 보이는 곳, 도시의 랜드마크적인 요소로 활용 가능한 곳에 위치하고 있다. 이에 병원의 입면은 고민 끝에 알약을 모티브로 한 반복적인 입면을 활용하여 독창적인 형태를 가진다. 동시에 이 반복된 창들은 모든 공간의 채광, 환기 기능을 높인다.
삼일병원은 단순 치료를 넘어서 심리적인 안정을 줄 수 있는 치유 환경을 갖춘 종합병원이다. 도심지 내 일반적인 종합병원들과 차별화를 위해 기존 병원 프로그램들의 규모보다 확장된 규모, 자연환경의 이점을 극대화하여 일반적인 병원이 아닌 이용자들을 고려한 치유환경이 조성되어 있다. 달서구뿐만 아니라 대구에서 대표하는 지역응급의료기관으로서 상징성도 고려되어, 따뜻한 이미지를 제공할 수 있는 스페인산 복합 패널이 편안한 분위기를 제공한다.




















Architect HYEAN Architecture and Engineering
Location Wolbae-ro, Dalseo-gu, Daegu, Republic of Korea
Program Medical Facilities
Site area 1,973.80㎡
Building area 1,216.73㎡
Gross floor area 12,881.86㎡
Building scope B1, 11F
Building to land ratio 61.64%
Floor area ratio 573.20%
Design period 2019. 1 - 10
Construction period 2020. 3 - 7
Completion 2021. 7
Principal architect / Project architect Woosung Jang
Design team Sangryul Kim, Eunhye Oh, Jongmin Shin
Client (SAMIL HOSPITAL) Jigun Kim
Photographer Yongsu Kim(MasilWIDE)
해당 프로젝트는 건축문화 2021년 11월호(Vol. 486)에 게재되었습니다.
The project was published in the November, 2021 recent projects of the magazine(Vol. 486).
November 2021 : vol. 486
Contents : RECORDS OPEN EXPO 2020 DUBAI, AND KOREA PAVILION 세계에 퍼지는 한국의 친환경 메시지, 그리고 “마당" : NEWS / COMPETITION / BOOKS : SKETCH THE REMARKABLE PLACE IN THE NEIGHBO..
anc.masilwide.com
'Architecture Project > Healthcare' 카테고리의 다른 글
| SMART TRAINING PAVILION (0) | 2022.08.17 |
|---|---|
| IMPRESS MADRID TEENS (0) | 2022.03.21 |
| HWACHANGHAN HOSPITAL (0) | 2021.08.03 |
| EASY N BUILDING (0) | 2021.08.02 |
| Fertility clinic & IVF laboratory (0) | 2021.07.19 |
마실와이드 | 등록번호 : 서울, 아03630 | 등록일자 : 2015년 03월 11일 | 마실와이드 | 발행ㆍ편집인 : 김명규 | 청소년보호책임자 : 최지희 | 발행소 : 서울시 마포구 월드컵로8길 45-8 1층 | 발행일자 : 매일



