
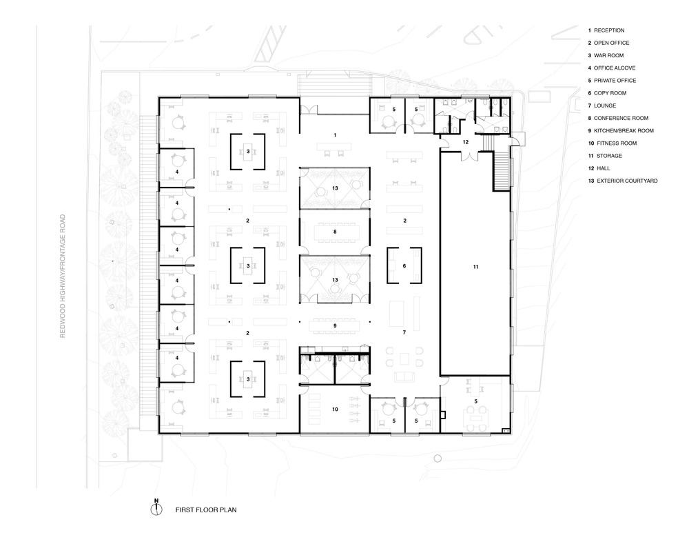
This adaptive reuse project transforms the most banal of commercial box buildings into a light-filled courtyard office space specifically outfitted for a discerning, high-end residential builder with an exclusive clientele.
Architectural design for the building was driven by four main objectives: to embody the client’s enigmatic brand, to embrace the industrial aesthetic, to strategically introduce natural day-lighting through punctures in the envelope, and to execute the project efficiently via a well-detailed, judicious use of materials.
In response to the client’s desire for anonymity, the exterior presents a quietly ambiguous face to the nearby highway. A thin membrane of weathering corrugated steel wraps the exterior in understated boldness and is raised away from the dark stucco base to express its autonomy from the building. Deep window apertures are punctured through this skin and articulated by steel shadow boxes offset by dark black metal panels. The main entry is reoriented from the highway to the parking lot facade to underscore the higher degree of privacy the company requires and provide the confidentiality expected by much of their clientele.
The core of this one-story square box is hollowed out to insert a glass conference room sandwiched between two open-air interior courtyards, and infuse the interior with light. The courtyards and a series of skylights define specific functions of the floor plan through natural daylight. Upon entering, raw materials play off finer details and custom fixtures, and the overall industrial aesthetic is warmed by the color of the exposed, sandblasted wood roof structure and new wood floors.
The glass-walled, open-air courtyards and breakout rooms offer layers of transparency to maintain the feel of the large, open plan while their dark metal framing asserts the perimeters of those spaces with a masculine heft. Staff collaborations and productivity are organized in activity hot spots: each project team “bullpen” is delineated by a desk-height, steel clad partition wall with large skylight overhead, each containing team work stations and an acoustically sound, cork-lined “war room” at its heart.
Relaxing, modern seating areas and a well-equipped kitchen provide for more casual meetings and employee amenities, as well as client comfort. A healthy work environment is fostered by operable windows for natural ventilation and lighting, and the interior’s climate is controlled through radiant heating and low velocity fans.

가장 평범한 상업용 박스형 건물이 독점적인 고객을 보유한 안목 있는 고급 주거용 건축업자를 위해 특별히 채광이 가득한 안뜰이 갖추어진 사무실 공간으로 탈바꿈했다.
건물의 건축 디자인은 고객의 수수께끼 같은 요구사항의 구현, 산업적 미학 수용, 구멍을 통한 전략적인 자연 채광의 도입, 상세하고 신중한 재료 선택과 같이 프로젝트를 효율적으로 실행하는 네 가지 주요 목표에 의해 추진됐다.
익명의 건축주의 요구에 부응하여 인근 고속도로에 조용히 모호한 외관을 제시한다. 내후성 골판지 강철의 얇은 막은 절제된 대담함으로 외부를 감싸고 어두운 치장 벽토 바닥에서 멀리 올려져 건물로부터의 자율성을 표현한다. 이 포면을 통해 깊은 창은 구멍이 뚫려 있고 짙은 검은색 금속 패널로 오프셋 된 강철 섀도 박스로 구분된다. 주 출입구는 회사가 요구하는 더 높은 수준의 개인 정보 보호를 강조하고 많은 고객이 기대하는 기밀성을 제공하기 위해 고속도로에서 주차장 정면으로 방향이 변경됐다.
이 단층 사각형 상자의 핵심은 속을 비워 두 개의 야외 내부 중정 사이에 유리 회의실을 삽입하고 내부에 빛을 불어넣는 것이다. 안뜰과 일련의 채광창은 자연 채광을 통해 평면의 특정 기능을 정의한다. 들어가자마자 원자재가 더 세밀한 디테일과 맞춤형 비품을 선보이며 샌드블라스트 처리된 목재 지붕 구조와 새로운 목재 바닥의 색상으로 전체 미관을 따뜻하게 한다.
유리벽으로 된 야외 안뜰과 소회의실은 투명한 층을 제공하여 크고 개방된 계획의 느낌을 유지하는 반면 어두운 금속 프레임은 남성적인 무게감으로 이러한 공간의 경계를 강조한다. 직원 협업 및 생산성은 활동 중심지에서 조직됩니다. 각 프로젝트 팀 “bullpen”은 책상 높이의 강철 피복 칸막이벽으로 구분되며 머리 위의 큰 채광창에는 팀 워크 스테이션과 음향적으로 코르크 마개가 늘어선 “war room”이 있다.
편안하고 현대적인 좌석 공간과 잘 갖춰진 주방은 보다 캐주얼한 회의와 직원 편의 시설, 고객의 편안함을 제공한다. 자연 환기와 채광이 가능한 개폐 가능한 창으로 건강한 업무 환경을 조성하고, 복사열과 저속 팬으로 실내 온도를 조절한다.











Architects Studio VARA
Interiors Studio VARA
Location Mill Valley, United States
Completion 2014
General contractor Van Acker Construction
Civil engineer CSW / Stuber-Stroeh Engineering Group
Structural engineer GFDS Engineers
Mechanical engineer Axiom Engineers
Electrical engineer Summit engineering
Lighting G2
Photographer Bruce Damonte
'Interior Project > Office' 카테고리의 다른 글
| IMDAD (0) | 2021.11.05 |
|---|---|
| Basix HQ (0) | 2021.11.04 |
| Azure Office (0) | 2021.11.02 |
| KCI Group Headquarters (0) | 2021.10.27 |
| Oficinas Prinzi (0) | 2021.10.21 |
마실와이드 | 등록번호 : 서울, 아03630 | 등록일자 : 2015년 03월 11일 | 마실와이드 | 발행ㆍ편집인 : 김명규 | 청소년보호책임자 : 최지희 | 발행소 : 서울시 마포구 월드컵로8길 45-8 1층 | 발행일자 : 매일



