
The overall tone of the Sandy Beach Bake House, which started with a beach- like motif in the city center, is gray of the city center. On a sunny day, the walls of the city create a golden color and texture like a sandcastle on the beach.
Rather than removing the two ginkgo trees located there for a long time with the building, they added time to revitalize the gray space, giving it a sense of vitality.

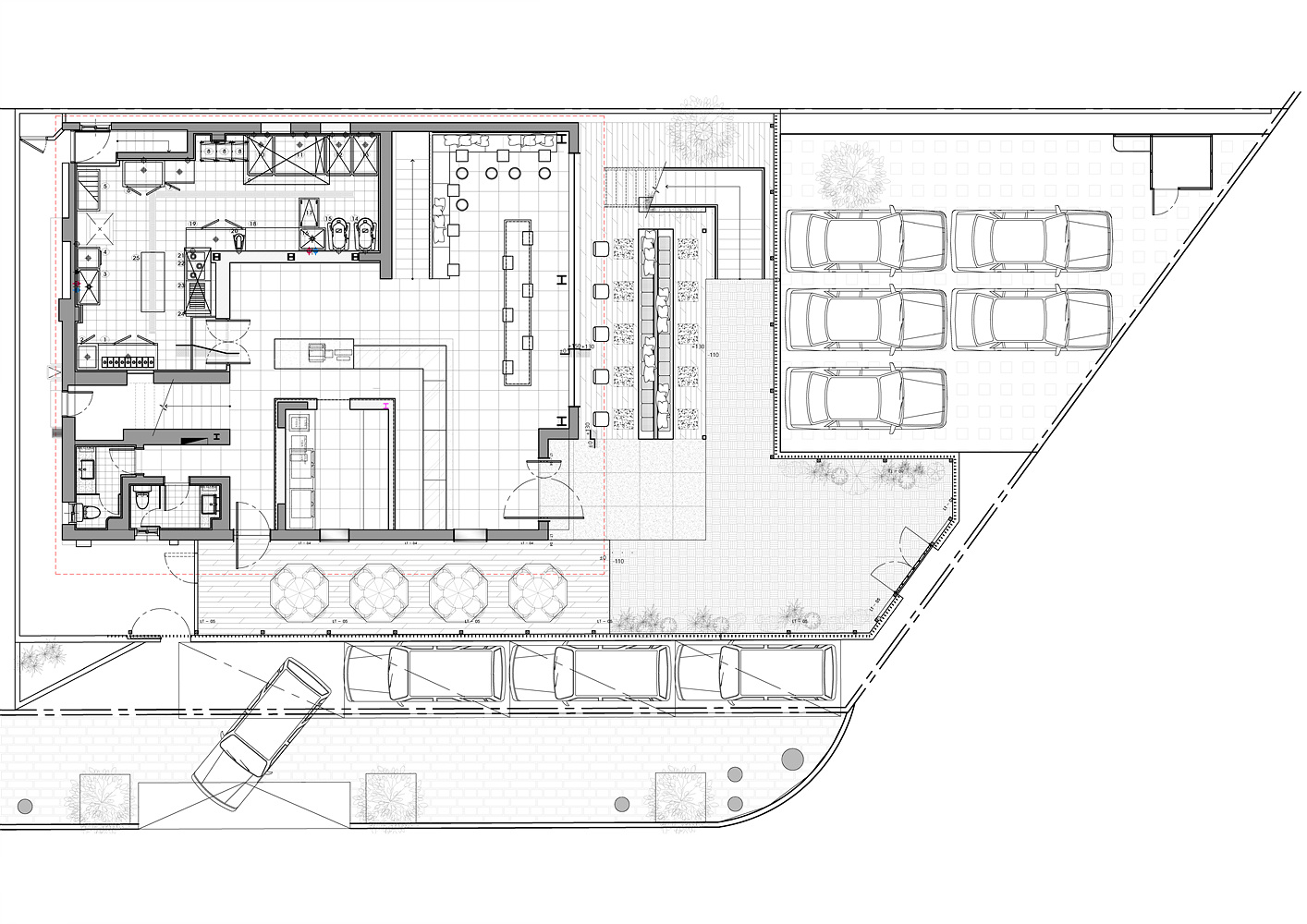
The yard heading to an entrance has used general blocks but has given diversity of patterns and shapes so that it could release an exotic feeling. If you follow the reed into the yard, you will see a cool open outer seat, a loose-shaped earning, and a staircase leading to the second floor. If you sit under the earning with the cool wind and enjoy coffee, you can forget the tension in the city for a while. When you enter the entrance, you will see a wide variety of sandwiches, desserts, and bread worthy of the name of ‘Sandy Beach Bake House’. The metal plate on the wall, which becomes a background of a parade of bread, was intended to remind you of the sunset beach along with the lighting.

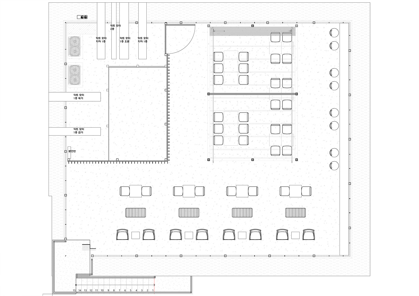
Sitting in a sitting area using felt on the first floor and a built-in chair, coffee and bread eaten in the sunlight reflected in the outside window allow you to relax in the city center. ‘BAKERY LAB’, which will be seen on the first floor along the ongoing bake parade, is a space for the development of new bread and lectures on bakery studios, showing pride in bread at Sandy Beach Bake House. After passing BACKERY LAB, you can feel a new space on both sides. It is a warmer space surrounded by wood textures than ever, and it is a private room with velvet curtain points such as the identity of Sandy Beach Bake House on one side, the sales and exhibition space showing the logo, and the secret beach on the other side.

If you come in alone on the second floor, you will see a more relaxed space. The 2nd floor hall, which has a spacious arrangement of seats, consists of bar-shaped seats, stable wall-mounted seats, photo zones that are in charge of points in space with plants, and leisurely moving seats. The overall tone and materials were reduced to create a subtle atmosphere, and the point logo, frame, and planting were used to induce space to be relaxed without making space excessive. Artworks such as windows and frames are not hard but witty, creating contrast and harmony with space. When you go out to the outer terrace from the second floor, there are flag signs and external seats so that you can visually feel the gentle wind of the beach. Passing through the relaxed space and climbing the rooftop through the stairs, you will see the most beach-like space. Along with bean gravel on the beach's sand-like floor, outside furniture that can be seen on the beach, and a large earning unfolds with the cool sky.

도심속의 해변과 같은 모티브에서 출발한 ‘샌디비치 베이크 하우스’의 전체적인 톤은 도심의 회색이다. 햇살이 좋은날 이 도심의 벽은 해변 모래성과 같은 금색의 색감과 질감을 연출한다. 건물과 함께 오랜시간 그 자리에 위치한 두 은행나무를 없애기보다 시간을 덧입혀 회색공간에 생기를 불어 일으켜 생동감을 준다.

입구로 향하는 마당은 일반적인 블록을 사용하되 패턴과 형태의 다양성을 줘 이색적인 느낌을 주었다. 갈대를 따라 마당으로 들어가면 시원하게 뚫린 형태의 외부 좌석과 느슨한 형태의 어닝, 2층으로 향하는 계단을 맞이한다. 선선한 바람과 함께 어닝 아래 앉아 커피를 즐기자면 도심의 긴장을 잠깐이고 잊을 수 있다. 입구를 들어오면 ‘샌디비치 베이크 하우스’의 이름에 걸맞은 광활하고 다양한 샌드위치, 디저트, 빵이 펼쳐져 있다. 빵의 퍼레이드를 바탕하는 벽면 금속판재는 조명과 아울러 노을이 지는 해변의 모습을 연상시키고자 하였다.

1층의 펠트를 사용한 좌식 공간과 붙박이 의자에 앉아 외부 통창으로 비치는 햇살을 맞으며 먹는 커피와 빵은 도심속 한껏 여유를 즐길수 있게 한다. 계속되는 베이크 퍼레이드를 따라 2층으로 올라가 첫단에 보이는 ‘BAKERY LAB’은 새로운 빵의 개발, 베이커리 스튜디오 강의를 위한 공간으로 샌디비치 베이크 하우스의 빵에 대한 자부심을 보여주는 공간이다. BAKERY LAB을 지나면 양쪽으로 새로운 공간을 느낄수 있다. 여태까지의 공간보다 나무질감이 감싸는 따뜻한공간으로 한쪽은 샌디비치 베이크 하우스의 아이덴티티, 로고를 보여주는 판매 및 전시공간, 한쪽은 넓은 해변안의 시크릿 비치 같은 벨벳커텐 포인트의 프라이빗한 룸이다.

2층 홀로 들어오면 좀 더 여유로운 공간이 펼쳐진다. 좌석의 배치가 넓찍히 여유로운 2층 홀은 외부를 보며 앉을수 있는 바 형태의 좌석, 안정적인 벽면의 붙박이 좌석, 식물과 함께 공간의 포인트를 담당하는 포토존, 여유로운 구성의 이동좌석으로 구성되어있다. 전체적인 톤과 자재를 줄여 은은한 분위기를 만들고 포인트 적인 로고, 액자, 식재를 통해 공간을 과하지 않고 여유롭게끔 유도하려 하였다. 창가, 액자 등의 아트워크는 딱딱하지 않고 위트있는 형태로 공간과의 대비, 조화를 만들었다. 2층에서 외부 테라스로 나가면 해변의 살랑거리는 바람을 시각적으로 느낄수 있게 플래그 간판과 함께 외부 좌석이 자리한다. 여유로운 공간을 지나 루프탑을 계단을 통해 올라가면 가장 해변과 같은 공간이 펼쳐진다. 해변의 모래알과 같은 바닥의 콩자갈과 함께 해변에서 볼법한 외부 가구들, 커다란 어닝이 시원한 하늘과 함께 펼쳐진다.







Studio HED URBAN Studio
Location 372-3 Seogyo-dong, Mapo-gu, Seoul
Use CAFE
Gross floor area 976㎡
Designer Kim Beom-gyu, Kim Hyeon-jung, Jeong Yoo-bin
Construction HED URBAN Studio Seo Jong-seok
Branding CASTANETS Shin Ji-hye, Yoo Hye-young
Main Material Therazo tile, brick, Synthetic deck, Special paint, Stainless steel hairline, plywood
Photographer STUDIO SIM
'Interior Project > Cafe&Restaurant' 카테고리의 다른 글
| Double Slash Coffee Space (0) | 2021.11.22 |
|---|---|
| Tea House in Hutong (0) | 2021.10.29 |
| BARDEM Cocktail Bar (0) | 2021.10.22 |
| Berlin Bar, Moscow (0) | 2021.10.20 |
| A_neukgam (0) | 2021.10.19 |
마실와이드 | 등록번호 : 서울, 아03630 | 등록일자 : 2015년 03월 11일 | 마실와이드 | 발행ㆍ편집인 : 김명규 | 청소년보호책임자 : 최지희 | 발행소 : 서울시 마포구 월드컵로8길 45-8 1층 | 발행일자 : 매일



