
9.81 Park' is an eco-friendly Gravity Racing theme park that allows you to run on a sloping track using gravity acceleration (g=9.81 m/s2) in a self-made engine-free vehicle.
The most heavily focused part when designing ‘Race 981’, the interior space of the smart theme park was to maintain essence of the racing but by introducing smart technology, expressing ‘9.81 Park’s vision to create a new generation of joy to the space aggressively. Innovation, which refers to a gradual or radical change in the technology and service of ‘9.81 Park’, was a design keyword to maximize the meaning of a "new concept theme park" within ‘Race981’, and to realize Liveliness (vitality), an element that can continuously stimulate the will to challenge and maximize the emotion and interest in racing. In addition to technological innovation, we emphasized the nature of the theme park that provides a play experience that can induce voluntary participation of customers and planned a design that strengthened the experience based on the experience process in all spaces.

BASE
A semi-circular curved glass wall is installed in the entrance hall (BASE), where the ticket issuing kiosk table of a large radial circular band serves as the center of the space, allowing the park to be seen as a comprehensive control room that intensively shows the entire system.
With the motif of a dedicated track, the 75m large lighting object connects all spaces into one and allows you to experience the speed before boarding a racing vehicle, and effectively expresses the identity of the park, which is always moving actively by applying 5 lines RGB moving lighting. The spacious corridor is designed to maximize the dramatic tension that raises expectations for boarding instead of the psychological anxiety that customers can feel in a huge and unfamiliar space by using simple structures, repetitive forms, and unified colored finishes.

Central
Inside the central, the curved shaped stairway chair which gets expanded gradually has arranged by using 9.81 park’s brand color actively. Opened in all directions along with a high floor height of 11m, this space is expressed as an open space that can provide comfortable rest for customers waiting for entry before boarding while providing new inspiration.
The check-in gate, which taps the wearable for racing, is designed with the concept of transitioning from daily life to fun space to give a feeling that transcends time and space. As soon as passing through the check-in gate, the open space realized an overscale box that seemed to be sucked in using strong reflective materials, and a three-dimensional space was created by turning the walls inside the box at various angles using color pattern lighting and contrasting colors. In addition, the straight, diagonal ceiling design was planned for the purpose of guiding direct guidance

PADDOCK(2F floor)
PADDOCK on the second floor is a master-only lounge with simulation rest areas equipped with dedicated seats applied to actual racing vehicles so that the tension felt just before boarding can be indirectly transmitted to master customers who enjoy faster speeds. On the ceiling, a line lighting structure reminiscent of a track was installed to express speed, and a media device was installed to allow master customers to view ranking and memory data on records individually to create a differentiated space within "Race981" for VIP customers.

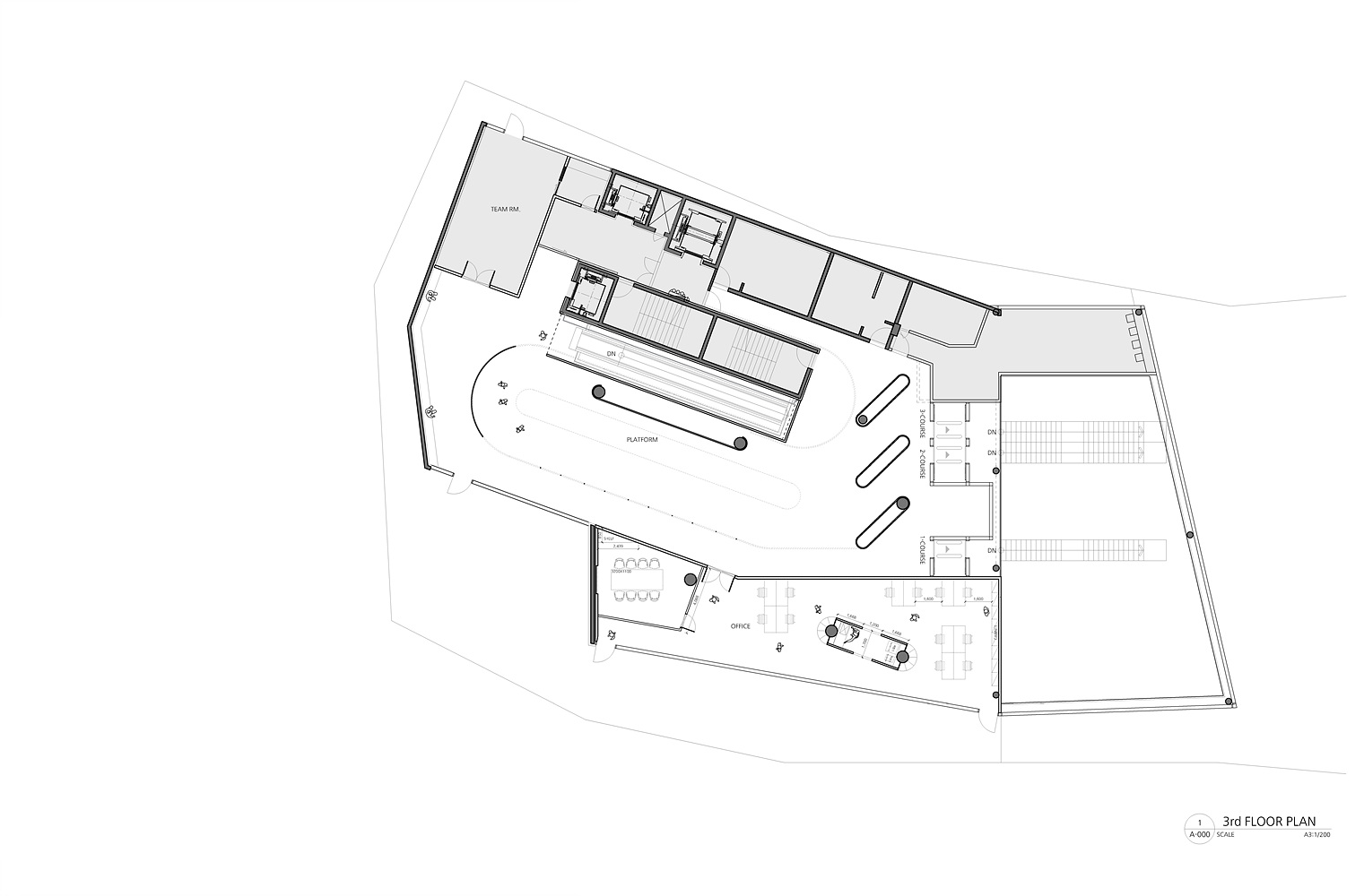
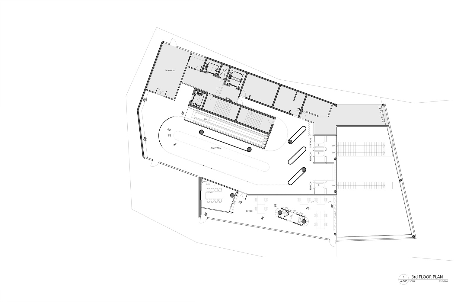
PLATFORM(3F floor)
The third floor is a space where all customers experience, and a structural form that separates three courses and a device that allows a large number of people to watch safety education videos at the same time was essential. The shape of the structure was inspired by the brand pattern and the pipe used in the vehicle, and the capsule shape was produced as a motif, and the brand color was designated for each course so that customers could easily recognize it. The space efficiency was maximized by installing a beam projector that can be projected as a single focus on a large capsule-shaped translucent glass wall surrounding a circular column that is structured inside the indoor space. The form of barisol lighting applied to the space and the streamlined band structure are symbolic elements of the 9.81 Park identity to express infinite scalability.

‘9.81 파크’는 자체제작한 엔진이 없는 차량, GR을 타고 중력 가속도(g=9.81m/s2)를 이용해 경사진 트랙을 달릴 수 있는 친환경 그래비티 레이싱(Gravitiy Racing) 테마파크이다.
이 스마트 테마 파크의 내부 공간 ‘Race 981’을 디자인 하면서 가장 중점을 둔 부분은, 그래비티 레이싱의 본질은 유지 하되, 스마트한 기술을 도입하여 즐거움의 새로운 시대를 만들고자 하는 ‘9.81 파크’의 비젼을 공간에 적극적으로 표현 하는 것 이였다. ‘9.81파크’의 기술과 서비스에서의 점진적인 혹은 급진적인 변화를 일컫는 Innovation(혁신)이란 디자인 키워드로 ‘새로운 개념의 테마 파크’라는 의미를 ‘Race981’ 안에서 극대화 하고자 하였으며, 지속적으로 도전의지를 자극하여 레이싱에 대한 감성과 흥미를 극대화 시킬 수 있는 요소인 Liveliness (생동감)을 공간에 구현하고자 했다. 기술적 혁신 뿐만 아니라 고객의 자발적인 참여를 유도할 수 있는 놀이 경험을 제공하는 테마 파크의 본질을 강조하고 모든 공간에서 체험 프로세스를 기반으로 경험을 강화 시킨 디자인을 계획하였다.

BASE
방사형으로 된 커다란 원형 밴드의 티켓발권 키오스크 테이블이 공간의 중심역할을 하는 BASE(입구 홀)에는 반원형 곡면 유리벽을 설치하여 파크의 전체 시스템을 집약적으로 보여주는 종합관제실이 다 보여질 수 있게 하였다.
전용 트랙을 모티브로 한 75m의 대형 라이팅 오브제는 모든 공간을 하나로 연결하며 레이싱 차량에 탑승전 속도감을 눈으로 경험할 수 있게 하였으며 5개라인의 RGB 무빙라이팅을 적용하여 언제나 생동감있게 움직이고 있는 파크의 아이덴티티를 효과적으로 표현하였다. 넓은 복도는 단순한 구조와 반복적인 형태, 통일된 컬러의 마감재를 사용하여 고객들로 하여금 거대하고 생소한 공간에서 느낄 수 있는 심리적인 불안함 대신 탑승에 대한 기대를 북돋우는 극적인 긴장감으로 극대화될 수 있도록 계획하였다.

Central
센트럴 내부는 9.81파크의 브랜드 컬러를 적극적으로 활용하여 점진적으로 확장되는 곡선형태의 계단식 의자를 배치하였다. 11m의 높은 층고와 더불어 사방으로 열려있는 이 공간은 탑승 전 입장을 대기하는 고객들에게 편안한 휴식을 제공함과 동시에 새로운 영감을 줄 수 있는 개방감 있는 공간으로 표현하였다.
레이싱을 하기 위해 웨어러블을 탭핑하는 체크인 게이트는 시공간을 초월하는 느낌을 주고자 일상에서 재밌는 공간으로 전이되는 컨셉으로 설계 되었다. 체크인 게이트를 지나자 마자 펼쳐지는 공간은 강력한 반사 소재를 사용하여 빨려 들어갈 것 같은 오버스케일의 박스를 구현하였고, 컬러 패턴 라이팅과 대비가 강한 컬러를 사용하여 박스 내부의 벽면을 다양한 각도로 방향을 틀어가며 입체적인 공간감을 만들어 내었다. 또한 곧게 뻗은 사선방향의 천정디자인은 직접적인 유도동선을 안내하기 위한 목적으로 계획하였다.

PADDOCK(2층)
2층 PADDOCK은 마스터 전용라운지로 더 빠른 속도감을 즐기는 마스터 고객들을 위하여 탑승 직전에 느끼는 긴장감이 간접적으로 전달될 수 있도록 실제 레이싱 차량에 적용된 전용 시트가 설치된 시뮬레이션 휴게공간을 구성하였다. 천정에는 트랙을 연상시키는 형태의 라인 라이팅 구조물을 설치하여 속도감을 표현하고, 마스터 고객이 개인별로 기록에 대한 랭킹 및 메모리얼 데이터를 볼 수 있는 미디어 장치를 설치하여 VIP 고객들을 위한 ‘Race981’ 안의 차별화 된 공간을 만들고자 했다.

PLATFORM(3층)
3층 은 모든 고객들이 체험하게 되는 공간으로 3가지 코스를 구분하는 구조적인 형태와 함께 다수의 인원이 동시에 안전교육영상을 시청할 수 있는 장치가 필수적으로 요구되었다. 구조물의 형태는 브랜드 패턴 및 차량에 사용된 파이프에서 영감을 받아 캡슐형태를 모티브로 제작하였고, 코스별로 브랜드 컬러를 지정하여 고객들이 쉽게 인지할 수 있도록 하였다. 실내공간 내부에 구조가 되는 원형기둥을 둘러싼 대형 캡슐형태의 반투명유리벽에는 단초점으로 투사할 수 있는 빔프로젝터를 설치하여 공간 효율을 극대화 하였다. 공간에 적용된 바리솔 조명의 형태와 유선형의 밴드구조물은 무한한 확장성을 표현하고자 하는 9.81파크의 아이덴티티를 상징적으로 구현한 요소이다.





Studio COLLECTIVE B
Location 880-24, Cheondeok-ro, Aewol-eup, Jeju-si, Jeju Special Self-Governing Province
Use SELEC SHOP
Total ground area 12,992.38㎡
Brand design team Choi Minjeong
Space design team Lee Yoonjin
Creative director Jeong Yeonjin, Yoon Jinyoung
Material Exposed concrete, Special paint, Color epoxy
Objet SUS H/L, SUSH/L BLUE, SUSH/L BLACK, BENDING PIPE, Color paint, Satin glass
Construction DAWON ID&C
Client Monolith
Photographer Young Kim_Indipos
'Interior Project > Exhibition' 카테고리의 다른 글
| KennaXu Gallery (0) | 2022.02.08 |
|---|---|
| Shenzhen Prince Plaza Exhibition Center Design (0) | 2022.01.26 |
| HUAYI SPACE SHOWROOM (0) | 2020.03.02 |
| LAUGHING MATTERS : THE STATE OF A NATION (0) | 2020.02.14 |
| “Gem, Dream, Style” Exhibition (0) | 2020.02.05 |
마실와이드 | 등록번호 : 서울, 아03630 | 등록일자 : 2015년 03월 11일 | 마실와이드 | 발행ㆍ편집인 : 김명규 | 청소년보호책임자 : 최지희 | 발행소 : 서울시 마포구 월드컵로8길 45-8 1층 | 발행일자 : 매일



