
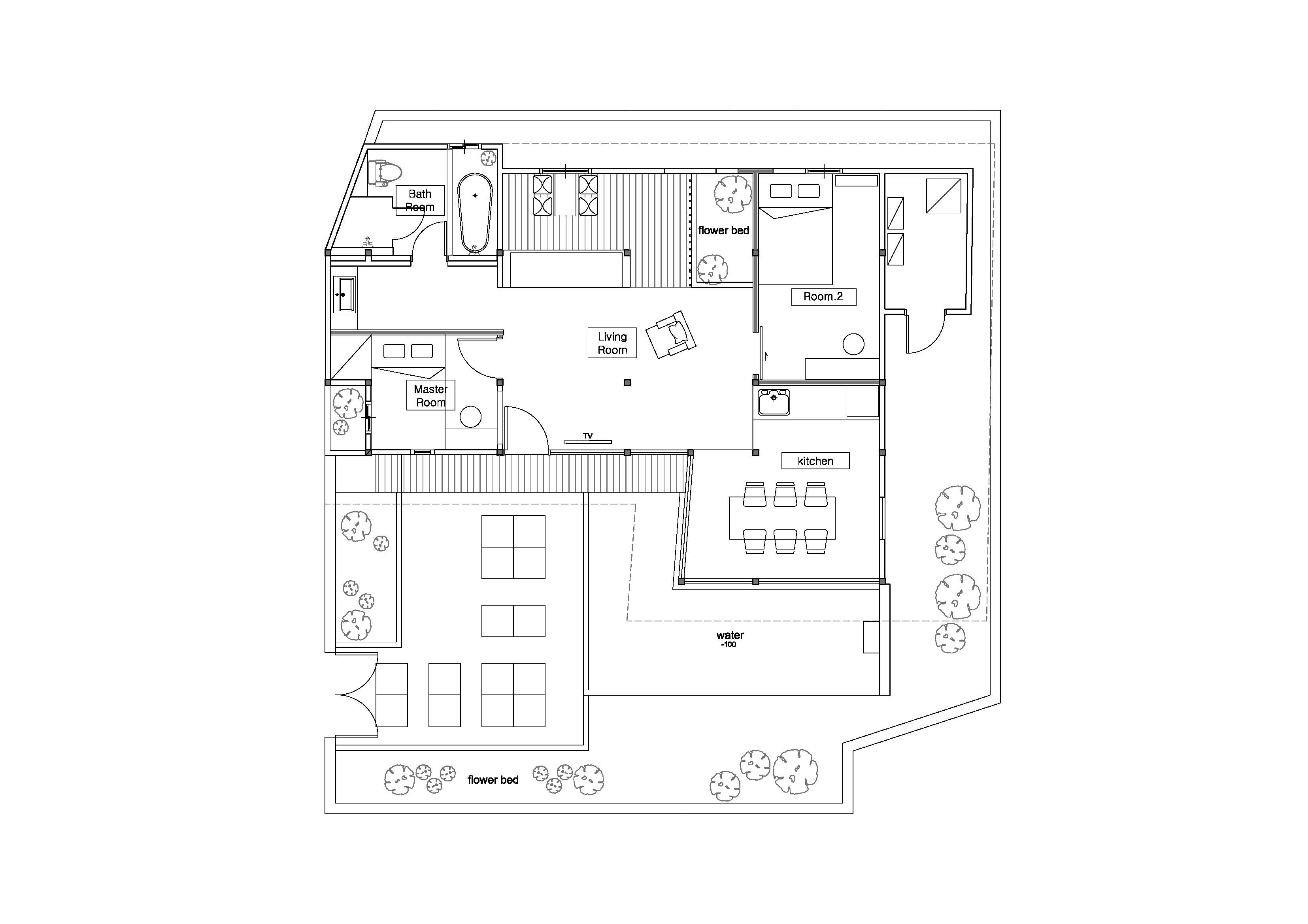
The renovation project of Mooryeob was carried out by removing one by one the parts that had been added to the old hanok without a plan, revitalizing the existing beautiful hanok base area and reinforcing the functional parts. Overall, a dark brown color was used with white and gray porcelain tiles for a neat yet grave and luxurious feeling. Generally, hanok hotels and guesthouses tend to use one room, but Mooryeob’s merit is that the entire hanok can be used as a premium hanok hotel style. The lower part of the pillars in the middle of the living room was covered with granite to give it a slightly weighty and luxurious feel.

The living room also has a low wooden bench as well as an interior garden. Although the standing lifestyle is the basic, there is a low wooden bench where one can experience a sitting lifestyle of a hanok. The indoor garden that continues from the outside yard breathes life into the neat space. Next is the kitchen interior. The kitchen is the main point in the Mooryeob project. The part that protrudes from the L-shaped structure is the kitchen, and it was finished with glass for transparency and openness. The lower part of the exterior was made as a water space. Here, the feeling of the kitchen seeming as if it is floating on water, and the kitchen reflected in the water. Inside the kitchen, a dark-colored table and sink were made to maintain the luxurious atmosphere. Since the dining room has two of its sides made of glass, one can enjoy food or a cup of tea while admiring the scenery outside. The low wooden bench at the back of the living room is a space where the traditional sitting lifestyle can be experienced, and the hanok can be experienced while looking at the red clay wall through the small window.

‘Mooryeob’ has a total of two rooms. Both were made with sliding doors to secure space, and when one lies down under the rafters, they can feel as if they are living in a day from 50 years ago. In the first room, a circular window was placed so that the small space doesn't seem stifling. The second room is a relatively spacious room, and a powder room where one can briefly freshen up was provided. Next is the bathroom. One can enjoy relaxing in the bathtube while looking at the red clay wall. Next is the exterior. We aimed to recreate the hanok's appearance from 50 years ago, and the yard was made to able to feel a feeling of luxury and the beauty of moderation with the pine trees and water space. With Hanok stay Mooryeob, we wanted to show a hanok stay that has a luxury and deep lines, rather than an adorable appearance. The premium hanok stay is shown from the exterior wall and front gate, and the fixed stepping stones, pine trees and reflective water space that can be seen when opening the gate enhance the luxury. What would the atmosphere be like at night when the lights are on? The exterior's atmosphere is truly beautiful. The appearance of Mooryeob at night in the hanok village, where the splendid lights of tbe city are absent, is indeed gorgeous. The perfect black and the reflecting lights present a magnificent sight. The various beauties of Mooryeob can be felt depending on the season and the weather.

When the weather is warm, we think that the wooden porch will become a time traveling space where one can sit on and take some time to look back on the past or cool their head. What would the interior be like at night? The subtle and warm lights brighten up the interior. In the dining space at night, the light is reflected on the glass and the atmosphere reflected in the water space creates a truly elegant space. That was the interior of Jeonju Hanok stay Mooryeob. Mooryeob, which aims to be a premium hanok stay overall. We wanted to propose a hanok stay where the entire hanok building can be used, while maintaining the quality of the hotel. In particular, it was a project where we gave a lot of thought for when 4 or more visitors use the hanok, rather than 1~2 people.

무렵의 리노베이션 프로젝트는 오래된 한옥에 계획 없이 덧붙여 있던 부분들을 하나하나 지워나가 기존의 아름다운 한옥 베이스 부분을 살려내고 기능적인 부분들을 보강하며 진행했습니다. 전체적으로 짙은 브라운 컬러와 화이트 그리고 그레이 컬러의 포세린 타일을 활용하여 깔끔하면서도 무게감 있고 고급스러움을 주었습니다. 보통의 한옥 호텔이나 게스트하우스들은 방 한 칸을 사용하기 마련이지만 무렵 같은 경우 한옥 전체를 프리미엄 한옥 호텔 스타일로 사용할 수 있는 장점이 있습니다. 거실의 중간중간 기둥의 하단부에는 화강석으로 둘러 조금 더 묵직하고 고급스러움을 느낄 수 있도록 하였습니다.

또한 거실에는 평상과 실내 정원이 있습니다. 입식 생활이 기본이지만, 한옥의 좌식문화를 체험할 수 있는 평상이 있습니다. 외부 마당에서 이어지는 실내정원은 정갈한 공간에 활기를 불어 넣어줍니다. 다음은 주방 인테리어입니다.무렵 프로젝트에서 주방은 메인 포인트입니다. 외부에서 봤을 때 ㄱ자 구조에서 튀어나온 부분이 바로 주방인데, 투명성과 개방감을 위해 유리로 마감하였고, 외부의 하단부에는 수공간으로 물 위에 떠있는 느낌, 그리고 물에 반사되는 주방이 포인트입니다.주방 내부는 진한 컬러의 테이블과 싱크를 제작하여 고급스러운 분위기를 이어갔습니다. 다이닝 공간에서는 2면이 유리로 되어있어 밖의 경치를 보며 음식 또는 차를 즐길 수 있습니다. 거실의 뒷편에 있는 평상은 전통적인 좌식생활을 경험할 수 있는 공간이며, 자그마한 창을 통해 황토 담장을 보며 한옥을 경험할 수 있습니다.

무렵은 방이 총 2개가 있습니다. 공간 확보를 위해 모두 슬라이딩 도어로 하였으며, 서까래 아래 누워있으면 50년 전의 어느 날이 느껴집니다. 첫 번째 방은 원형 창을 내어 작은 공간이지만 답답하지 않도록 하였습니다. 두 번째 방은 비교적 넓은 방이며, 간단히 단정할 수 있는 파우더 공간을 제공하였습니다. 다음은 화장실입니다. 황토 담장을 보며, 욕조에 몸을 담가 여유를 즐길 수 있습니다. 다음은 외관입니다. 50년 전의 모습을 그대로 살려내고 싶었으며, 마당에는 소나무와 수공간으로 고급스럽고 절제 미를 느낄 수 있도록 하였습니다. 한옥스테이 무렵은 아기자기한 모습보다는 고급스러움과 선이 깊은 한옥스테이를 보여드리고 싶었습니다. 외부의 담장과 대문에서부터 프리미엄 한옥스테이를 보여주고 있으며, 대문을 열고 들어서면 보이는 정형 디딤석관 소나무 그리고 반사되는 수공간이 고급스러움을 한껏 올려주고 있습니다. 조명이 있는 야간에는 어떤 분위기일까요? 외부에서 느껴지는 분위기는 정말 아름답습니다. 도시의 화려한 불빛들이 없는 한옥마을의 밤에 무렵의 외관은 정말 아름답습니다. 완벽한 검은색과 반사되는 빛들이 장관을 이룹니다. 계절에 따라 그리고 날씨에 따라 무렵의 여러 가지 아름다움을 느낄 수 있습니다.

날이 풀리면 툇마루에 걸터 앉아 과거를 되돌아볼 수 있는 시간, 잠시나마 머리를 식힐 수 있는 그런 시간을 가질 수 있는 시간 여행의 공간이 될 것 같습니다. 야간 실내는 어떨까요? 은은하고 따뜻한 조명들이 실내를 밝혀줍니다. 야간의 다이닝 공간에서는 빛이 유리에 반사되고, 수공간에 반사되는 분위기는 정말 운치 있는 공간이 됩니다. 이상 전주 한옥스테이 무렵의 인테리어였습니다. 전체적으로 프리미엄 한옥스테이를 지향하고 있는 무렵. 호텔의 퀄리티를 유지하면서 한옥 독채를 사용할 수 있는 한옥스테이를 제안하고 싶었습니다. 특히 1~2인의 사용이 아닌 4인 이상의 방문객들이 사용을 할 때에 대한 고민을 많이 했던 프로젝트입니다.













Studio twoply
Location Wansan-gu, Jeonju-si, Jeollabuk-do, Republic of Korea
Site area 150m2
Gross floor area 67m2
Building scope 1F
Design period 2019. 10 - 2019. 11
Construction period 2019. 11 - 2020. 3
Completion 2020. 3
Project Director Byeonghui Jang, Myeonghun Kim, Donghyeok Choi
Designer Munhui Gang
Photographer Hyeokgyun Lim
'Interior Project > Hospitality' 카테고리의 다른 글
| Xiangyu xiangyuan Home Stay (0) | 2022.02.04 |
|---|---|
| SONOFELICE DEL PINO (0) | 2022.01.03 |
| THREE STORIES NORTH (0) | 2020.10.12 |
| MUSIC GUESTHOUSE IKUHA (0) | 2020.07.22 |
| CANOPY BY HILTON IN CHENGDU (0) | 2019.12.17 |
마실와이드 | 등록번호 : 서울, 아03630 | 등록일자 : 2015년 03월 11일 | 마실와이드 | 발행ㆍ편집인 : 김명규 | 청소년보호책임자 : 최지희 | 발행소 : 서울시 마포구 월드컵로8길 45-8 1층 | 발행일자 : 매일



