
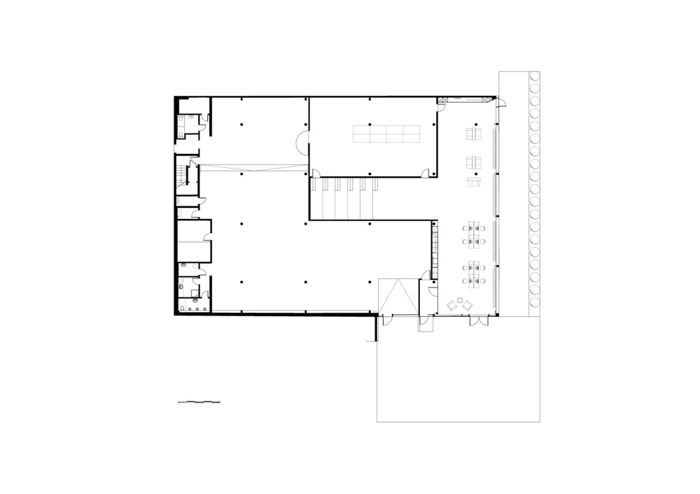
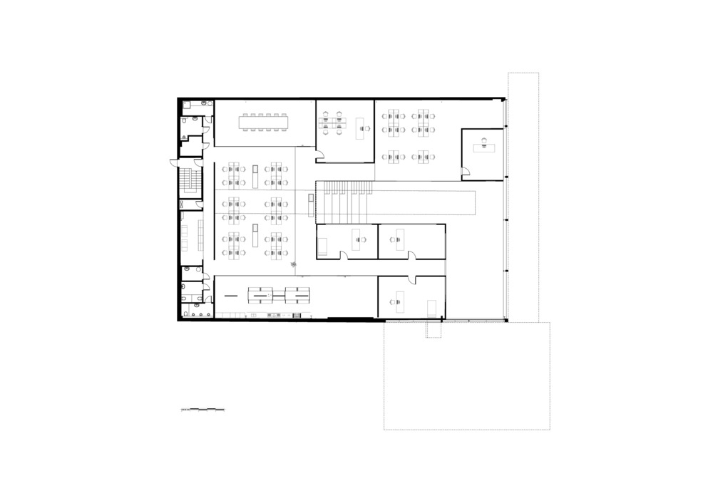
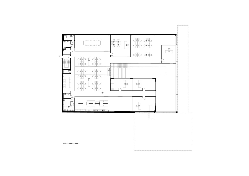
A neglected exhibition hall in Luxembourg, originally built as a warehouse, has been transformed by Metaform architects to create a light-filled, collaborative office space. Metaform architects renovated the former warehouse in Steinsel to create the new headquarters of DSL, a company specialised in IT solutions. “The main emphasis of the project was to bring in more natural daylight, creating an efficient, clean and bright office space where people and communication take center stage.” explains Shahram Agaajani, founder of Metaform architects. The concept aimed to adapt the warehouse whilst preserving a flavour of certain key characteristics of the original building.

As you enter the space you are welcomed by a bright, double-height reception area. Light filters through from the large bay windows and from the skylights set into the steel roof. The overhaul included entirely gutting and renovating the feature skylights.

Inside, a central statement staircase made from oak doubles as a common area. This creates a mix of semi-private, informal work and social areas maintaining an open-plan layout. Metaform architects chose a simple material palette including pure white walls, grey steel beams but also oak floor paneling and detailing in contrast with the original characteristics of the warehouse.

To finish the space, offices and meeting rooms are decorated with some large plants to help create a calming work environment. Through the introduction of light, the architects sought to foster a positive and welcoming working environment. The choice of furniture also inspires a “homely” atmosphere. The building contains 1.950 square meters of office space, which includes a reception area, a staff kitchen, meeting rooms, open-plan offices, exhibition space, an outdoor terrace area and ample storage space.

원래 창고로 지어졌던 룩셈부르크의 한 방치된 전시실은 메타폼 아키텍츠에 의해 빛으로 가득 찬 협업 사무실 공간을 위해 개조됐다. 메타폼 아키텍츠는 IT 설루션 특화 기업인 DSL의 새로운 본사를 창조하기 위해 쓰땅쎌(Steinsel)에 있는 기존의 창고를 개조했다. 프로젝트의 주안점은 더욱 많은 자연 채광을 들여오고, 사람과 소통이 중심이 되는 효율적이며 깨끗하고 밝은 사무 공간을 창조하는 것이다. 이 개념은 창고를 개조하는 동시에 기존 건축물의 주요 특성을 보존하는 것을 목표로 한다.

공간에 들어서면 밝고 높은 리셉션 공간을 맞이할 수 있다. 대형 퇴창과 강철 지붕에 설치된 채광창을 통해 빛이 필터링된다. 빛은 거대한 퇴창과 철재 지붕에 배치된 천창을 통해 내려온다. 개보수 작업에는 전면적으로 내부를 제거하고 특색 있는 천창을 개조하는 작업이 포함됐다.

내부의 참나무로 만들어진 중앙 계단이 공용 공간 역할을 한다. 이는 개방형 레이아웃을 유지하는 반 개방적인 공간과 프라이빗한 공간 및 사회적 영역의 조화를 만든다. 메타폼 아키텍츠는 창고의 원래 특성과 대조적으로 순수한 흰색 벽, 회색 강철 빔뿐만 아니라 참나무 바닥재와 디테일을 포함한 단순한 재료를 선택했다.

이 공간을 완성하기 위해 사무실과 회의실은 조용한 작업 환경을 조성하는 데 도움이 되는 몇 개의 큰 식물로 장식되어 있다. 빛의 도입을 통해 건축가들은 긍정적이고 환대하는 업무 환경을 조성하고자 했다. 가구의 선택은 또한 "집 같은" 분위기를 고무시킨다. 리셉션 공간, 직원 주방, 회의실, 탁 트인 사무실, 전시공간, 야외 테라스와 넉넉한 수납공간 등 총 1.950㎡ 규모의 오피스 공간을 갖추고 있다.



Architects Metaform architects
Location Steinsel, Luxembourg
Program Office
Building area 1,950㎥
Completion 2020
Client DSL
Photography Steve Troes Fotodesign
'Interior Project > Office' 카테고리의 다른 글
| Effective Communication Offices (0) | 2021.07.16 |
|---|---|
| The Core - CBRE's Dutch headquarters in Amsterdam (0) | 2021.07.14 |
| Sodexo Montreal (0) | 2021.07.05 |
| Qin Group Chengdu Office (0) | 2021.06.28 |
| ESRAWE STUDIO NEW LOCATION (0) | 2020.07.06 |
마실와이드 | 등록번호 : 서울, 아03630 | 등록일자 : 2015년 03월 11일 | 마실와이드 | 발행ㆍ편집인 : 김명규 | 청소년보호책임자 : 최지희 | 발행소 : 서울시 마포구 월드컵로8길 45-8 1층 | 발행일자 : 매일



