
Sò Studio creates the space in the hope of conveying a sense of tranquility and comfort, drastically different from the bustling and dazzling city chores. The interior design is not only focused on the Chinese traditional structure details but also pay attention to the big picture of the beauty aesthetic. Coheres the ambiance with oriental design basics to an appropriate scale, integrating geometry ratio.

Lunar is a Modern Chinese restaurant situated inside a standalone villa at the heart of Shanghai on West Jianguo Road, which is running by opposite group and chef Johnston Teo. Termed Modern Chinese, the cuisine at Lunar is to celebrate the quintessential way of Chinese dining. The namesake pays homage to the Chinese lunar calendar. Resonating with the lunar customs is essential to the ethos of dining experience design. Embracing the seasonality and terroir is at its core.

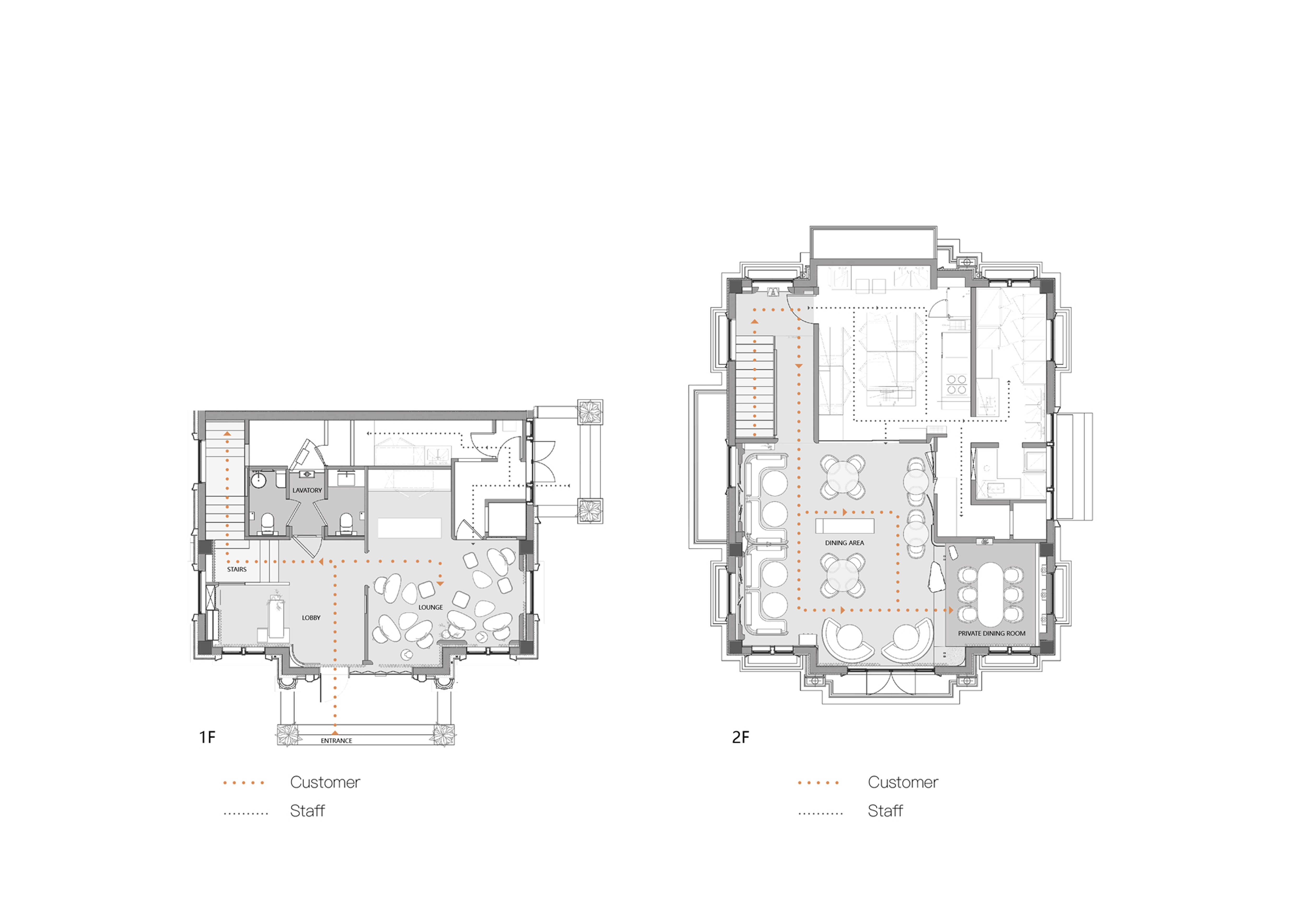
The tea stall is located on the first floor. The soft lighting showered over the shoulder, conveying a sense of comfort, combines with the scent of tea brick and bamboo curtain immerses one in a moonlight night the moment of stepping in.

Ascending along the stairs, the passing pebble-paved trail would land one on the second floor of Lunar. A unique hanging cornice, made possible by the outlining curves of classical Jiangnan garden fusing into the architectural structure of the space, guides the way connecting to the dining area and private dining room.

The mural hand painting renders orange fluorescence like moonlight shadow, echoing the shooting tea stall on the first floor. Collaborating with the florist and designer Maggie Mao to add an orange haze to the space, the small and delicate decoration adds a touch of Zen in the simplicity. The most important material in the whole space is matte surface. Without excessive reflection, conveying calm and beauty through the texture and touch.

Sò Studio는 번잡하고 눈부신 도시와는 완전히 다른 평온함과 편안함을 전달하고자 공간을 만든다. 인테리어 디자인은 중국 전통 구조의 디테일뿐만 아니라 아름다움의 미학에 주목한다. 기하학 비율을 통합하여 적절한 규모로 동양 디자인의 기본과 분위기를 적절히 조화시킨다.

루나(Lunar)는 중국 상하이 서부 중심부의 지앙궈(Jianguo)에 있는 독립형 빌라 안에 위치한 모던 차이니즈 레스토랑이다. 현대 중국어로 루나(Lunar)는 중국의 전형적인 식사 방식을 기념하는 것이다. 이 이름은 중국의 음력에 경의를 표하는 것에서 유래했다. 음력 풍습에 공감하는 것은 이곳의 식사 경험의 정신에 필수적이다. 계절성과 포도주의 독특한 향미를 포용하는 것이 이곳의 핵심이다.


찻집은 지상 1층에 위치한다. 어깨너머로 은은한 조명이 편안함을 전달하며 차(茶)로 만들어진 벽돌과 대나무 커튼의 향기가 어우러져 달빛이 스며드는 밤의 느낌을 준다.

계단을 따라 올라가 자갈로 장식된 오솔길을 지나면 루나 레스토랑의 2층에 도착한다. 공간의 건축 구조에 녹아드는 고전적인 지앙난(Jiangnan) 정원의 곡선으로 만들어진 독특한 모서리가 식사 공간과 프라이빗한 식사 공간으로 연결되는 길을 안내한다.

벽의 그림은 달빛의 그림자처럼 주황색 빛을 띠며, 1층의 찻집 공간을 떠올리게 한다. 플로리스트이자 디자이너인 메기 마오(Maggie Mao)와 협력하여 공간에 주황색 빛의 작고 섬세한 장식은 단순함에 선종(선불교)의 느낌을 더한다.

전체 공간에서 가장 중요한 재료는 무광택의 표면이다. 과도한 반사 없이 질감과 촉감을 통해 차분함과 아름다움을 전한다.


Architects Sò Studio
Location Shanghai, China
Program Restaurant
Gross floor area 260㎡
Completion 2020
Design director Yifan Wu, Mengjie Liu
Space designer Hongchen Lin, Alex Zeng, Nectarine Yi
Furniture MATZform
Lighting Herman Miller
Florist Maggie Mao
Client Opposite Group
Photographer Wen Studio
'Interior Project > Cafe&Restaurant' 카테고리의 다른 글
| Layer10 (0) | 2021.07.20 |
|---|---|
| Maido Sushi Restaurant (0) | 2021.07.09 |
| GONGBECH - UNTOUCHABLE HEART (0) | 2021.06.30 |
| orrrn (0) | 2021.06.23 |
| ROLY-POLY COTTO (0) | 2021.02.19 |
마실와이드 | 등록번호 : 서울, 아03630 | 등록일자 : 2015년 03월 11일 | 마실와이드 | 발행ㆍ편집인 : 김명규 | 청소년보호책임자 : 최지희 | 발행소 : 서울시 마포구 월드컵로8길 45-8 1층 | 발행일자 : 매일



