
The Charles Library at Temple University has opened. Sited at the intersection of two major pedestrian pathways and at the nexus of Temple’s Main Campus, the project anchors a new social and academic heart for the university’s diverse student. Within its dynamic urban context reinterprets the traditional typology of the research library as a repository for books, integrating the building with a diversity of collaborative and social learning spaces.

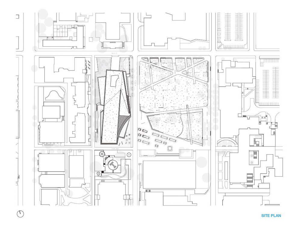
The site strategy captures this public-facing role is not only inviting people in but also providing space for outdoor classrooms and informal gatherings. The soaring arches entries and expansive plazas extend an unusual geometry expresses a distinct identity. The lobby’s domed atrium offers views to every corner of the building, serving as a wayfinding anchor and placing the user at the center of the library’s activity. An oculus carved allows light to pour into the lobby from the uppermost floor, connecting the terminus of the library back to its beginning.

At the base of the main stair, the one-stop service desk provides the first interface between library staff and students stored primarily in the high-density automated storage and retrieval system(ASRS). By drastically reducing the space required for book storage while also expanding access to the Library’s collection, the BookBot enables increased space for collaborative learning, academic resources, and individual study space. Anchoring the second and third floors are the Student Success Center, which offers writing and tutoring support. In welcoming students from all departments, and offering access to cutting edge technology and a variety of study spaces into a centralized location on campus.

While the library offers a uniquely diverse space program tailored to the emerging needs of contemporary students, it also offers the focused research experience of traditional academic libraries. Balancing the north and south ends of the fourth floor are two expansive reading rooms. Furthermore, glazed on all four sides with glass offers an unexpected retreat that feels embedded in nature. The roof gardens provide and a calming visual foreground to the views of the campus and city beyond from the interior of the library. The building’s the green roof is one of the largest in Pennsylvania and also plays a key role in the site’s stormwater management system.

Charles Library embraces the needs of contemporary students and evolving models of learning. As a world-class facility for Philadelphia’s only public university, the project marks a transformative moment not only for the Temple University but also for the city, and for academic libraries around the world.

*솟아오른 아치형 입구를 가진 대학과 지역을 위한 학문적 탐구의 중심지, 템플대학교의 찰스 도서관 *
템플대학교의 새로운 도서관은 39,000명이 넘는 학생들을 위한 새로운 사회적, 학문적 중심에 자리 잡았다. 학생들이 주로 다니는 두 보행로 사이에 있는 찰스 도서관은 북부 필라델피아의 역동적인 도시적 맥락 안에서 도서관이 가지고 있는 전통적 의미를 해석한 ‘책 보관소’이자 다양한 협업적, 사회적 학습 공간으로 통합된다. 찰스 도서관은 학생들과 교수진, 그리고 지역 사회에 공평한 학습 경험을 제공하고자 하는 템플대학교의 진보적인 사명을 뒷받침하는 공간인 것이다.

대지 전략은 도서관 입구까지 경사가 넓은 광장으로 사람들을 초대할 뿐만 아니라 야외 교실과 비공식 모임을 위한 공간을 제공함으로써 이러한 공공을 향한 역할을 포착한다. 확장된 유리 면은 세 개의 주요 입구에서 최대한의 투명성을 만든다. 솟아오른 아치형 입구와 넓은 광장의 특이한 기하학적 구조는 찰스 도서관만의 정체성을 분명하게 드러낸다. 로비의 돔형 아트리움은 건물 구석구석을 조망할 수 있어 도서관 활동의 중심이 된다. 삼나무로 장식된 오큘러스는 가장 높은 층에서 로비로 빛이 쏟아져 들어와 도서관의 종착점을 처음으로 다시 연결한다.

주요 계단의 밑에 있는 원스톱 서비스 데스크는 도서관 직원과 학생의 인터페이스 공간이며, 도서관의 소장품을 쉽게 이용할 수 있도록 돕는다. 도서 보관에 필요한 공간을 대폭 줄이면서 도서관 컬렉션에 대한 접근을 확장함으로써 BookBot은 협업 학습 공간, 학술 자원, 개별 학습 공간 등을 늘릴 수 있도록 했다. 건물 전체에 산재해 있는 회의실과 학습 공간은 40개 이상 마련되어 있으며, 모든 학과의 학생들에게 열려 있고, 최첨단 기술과 다양한 공부 공간을 캠퍼스의 중앙에 제공한다.

현대 학생들의 새로운 요구에 맞춘 독특하고 다양한 공간 프로그램을 제공하면서도, 전통적인 학술 도서관의 목적에도 충실한 곳이다. 햇살이 가득하고 고요한 4층에는 200,000권의 책이 실 중앙에 고정되어 있으며 그 주변으로 더 많은 개인 학습 공간이 늘어서 있다. 또한, 북쪽과 남쪽 끝에는 대학원, 교수 등을 위한 두 개의 넓은 자습공간이 있으며, 사면이 유리로 마감되어 있어 자연 속에 묻혀 있는 듯한 분위기를 연출해내기도 한다. 옥상정원은 도서관 내부를 넘어 캠퍼스와 도시의 전망에 잔잔한 시각적 전경을 제공한다. 건물의 지붕은 펜실베니아에서 가장 큰 녹화 지붕 중 하나이며, 이 건물의 우수 관리 시스템에도 중요한 역할을 한다.

찰스 도서관은 현대 학생들의 요구와 진화하는 학습 모델을 수용한다. 필라델피아 유일의 공립대학을 위한 세계적 수준의 시설로서 이 프로젝트는 템플대학교뿐만 아니라 도시, 전 세계 학술도서관의 변화된 순간을 맞이하게 된다.





Architects SNØHETTA
Location Philadelphia, Pennsylvania, USA
Gross floor area 20,438.66m2
Completion 2019
Principal architect Snøhetta
Excutive architect Snøhetta, Stantec
Cooperation Stantec
Civil engineer Hunt Engineering
Structural engineer LERA
IT/AV Sextant Group
Photographer Michael Grimm
해당 프로젝트는 건축문화 2021년 1월호(Vol. 476)에 게재 되었습니다.
The project was published in the January, 2021 issue of the magazine(Vol. 476).
January 2021 : vol. 476
Contents : RECORDS MMCA OPENS THE EXHIBITION: UNITY POINT OUT THE INTERACTION FOLLOWING A VISUALIZATION OF REALISTIC SPACE : NEWS / COMPETITION / BOOKS : SKETCH DOUGLAS HOUSE / ASHWIN SWAMINATHAN :..
anc.masilwide.com
'Architecture Project > Education' 카테고리의 다른 글
| HELSINKI CENTRALLIBRARY OODI (0) | 2021.03.26 |
|---|---|
| DEICHMAN LIBRARYIN IN OSLO (0) | 2021.03.25 |
| DRUMMONDVILLE PUBLIC LIBRARY (0) | 2021.03.23 |
| PÉLISSANNE MEDIA LIBRARY, PARK AND PUBLIC PASSAGE (0) | 2021.03.22 |
| SPRINGDALE LIBRARY (0) | 2021.03.19 |
마실와이드 | 등록번호 : 서울, 아03630 | 등록일자 : 2015년 03월 11일 | 마실와이드 | 발행ㆍ편집인 : 김명규 | 청소년보호책임자 : 최지희 | 발행소 : 서울시 마포구 월드컵로8길 45-8 1층 | 발행일자 : 매일



